PROVISIONSFREI - Familienfreundlich wohnen I Nahe Stadtstrand und Mur
Wohnung
,
8010
Graz
Beschreibung der Immobilie
PROVISIONSFREI - Familienfreundlich wohnen I Nahe Stadtstrand und Mur
JAKOMINI VERDE - PROVISIONSFREIModern, hochwertig, nachhaltig - Ihr neues Zuhause im Graz-Jakomini!
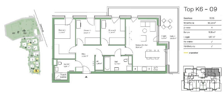
Im 6. Obergeschoss verbindet die Wohnung eine zentral liegende Wohnküche mit drei gut proportionierten Schlafzimmern – klar gegliedert für Alltag und Rückzug. Der Balkon erweitert den Wohnbereich ins Freie; seine Fläche lässt Sitzplatz, Bepflanzung und Liegestuhl mühelos zu.
Besonders komfortabel sind die beiden Badezimmer – sie entlasten den Tagesablauf und verkürzen Wartezeiten. Der Abstellraum schafft Platz für Haushaltsgeräte, Vorräte und Garderobe; die Wohnbereiche bleiben frei. Kellerabteil und Lift sind vorhanden, ein Tiefgaragenplatz kann auf Wunsch ergänzt werden. Insgesamt entsteht eine Wohnung mit klarer Raumlogik und kurzen Wegen.
Auf einen Blick
- 6. OG mit Lift
- Wohnküche + 3 Schlafzimmer
- 2 Badezimmer, Abstellraum
- Balkon
- Kellerabteil
- Fußbodenheizung
- Tiefgaragenplatz optional
Kurz zum Projekt:
Jakomini Verde steht für zeitgemäßes, nachhaltiges Wohnen: Wasser-Wärmepumpe für das Heizen, Fernwärme für die Warmwasserbereitung, Fußbodenheizung, hochwertige Materialien und ein barrierearmer Zugang – ruhig, urban und gut eingebunden.
Highlights der Wohnung
- Moderne Architektur – Lichtdurchflutete Räume, bodentiefe Fenster
- Hochwertige Ausstattung – Parkett, Fußbodenheizung, 3-fach-Verglasung
- Nachhaltiges Energiekonzept – Wärmepumpe, Fernwärme, PV-Anlage (Mieterstrommodell)
- Top-Infrastruktur – Öffis, Einkaufsmöglichkeiten, Naherholung in direkter Nähe
- Fahrradfreundlich – direkte Anbindung an das Radwegenetz
- Komfort & Barrierefreiheit – Lift, stufenloser Zugang, Tiefgarage verfügbar
Lage & Infrastruktur
Zwischen Stadt und Grün gelegen, bietet die Adresse den Augarten und den Grazer Stadtstrand an der Mur in angenehmer Nähe – für Pause am Wasser, Spielbereich mit Kindern oder eine Runde im Freien. Der Murradweg verknüpft das Quartier direkt mit der Innenstadt und den umliegenden Bezirken; wer lieber öffentlich fährt, hat Straßenbahn und Bus rasch zur Hand. Einkauf, Cafés und Alltagsversorgung finden sich rundum. Die Kombination aus modernem, nachhaltigem Wohnbau in ruhiger Umgebung und sehr guter Anbindung an ÖV, Radnetz und die Autobahn macht diese Wohnung zu einer soliden Entscheidung für die eigene Zukunft.
Diese Fotos sind virtuell möbliert und dienen der Veranschaulichung. Die Wohnung wird unmöbliert übergeben.
Jetzt online anfragen oder telefonisch Kontakt aufnehmen – wir melden uns zeitnah mit Terminvorschlägen für eine Besichtigung.
Eckdaten Objektnr. 141/82312
| Art: | Wohnung |
| Land: | Österreich |
| Baujahr: | 2024 |
| Kaufpreis: | 469.000,00 € |
| Provision: | provisionsfrei |
| Wohnfläche: | 88,65 m² |
| Zimmer: | 4 |
| Bäder: | 2 |
| WC: | 2 |
| Balkone: | 1 |
| Heizwärmebedarf: | A 22,10 kWh/m²a |
| fGEE: | A+ 0,64 |
Ausstattung
Personenaufzug
Ihre persönliche Beratung
Dieser Makler ist ein offizielles Mitglied des IR – ir.at Mehr Erfahren
