Modernes Designerhaus mit Panoramablick!
Haus
,
7032
Sigleß
Das stilvolle Designerhaus befindet sich in Sigleß, in einer der begehrtesten Wohnlagen der Region. Der Ort Sigleß liegt im Bezirk Mattersburg im Burgenland und bietet eine perfekte Kombination aus ländlicher Ruhe und urbaner Nähe. Das Haus besticht durch seinen unverbaubaren Panoramablick auf den Schneeberg und die Rosalia – eine Aussicht, die jeden Tag aufs Neue beeindruckt. Die zentrale Lage innerhalb der Gemeinde ermöglicht eine schnelle Erreichbarkeit aller wichtigen Einrichtungen: Schule: Nur 50 Meter entfernt, ideal für Familien mit schulpflichtigen Kindern. Busanbindung: 150 Meter bis zur nächsten Haltestelle. Autobahnanschluss: 1,35 km, schnelle Anbindung an überregionale Verkehrswege. Nahversorgung: Supermarkt in 2,75 km, Bäckerei in 3,7 km und ein Einkaufszentrum in 9,5 km. Gesundheitsversorgung: Arztpraxis 3,9 km, Apotheke 4,1 km, Klinik 5,5 km entfernt. Die Lage ist besonders attraktiv für Pendler, die in Wien, Wiener Neustadt oder Eisenstadt arbeiten, aber ein ruhiges, naturnahes Wohnumfeld schätzen. Als Anlageobjekt, Privatzimmervermietung, Arztpraxis, Büro oder Familiendomizil geeignet.
Beschreibung der Immobilie
Modernes Designerhaus mit Panoramablick!
Auf ca. 220 m² finden Sie:
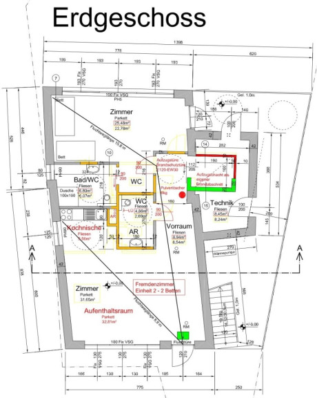
EG
- Aufenthaltsraum
- Zimmer
- Vorraum
- Kochnische
- Bad mit Dusche und WC
- WC
- Abstellraum
- Technikraum
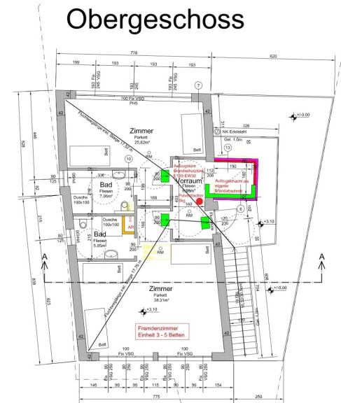
OG
- 2 Wohnschlafzimmer (Fremdenzimmer)
- 2 Bäder mit Dusche und WC
- Vorraum
- Abstellraum
K (westseitig auf Straßenniveau)
- 2 Zimmer
- Wohnküche
- Bad mit Dusche
- WC
Alle Etagen sind barrierefrei durch einen Personenauszug verbunden.
Der Vermittler ist als Doppelmakler tätig.
Infrastruktur / Entfernungen
Gesundheit
Arzt <4.000m
Apotheke <4.500m
Klinik <5.500m
Kinder & Schulen
Schule <500m
Kindergarten <4.500m
Nahversorgung
Supermarkt <3.000m
Bäckerei <4.000m
Einkaufszentrum <9.500m
Sonstige
Bank <2.000m
Post <4.000m
Geldautomat <4.500m
Polizei <4.500m
Verkehr
Bus <500m
Autobahnanschluss <1.500m
Bahnhof <3.500m
Angaben Entfernung Luftlinie / Quelle: OpenStreetMap
Eckdaten Objektnr. 5063/2008
Art: | Haus |
Land: | Österreich |
Baujahr: | 2017 |
Zustand: | Neuwertig |
Möbliert: | Voll |
Alter: | Neubau |
Kaufpreis: | 670.000,00 € |
Provision: | 3% des Kaufpreises zzgl. 20% USt. |
Betriebskosten: | 71,00 € |
Heizkosten: | 50,00 € |
Wohnfläche: | 220,00 m² |
Grundstücksfl.: | 300,00 m² |
Zimmer: | 7 |
Bäder: | 4 |
WC: | 5 |
Terrassen: | 2 |
Stellplätze: | 5 |
Garten: | 80,00 m² |
Heizwärmebedarf: | A+ 45,00 kWh/m²a |
fGEE: | A+ 0,85 |
Ausstattung
Fliesen, Fußbodenheizung, Zentralheizung, Einbauküche, Wohnküche / offene Küche, Personenaufzug, Bad mit Fenster, Dusche, Parkplatz
Ihre persönliche Beratung

Wolfgang Mayer
IMERO GmbH
T +43 664 3071433