2 Wohneinheiten in ruhiger Lage

Haus , 2232 Deutsch-Wagram


Die Liegenschaft befindet sich in Deutsch-Wagram, einer aufstrebenden Stadt im Bezirk Gänserndorf, etwa 10 Kilometer nordöstlich von Wien. Die Umgebung zeichnet sich durch eine ruhige Wohngegend mit guter Anbindung an das Stadtzentrum und die umliegenden Grünflächen aus. Deutsch-Wagram bietet eine gelungene Mischung aus städtischer Infrastruktur und ländlichem Charme, was es besonders für Familien und Pendler attraktiv macht.

Beschreibung der Immobilie

2 Wohneinheiten in ruhiger Lage

Die wichtigsten Informationen auf den ersten Blick:



"Haus 1":



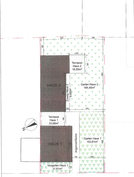
  • Garten mit 102 m² 
  • Großes Potential
  • rund 55 m² Wohnnutzfläche
  • gut erhaltene Bausubstanz, Massivbauweise
  • Bezug sofort 
  • Gepflegt
  • 2 Zimmer




"Haus 2":



  • Garten mit 194 m² 
  • Großes Potential
  • rund 79 m² Wohnnutzfläche
  • gut erhaltene Bausubstanz, Massivbauweise
  • Bezug sofort 
  • Gepflegt
  • 3 Zimmer
  • Pool & Teich 




In idyllischer Lage gelangt dieses wunderbare Einfamilienhaus zur Vermarktung.



In unmittelbarer Nachbarschaft befinden sich typische Einfamilienhäuser. 





Die ausführliche Beschreibung:



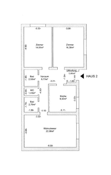
Die Häuser:



Sie betreten die Liegenschaft durch einen gemeinsamen Eingang in den schön gestalteten Garten. Linkerhand befindet sich „Haus 1“, das man durch einen überdachten Eingang betritt. Im Vorraum angelangt, befindet sich links ein separates WC. Die nächste Tür links führt Sie zur praktischen Speis/Technik. Rechterhand liegt das moderne Bad mit Dusche. Durch den Vorraum gelangen Sie sowohl in das gemütliche Schlafzimmer von „Haus 1“ als auch in die helle Küche, die anschließend in das Wohnzimmer führt.



Weiter geht es in den Gartenbereich, der mit einem idyllischen Teich und einem einladenden Grillplatz zu Ihren Familienfesten einlädt – hier werden Sie die schönsten Feste feiern.



Der Eingang von „Haus 2“ ist durch einen kleinen Windfang geschützt. Im einladenden Vorraum angelangt, erreichen Sie gleich rechts das erste Schlafzimmer der Liegenschaft. Links von Ihnen befindet sich die geräumige Küche. Weiter im Gang liegt rechterhand das zweite Schlafzimmer. Zudem befinden sich auf dem Weg Richtung Wohnzimmer ein praktischer Abstellraum, ein WC und ein modernes Bad. Das großzügige Wohnzimmer rundet das Angebot ab.



Im hinteren Teil des Gartens befindet sich ein Swimmingpool, der an heißen Tagen für eine angenehme Erfrischung sorgt.





Gesamteindruck: Die Wohneinheiten können nach belieben natürlich anders gestaltet werden, als sie nun sind. Sie können Ihrer Fantasie hier freien Lauf lassen. 



Somit sind hier viele Möglichkeiten gegeben. Sie können jedoch das Haus auch für Ihre Familie perfekt nutzen.





Kosten:



Die Gemeinde schreibt pro Quartal aktuell für Wasser, Kanal und Grundsteuer 211€ BRUTTO vor. (für beide Wohneinheiten)



Kosten für Müllabfuhr belaufen sich in der Regel bei ca. 120€ / Quartal 



Beheizung erfolgt per Gasheizung





Infrastruktur:



Bildungseinrichtungen:




  • Kindergärten: Mehrere Kindergärten in Deutsch-Wagram bieten wohnortnahe Betreuung für Kinder im Vorschulalter.



  • Schulen: Die Stadt verfügt über eine Volksschule, eine Mittelschule und ein Bundesoberstufenrealgymnasium (BORG) mit verschiedenen Schwerpunktprogrammen.



  • Musikschule: Die lokale Musikschule bietet ein breites Spektrum an musikalischer Ausbildung für Kinder und Erwachsene.




Gesundheitsversorgung:




  • Ärzte: Allgemeinmediziner und Fachärzte sind in Deutsch-Wagram ansässig und gewährleisten eine umfassende medizinische Versorgung.



  • Apotheken: Mehrere Apotheken, wie die Adler Apotheke, befinden sich in der Nähe und sind leicht erreichbar.



  • Krankenhäuser: Das Landesklinikum Korneuburg und das Donauspital Wien sind in etwa 20 bis 30 Minuten mit dem Auto erreichbar und bieten umfassende medizinische Dienstleistungen.




Einkaufsmöglichkeiten:




  • Supermärkte: Deutsch-Wagram beherbergt mehrere Supermärkte wie Billa, Spar und Hofer, die den täglichen Bedarf decken.



  • Lokale Geschäfte: Zahlreiche Bäckereien, Fleischereien und Fachgeschäfte bieten regionale Produkte und Dienstleistungen an.



  • Shopping: Das nahegelegene G3 Shopping Resort Gerasdorf ist in etwa 15 Minuten mit dem Auto erreichbar und bietet ein umfangreiches Angebot an Geschäften und Gastronomie.




Bahnverbindungen:




  • Bahnhof Deutsch-Wagram: Dieser Bahnhof liegt an der Nordbahnstrecke und wird von der S-Bahn-Linie S1 sowie von Regionalzügen bedient.




    • S1 (Schnellbahn): Die S1 verbindet Deutsch-Wagram mit Wien und Gänserndorf. Die Züge verkehren in regelmäßigen Abständen, insbesondere während der Hauptverkehrszeiten. (aktuell wird umgebaut)



    • Regionalzüge: Zusätzlich zur S-Bahn halten in Deutsch-Wagram Regionalzüge, die Verbindungen nach Wien und in Richtung Břeclav in Tschechien anbieten.



    • U-Bahn-Anschluss: Über die Schnellbahn S1 ist die U1-Station Wien Leopoldau in kurzer Zeit erreichbar, was eine schnelle Anbindung an das Wiener U-Bahn-Netz ermöglicht.





Busverbindungen:




  • Regionale Buslinien: Mehrere Buslinien verbinden Deutsch-Wagram mit umliegenden Gemeinden und bieten Anbindungen an das Wiener Verkehrsnetz.




    • Linie 420: Diese Linie fährt von Deutsch-Wagram über Strasshof an der Nordbahn nach Gänserndorf.







Auto:




  • Straßenanbindung: Deutsch-Wagram ist über die B8 und die S1 gut an das Straßennetz angebunden, was eine zügige Verbindung nach Wien und in das Marchfeld ermöglicht.



  • Fahrzeit nach Wien: Je nach Verkehrslage beträgt die Fahrzeit mit dem Auto nach Wien etwa 15 bis 30 Minuten.




Besonderheiten:




  • Freizeit und Erholung: Die Umgebung bietet zahlreiche Freizeitmöglichkeiten, darunter Rad- und Wanderwege entlang des Marchfeldkanals, Sportvereine und das Schulsportgelände.



  • Kulturelle Angebote: Deutsch-Wagram verfügt über ein reges Kulturleben mit Veranstaltungen, Museen wie dem Napoleon- und Stadtmuseum sowie dem Eisenbahnmuseum.



  • Gesundheit und Wellness: Ein vielfältiges Angebot an Yoga- und Fitnessstudios, wie beispielsweise theBasics.fit: AERIAL & YOGA, bietet Möglichkeiten zur körperlichen Betätigung und Entspannung. 






Diese Liegenschaft bietet eine attraktive Kombination aus guter Infrastruktur, ruhiger Wohnlage und Nähe zu wichtigen Verkehrsverbindungen, ideal für Familien, Berufstätige und Naturliebhaber.





Wichtig:



Unter bestimmten Voraussetzungen (Anmeldung als Hauptwohnsitz, dringendes Wohnbedürfnis), kommen Sie jetzt in den Genuss der Gebührenbefreiung von der Grundbucheintragungsgebühr (1,1%) und der Eintragungsgebühr des Pfandrechts (1,2%)!





SIE SIND NOCH UNSCHLÜSSIG, OB IHRE FINANZIERUNG GESICHERT IST?



Ihre Hausbank benötigt im Normalfall 4-6 Wochen, um Ihnen mitzuteilen, ob Ihr Kredit bewilligt wird, oder nicht. Unser Finanzierungspartner sagt Ihnen nicht nur anhand Ihrer Unterlagen in kürzester Zeit, ob die Finanzierung klappen wird, er sorgt auch für den besten und günstigsten Wohnkredit, da er Zugang zu den besten Angeboten aller relevanten Banken hat.



Last but not least: Unser Finanzberater kostet Sie nichts, denn er bekommt seine Provision von der finanzierenden Bank!


Hinweis gemäß Energieausweisvorlagegesetz: Ein Energieausweis wurde vom Eigentümer bzw. Verkäufer, nach unserer Aufklärung über die generell geltende Vorlagepflicht, sowie Aufforderung zu seiner Erstellung noch nicht vorgelegt. Daher gilt zumindest eine dem Alter und der Art des Gebäudes entsprechende Gesamtenergieeffizienz als vereinbart. Wir übernehmen keinerlei Gewähr oder Haftung für die tatsächliche Energieeffizienz der angebotenen Immobilie.


Wir weisen darauf hin, dass zwischen dem Vermittler und dem zu vermittelnden Dritten ein familiäres oder wirtschaftliches Naheverhältnis besteht.


Der Vermittler ist als Doppelmakler tätig.

Infrastruktur / Entfernungen

Gesundheit
Arzt <500m
Apotheke <1.000m
Klinik <1.500m

Kinder & Schulen
Kindergarten <1.000m
Schule <1.500m

Nahversorgung
Supermarkt <1.000m
Bäckerei <5.500m
Einkaufszentrum <4.000m

Sonstige
Bank <1.000m
Geldautomat <1.000m
Post <1.000m
Polizei <1.000m

Verkehr
Bus <500m
U-Bahn <9.500m
Bahnhof <1.000m
Autobahnanschluss <4.000m
Straßenbahn <10.000m

Angaben Entfernung Luftlinie / Quelle: OpenStreetMap

Eckdaten Objektnr. 6547/3676

Art: Haus
Land: Österreich
Zustand: Teil_vollsaniert
Kaufpreis: 599.000,00
Provision: 3% des Kaufpreises zzgl. 20% USt.
Wohnfläche: 134,87 m²
Grundstücksfl.: 591,00 m²
Bäder: 2
WC: 2
Immobilie merken Exposé

Ausstattung

Gas, Zentralheizung, Einbauküche, Kabel/Satelliten-TV, Alarmanlage


Immobilie anfragen


Ihre persönliche Beratung

TRUE Immobilien GmbH & Co KG

Markus Dassler

CPS Immobilien Sezgin e.U.

H +43 664 7505 17 72