Potential zentral in Köflach. - Hauptplatz und Bahnhof fußläufig.

Haus - Mehrfamilienhaus, 8580 Köflach


Das Haus befinden sich in zentraler Lage in Köflach, der Hauptplatz sowie viele öffentlichen Einrichtungen sind fußläufig gut erreichbar. Der Bahnhof mit direkter Verbindung nach Graz ist nur rund 500 Meter entfernt, mit dem KFZ ist die Landeshauptstadt ca. 30 Minuten entfernt. INFRASTRUKTUR UND VERSORGUNG: Die Lage der Wohnung bietet eine sehr gute Infrastruktur. Köflach verfügt über zahlreiche Dienstleister und Geschäfte, die den täglichen Bedarf decken. Der nächste Nahversorger befindet sich nur 250 Meter entfernt und ist bestens erreichbar. Apotheken, Banken und weitere Geschäfte liegen in einem Umkreis von nur 500 Metern. Die "Rathauspassage" nahe dem Hauptplatz ist rund 300 Meter entfernt, hier befinden sich auch viele gastronomische Betriebe. Vielfältige Einkaufsmöglichkeiten bietet die Shopping City Seiersberg im Süden von Graz, die in etwa 30 Minuten mit dem Auto erreicht werden kann. Die Stadt Graz selbst bietet ein umfassendes Angebot an Geschäften, Dienstleistungen und Freizeitmöglichkeiten. BILDUNGSEINRICHTUNGEN: Für Familien mit Kindern ist die Lage ideal. Der nächstgelegene Kindergarten befindet sich nur 600 Meter von der Wohnung entfernt, die nächste Volksschule ist nur ca. 100 Meter entfernt. Der Schulkomplex um das BG / BRG / BORG Köflach ist rund 1,1 Km entfernt. Die Landeshauptstadt Graz bietet ein umfassendes und breites weiteres Bildungsangebot. Über Angebote wie diverser Gymnasien und höhere Schulen bis zu renommierten Universitäten und Fachhochschulen. VERKEHRSANBINDUNG: Die Wohnung verfügt über eine sehr gute Verkehrsanbindung. Der Bahnhof von Köflach liegt ca. 600 Meter entfernt und kann so auch fußläufig gut erreicht werden. Hier bieten sich auch direkte Bahn-Verbindungen nach Graz. Mit dem KFZ ist Graz in ca. 30 Minuten erreichbar, Klagenfurt ist ca. 1h 15 Minuten entfernt und Wien ca. 2h 15 Minuten.

Beschreibung der Immobilie

Potential zentral in Köflach. - Hauptplatz und Bahnhof fußläufig.

Bei dem Objekt handelt es sich um ein Haus zentral in Köflach. Eine von zwei Wohneinheiten im Erdgeschoß ist bereits saniert, eine weitere Wohneinheit wird derzeit saniert und umgebaut.

Das Obergeschoß ist baufällig und bietet vielfältiges Potential für einen Aus- und Umbau nach ihren Vorstellungen.

Es besteht hier auch die Möglichkeit Teile des Hauses (EG oder OG) zu erwerben.



Das Besondere an diesem Objekt:



  • Zentrale Wohnlage mit Infrastruktur fußläufig.
  • Bestand mit ca. 203 m² Nutzfläche.
  • Teilrenoviert und sofort beziehbar.
  • Großes Potential zum kleinen Preis. 
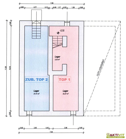
  • Kelleranteil mit weiterem Stauraum.




DAS HAUS.



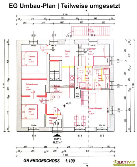
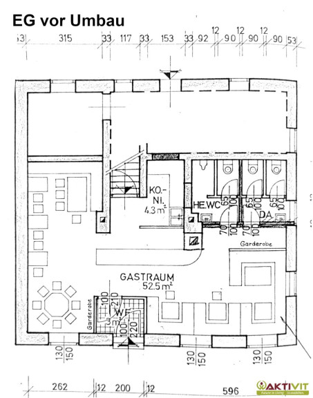
Das Haus hat insgesamt ca. 203 m² Nutzfläche. Im Erdgeschoß befinden sich zwei Einheiten, eine Einheit mit ca. 45 m² und eine Einheit mit ca. 40 m².

Es handelt sich jeweils um 1-Zimmer-Wohnungen die auch sehr gut als Ferienwohnungen geeignet sind.



Das Obergeschoß verfügt über weitere ca. 108 m² Nutzfläche und kann in vielfältiger Form umgebaut und genutzt werden.

Das Haus ist unterkellert und hat Kellerflächen von ca. 67 m².





DIE BAULICHKEIT UND AUSSTATTUNG.



Das Haus wurde in Massiv-Bauweise errichtet und bietet eine solide Substanz die im Laufe der Zeit renoviert und erhalten wurde. Das Dach wurde so zum Beispiel 2022 in Teilen saniert.

Das genaue Baujahr des Hauses wird noch erhoben, der Bestand ist jedoch über 100 Jahre alt und somit als Altbau einzustufen.



Die Wohneinheit im Erdgeschoß mit 45 m² wurde bereits saniert, die Einheit mit 40 m² wird derzeit umgebaut und saniert. In der sanierten Wohnung ist eine Infrarot-Heizung installiert.

Das Obergeschoß ist in baufälligem Zustand und bedarf einer Kernsanierung.





Zur Beantwortung weiterer Fragen sowie für Besichtigungstermine stehe ich Ihnen gerne täglich -auch am Wochenende - von 08:00 bis 22:00 Uhr zur Verfügung.



Ich freue mich über Ihre Kontaktaufnahme,

Wilhelm Rossmair

+43 664 54 24 481
w.rossmair@aktivit.org


Hinweis gemäß Energieausweisvorlagegesetz: Ein Energieausweis wurde vom Eigentümer bzw. Verkäufer, nach unserer Aufklärung über die generell geltende Vorlagepflicht, sowie Aufforderung zu seiner Erstellung noch nicht vorgelegt. Daher gilt zumindest eine dem Alter und der Art des Gebäudes entsprechende Gesamtenergieeffizienz als vereinbart. Wir übernehmen keinerlei Gewähr oder Haftung für die tatsächliche Energieeffizienz der angebotenen Immobilie.


Der Vermittler ist als Doppelmakler tätig.

Erteilen Sie uns ihren Suchauftrag und profitieren Sie von vielen Vorteilen und exklusiven Angeboten!
Ganz einfach und kostenlos unter: Jetzt Suchauftrag eingeben.

Infrastruktur / Entfernungen

Gesundheit
Arzt <500m
Apotheke <500m
Klinik <2.500m
Krankenhaus <4.500m

Kinder & Schulen
Schule <500m
Kindergarten <500m

Nahversorgung
Supermarkt <500m
Bäckerei <500m
Einkaufszentrum <3.500m

Sonstige
Geldautomat <500m
Bank <500m
Post <1.000m
Polizei <500m

Verkehr
Bus <500m
Bahnhof <500m

Angaben Entfernung Luftlinie / Quelle: OpenStreetMap

Eckdaten Objektnr. 1038

Art: Haus - Mehrfamilienhaus
Land: Österreich
Möbliert: Teil
Alter: Altbau
Kaufpreis: 180.000,00
Provision: 3% des Kaufpreises zzgl. 20% USt.
Wohnfläche: 203,00 m²
Nutzfläche: 203,00 m²
Gesamtfläche: 203,00 m²
Zimmer: 4
Bäder: 2
WC: 2
Keller: 67,00 m²
Immobilie merken Exposé

Ausstattung

Fliesen, Kunststoffboden, Parkett, Elektro, Einbauküche, Wohnküche / offene Küche, Dusche


Immobilie anfragen


Ihre persönliche Beratung

AKTIVIT & Future in Living - Immobilien GmbH

Wilhelm Rossmair

AKTIVIT - Future in Living - Immobilien

H +43 664 54 24 481