Beschreibung der Immobilie
Nachhaltiges Wohnen am Park – Ihr neues Zuhause
Wohnen am Baumgartner-Casino-Park - mit exklusiver Lage und Komfort
Lebensraum neu gedacht!
Hier am Baumgartner Casino Park wird der Luxus vom großzügigem Lebensraum neu definiert!
Der beste Wohnraum ergibt sich aus gut durchdachte Grundrisse mit ausgezeichneten Zimmergrößen und lichtdurchfluteten Räumen. Jede Wohnung bietet zudem Freiflächen wie Loggia, Terrasse oder Garten – ideale Rückzugsorte zum Entspannen und Genießen.
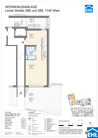
Sie wünschen noch mehr? Im idyllischen Innenhof erwartet Sie ein exklusives Doppelhaus mit zwei 4-Zimmer-Maisonettewohnungen, die zusätzlich über integrierte Büros verfügen. Hier verschmelzen Wohnen und Arbeiten zu einer perfekten Symbiose – für ein Leben ohne Kompromisse.
Jede Wohnung besticht durch die Verwendung erstklassiger Materialien: Edle Parkettböden verleihen den Wohnräumen Wärme und Eleganz, während in den stilvoll gestalteten Nassräumen hochwertiges Feinsteinzeug im Format 30 x 60 cm sowie sorgfältig ausgewählte Keramiken und Armaturen zum Einsatz kommen.
Für optimalen Komfort sorgt der außenliegende Sonnenschutz in Form von Raffstores, die bequem per Fernbedienung gesteuert werden können.
Und noch ein Vorteil:
Durch die Niedrigenergiebauweise und einem intelligenten Anergienetz profitieren Sie von unschlagbar günstigen Heiz- und Warmwasserkosten. Über Tiefensonden wird die Erdwärme genützt und im Solespeicher gespeichert, zusätzlich sind Sonnenkollektoren errichtet worden. Die Heizung und Temperierung erfolgt über eine Betonkernaktivierung in der Geschoßdecke.
Die Ausstattung:
- Parkettböden in den Wohnräumen und Keramikfliesen (60*30cm) im Badezimmer
- Fenster mit 3-Scheibenisolierverglasung
- Außenliegende Raffstores, elektronisch Bedienbar
- Wärmepumpenanlage mit Geothermie (Tiefenbohrungen) und PV-Anlagen
- Modernste Heizung und Temperierung über Bauteilaktivierung in der Decke
- Barrierefreier Zugang vom Keller bis zur Wohnetage dank Liftanlage
- Garagenplätze in der hauseigenen Tiefgarage
- Insgesamt verfügt das Projekt über 31 Wohnungen und 3 Townhouses
Die Lage:
Die Linzer Straße 286-288 in Penzing verbindet städtisches Leben mit einem hohen Maß an Ruhe und Grünflächen, was sie besonders attraktiv für Familien und Naturliebhaber macht.
In der näheren Umgebung befinden sich zahlreiche Geschäfte des täglichen Bedarfs, Schulen, Kindergärten und Restaurants. Auch kulturelle Einrichtungen wie das Technische Museum und das Schloss Schönbrunn mit seinem weitläufigen Park und dem Tiergarten sind nicht weit entfernt.
Für Erholung und Freizeitaktivitäten vor der Tür ist der Casino Park wie geschaffen, aber auch der nahegelegene Wienerwald sowie der Schlosspark Schönbrunn laden zu Spaziergängen, Sport oder einfach zum Entspannen im Grünen ein.
Öffentliche Verkehrsmittel wie Straßenbahnen und Busse sind in unmittelbarer Nähe und ermöglichen eine schnelle Verbindung zu anderen Stadtteilen. Zudem ist die U-Bahn-Station Hütteldorf in wenigen Minuten erreichbar, was eine ausgezeichnete Anbindung an das Wiener U-Bahn-Netz sicherstellt.
Öffentliche Verkehrsmittel:
- Buslinie 47A mit Anbindung an die U4 (Ober St. Veit)
- Straßenbahnlinie 52 (Hochsatzengasse) , 49 (Hochsatzengasse/Hütteldorfer Straße)
Ein Stellplatz kann ab € 34.500,-  angekauft werden.
Provisionsfrei für den Käufer!
Wir weisen darauf hin, dass zwischen dem Vermittler und dem zu vermittelnden Dritten ein familiäres oder wirtschaftliches Naheverhältnis besteht.
Der Vermittler ist als Doppelmakler tätig.
Infrastruktur / Entfernungen
Gesundheit
Arzt <250m
Apotheke <500m
Klinik <1.750m
Krankenhaus <1.250m
Kinder & Schulen
Schule <250m
Kindergarten <250m
Universität <1.750m
Höhere Schule <3.500m
Nahversorgung
Supermarkt <500m
Bäckerei <500m
Einkaufszentrum <3.250m
Sonstige
Geldautomat <500m
Bank <500m
Post <500m
Polizei <1.000m
Verkehr
Bus <250m
Straßenbahn <250m
U-Bahn <750m
Bahnhof <750m
Autobahnanschluss <4.250m
Angaben Entfernung Luftlinie / Quelle: OpenStreetMap
Eckdaten Objektnr. 82973
| Art: | Haus - Doppelhaushälfte | 
| Land: | Österreich | 
| Baujahr: | 2024 | 
| Zustand: | Erstbezug | 
| Alter: | Neubau | 
| Kaufpreis: | 953.800,00 € | 
| Provision: | Provision bezahlt der Abgeber. | 
| Betriebskosten: | 295,75 € | 
| MwSt Gesamt: | 35,59 € | 
| Wohnfläche: | 147,39 m² | 
| Zimmer: | 4,50 | 
| Bäder: | 2 | 
| WC: | 3 | 
| Terrassen: | 2 | 
| Garten: | 38,03 m² | 
| Keller: | 4,77 m² | 
| Heizwärmebedarf: | B 25,80 kWh/m²a | 
| fGEE: | A 0,71 | 
Ausstattung
Parkett, Fliesen, Erdwärme, Personenaufzug, Südbalkon, Dusche, Badewanne
Ihre persönliche Beratung
Dieser Makler ist ein offizielles Mitglied des IR – ir.at Mehr Erfahren
 
                
                 
                 
                 
                 
                 
                 
                 
                 
                 
                 
                 
                 
                 
                 
                 
                