2-stöckige Bürofläche im Donauzentrum | bezugsfertig und gekühlt
                                                            Büro / Praxis
                                - Bürofläche,
                            
                            
                                
                                                                            1220
                                    
                                                                            Wien
                                    
                                    
                                
                                                                    
                                        
                                    
                                
                            
                        
                        Beschreibung der Immobilie
2-stöckige Bürofläche im Donauzentrum | bezugsfertig und gekühlt
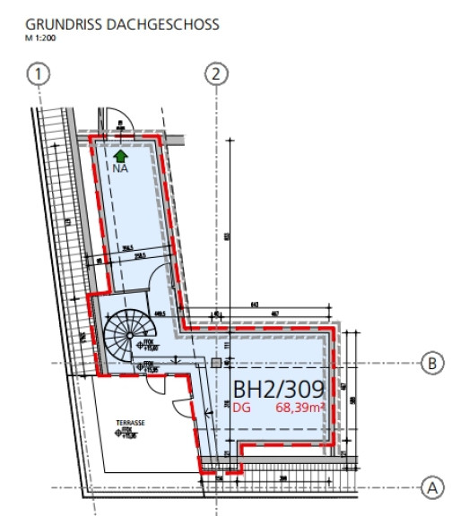
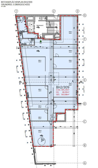
BESCHREIBUNGIm Donauzentrum, direkt gegenüber der U1-Station Kagran gelegen, gelangt im 3.OG und DG des Hauses diese rund 564 m² große, klimatisierte Bürofläche in die Vermietung.
Das Büro zeichnet sich besonders durch seine hohe Flächeneffizienz und den hohen Ausbaustandard aus, die hochwertigen Glaselemente und Terrasse im oberen Geschoß runden das Angebot ab.
Die bestehenden Büromöbel können nach Absprache mit dem derzeitigen Mieter übernommen werden.
Die erstklassige Lage direkt im Donauzentrum bietet nicht nur eine ausgezeichnete Anbindung an den öffentlichen Verkehr, sondern auch eine hervorragende Infrastruktur. Das Donauzentrum ist mit der U-Bahnlinie U1 (Station Kagran) und mehreren Buslinien optimal erreichbar.
Die unmittelbare Nähe zum Verkehrsknotenpunkt A22 gewährleistet eine gute Erreichbarkeit sowohl für MitarbeiterInnen als auch für KundenInnen. Direkt innerhalb des eigenen Hauses finden sich zahlreiche Restaurants, Cafés und Einkaufsmöglichkeiten, welche die Wege kurz und die kulinarischen Möglichkeiten vielfältig gestalten.
VERFÜGBARKEIT
nach Vereinbarung
VERFÜGBARE MIETFLÄCHEN
BH2 – 208 424 m² € 10,00 ab sofort
BH2 – 309 564 m² € 12,00 nach Vereinbarung
Betriebskosten inkl. Heizung und Kühlung:
€ 7,92
AUSSTATTUNGTeppichboden
LED-Beleuchtung
Kühlung
voll ausgestattete Küche
Terrasse
Glaselemente
außenliegende Beschattung
Dusche
TECHNISCHE DETAILS
Neubau
teils barrierefrei
Energiekennwerte:
Energieklasse B
Heizwärmebedarf: 42 kWh/m²a
LAGE UND VERKEHRSANBINDUNG
öffentlicher Verkehr:
U-Bahn: U1
Schnellbahn: -
Straßenbahn: 25
Bus: 22A, 26A, 93A, 94A
Individualverkehr:
Wagramer Straße, Donaufelder Straße
INFRASTRUKTUR
Durch die Lage direkt am Donauzentrum liegt eine große Vielzahl an Restaurants und Einkaufsmöglichkeiten direkt vor der Haustür“. Auch eine sehr gute Anbindung an das Straßennetz (Wagramer Straße, Donaufelder Straße), sowie an das öffentliche Verkehrsnetz (U1, 25er, diverse Busse) ist gegeben.
KAUTION
3-6 Bruttomonatsmieten
PROVISION
Im Falle eines Vertragsabschlusses beträgt unser Honorar lt. Maklerverordnung für Immobilienmakler, BGBI.262 und 297/1996, 3 Bruttomonatsmieten zzgl. 20 % Ust. Weiters möchten wir auf unsere allgemeinen Geschäftsbedingungen und den ausschließlichen Gerichtsstand Wien, Innere Stadt verweisen.
Alle Preisangaben verstehen sich pro Monat, zzgl. der gesetzlichen Ust. und Betriebskosten
Eckdaten Objektnr. 337/05632
| Art: | Büro / Praxis - Bürofläche | 
| Land: | Österreich | 
| Baujahr: | 1975 | 
| Gesamtmiete: | 13.478,51 € | 
| Kaltmiete (netto): | 6.766,32 € | 
| Miete / m²: | 12,00 € | 
| Provision: | 3BMM | 
| Betriebskosten: | 4.465,77 € | 
| MwSt Gesamt: | 2.246,42 € | 
| Nutzfläche: | 563,86 m² | 
| Zimmer: | 10 | 
| WC: | 4 | 
| Terrassen: | 1 | 
| Heizwärmebedarf: | B 42,00 kWh/m²a | 
| fGEE: | C 1,05 | 
Ausstattung
Fernwärme, Personenaufzug
Ihre persönliche Beratung
                    MA Florian Bogner
Colliers International Immobilienmakler GmbH
T +43 1 535 53 05531
F +43 1 535 53 25
Dieser Makler ist ein offizielles Mitglied des IR – ir.at Mehr Erfahren
                
                
                
                
                
                
                
                
                
                
                
                
                
                
                
                
                
                
                
                