Erstbezug: Top-Lage an der Meidlinger Hauptstraße – Vielseitig nutzbares Geschäftslokal in frequentierter Einkaufsstraße
Einzelhandel
,
1120
Wien
,
Meidlinger Hauptstraße
Bahnhof Meidling, Unfallkrankenhaus Meidling, Sozialmedizinisches Zentrum Süd, Friedhof Meidling, Wilhelmsdorfer Park
Beschreibung der Immobilie
Erstbezug: Top-Lage an der Meidlinger Hauptstraße – Vielseitig nutzbares Geschäftslokal in frequentierter Einkaufsstraße
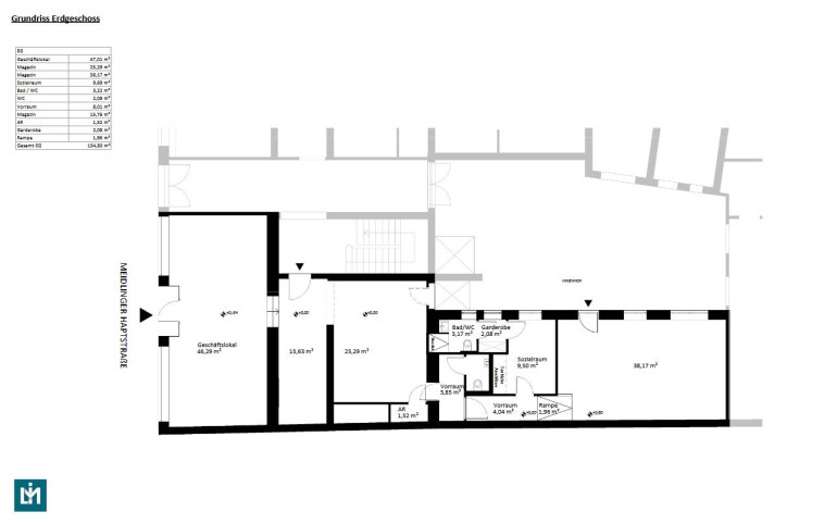
Gerne bieten wir Ihnen zur unbefristeten Vermietung ein ca. 154,80 m² großes Geschäftslokal an, das sich in bester Lage des 12. Bezirks (Meidling) befindet. Das Objekt liegt im Erdgeschoss und bietet eine großzügige Schaufensterfläche zur Fußgängerzone der Meidlinger Hauptstraße, einer der meistfrequentierten Einkaufsstraßen Wiens.
Optimale Raumaufteilung
Die Gesamtfläche von ca. 154,80 m² teilt sich wie folgt auf:
- Geschäftslokal Frontbereich (ca. 46 m²)
- Geschäftslokal Rückbereich (ca. 41 m²)
- Hofseitiges Geschäftslokal/Lager/Büro (ca. 38 m²)
- Aufenthaltsraum mit Kücheanschlüssen (ca. 10 m²)
- Privates Badezimmer mit WC
- Separates Kunden-WC
- Vorraum
- Abstellraum
- Garderobe
Die Räumlichkeiten sind mit einer Lüftungsanlage ausgestattet, deren jährliche Wartung durch den Mieter erfolgt. Die Sanitäranlagen sind gefliest, die Bodenbeläge müssen vom Mieter bereitgestellt werden.
Top Lage mit hervorragender Infrastruktur
Das Geschäftslokal befindet sich in einer zentralen Lage des 12. Bezirks und bietet hervorragende Anbindung an alle wichtigen infrastrukturellen Einrichtungen. Die Meidlinger Hauptstraße, eine beliebte Fußgängerzone, garantiert eine hohe Fußgängerfrequenz und schnellen Zugang zu Geschäften des täglichen Bedarfs, Ärzten, Banken, Gastronomie sowie Schulen und Kindergärten. Auch das Unfallkrankenhaus Meidling (AUVA) und das Sozialmedizinische Zentrum Süd sind in wenigen Gehminuten erreichbar.
Die öffentliche Verkehrsanbindung ist exzellent: In ca. 8 Gehminuten erreichen Sie die U-Bahn-Linie 6, Station Meidling (Siebenhirten - Floridsdorf), sowie den gleichnamigen Bahnhof mit zahlreichen Fern- und Nahverkehrsverbindungen. Die Straßenbahnlinie 62, Station Aßmayergasse (Oper, Karlsplatz - Lainz, Wolkersbergenstraße), sowie die Badner-Bahn, Station Aßmayergasse (Wien Oper - Baden Josefsplatz), sind ebenfalls schnell zu Fuß erreichbar. Im Individualverkehr gelangen Sie rasch zur Wienzeile Richtung Westautobahn (A1) sowie zur Triesterstraße in Richtung Südautobahn (A2).
Hinweis:
Das monatliche Betriebskosten-Akonto beträgt derzeit € 348,42. Die im Inserat angegebenen Preise verstehen sich als Netto-Preise, da die Umsatzsteuer (20%) noch nicht enthalten ist.
Im Falle einer erfolgreichen Vermittlung stellen wir eine Provision in Höhe von drei Monatsmieten zzgl. 20 % USt. in Rechnung.
Für weitere Fragen steht Ihnen Herr DI Markus Raunig sehr gerne telefonisch unter 0660 / 18 34 005 oder per Email an mr@lim-broker.at zur Verfügung.
Entsprechend dem bestehenden Geschäftsgebrauch ist LIM-BROKER GmbH (im Folgenden „LB“) als Doppelmakler tätig. Es wird hiermit ausdrücklich darauf hingewiesen, dass LB mit dem zu vermittelnden Dritten in einem familiären bzw. wirtschaftlichen Naheverhältnis steht. Die Angaben zu dem angebotenen Objekt erfolgen mit der Sorgfalt eines ordentlichen Immobilienmaklers; für die Richtigkeit der Angaben durch Dritte, insbesondere den Verfügungsberechtigten des Objektes, wird jedoch keinerlei Gewähr geleistet. Es wird hiermit weiters ausdrücklich festgehalten, dass durch Anfrage zu einem Objekt zwischen dem anfragenden Interessenten (im Folgenden „Auftraggeber“) und LM ein Maklervertrag zustande kommt und vereinbarungsgemäß im Falle eines Abschlusses mit dem Auftraggeber oder einem von diesem namhaft gemachten Dritten LB ein Honoraranspruch gegenüber dem Auftraggeber (lt. Honorarverordnung für Immobilienmakler, BGBl. 262 und 297/1996) in Höhe von 3% des Kaufpreises bzw. 2 (bei Wohnungen) oder 3 (bei sonstigen Objekten, insbesondere Gewerbeobjekten) Bruttomonatsmieten zzgl. 20% USt. entsteht. Festgehalten wird ferner, dass vereinbarungsgemäß bei LB ein Provisionsanspruch in dieser Höhe dem Auftraggeber gegenüber auch dann entsteht, wenn gemäß § 15 MaklerG (i) das im Maklervertrag bezeichnete Geschäft wider Treu und Glauben nur deshalb nicht zustande kommt, weil der Auftraggeber entgegen dem bisherigen Verhandlungsverlauf einen für das Zustandekommen des Geschäfts erforderlichen Rechtsakt ohne beachtenswerten Grund unterlassen; oder (ii) mit dem vermittelten Dritten ein anderes als ein zweckgleichwertiges Geschäft zustande kommt, sofern die Vermittlung des Geschäfts in den Tätigkeitsbereich von LB fällt; oder (iii) das im Exposé bzw vertraglich bezeichnete Geschäft nicht mit dem Auftraggeber, sondern mit einer anderen Person zustande kommt, weil der Auftraggeber dieser die ihm von LB bekanntgegebene Möglichkeit zum Abschluss mitgeteilt hat oder das Geschäft nicht mit dem vermittelten Dritten, sondern mit einer anderen Person zustande kommt, weil der vermittelte Dritte dieser die Geschäftsgelegenheit bekanntgegeben hat, oder (iv) das Geschäft nicht mit dem vermittelten Dritten zustande kommt, weil ein gesetzliches oder ein vertragliches Vorkaufs-, Wiederkaufs- oder Eintrittsrecht ausgeübt wird. Es gelten die allgemeinen Geschäftsbedingungen von LB (abrufbar unter: http://www.lim-broker.at/de/agb), auf die hiermit ausdrücklich hingewiesen wird.
Hinweis gemäß Energieausweisvorlagegesetz: Ein Energieausweis wurde vom Eigentümer bzw. Verkäufer, nach unserer Aufklärung über die generell geltende Vorlagepflicht, sowie Aufforderung zu seiner Erstellung noch nicht vorgelegt. Daher gilt zumindest eine dem Alter und der Art des Gebäudes entsprechende Gesamtenergieeffizienz als vereinbart. Wir übernehmen keinerlei Gewähr oder Haftung für die tatsächliche Energieeffizienz der angebotenen Immobilie.
Wir weisen darauf hin, dass zwischen dem Vermittler und dem zu vermittelnden Dritten ein familiäres oder wirtschaftliches Naheverhältnis besteht.
Infrastruktur / Entfernungen
Gesundheit
Arzt <250m
Apotheke <250m
Klinik <500m
Krankenhaus <1.250m
Kinder & Schulen
Schule <250m
Kindergarten <250m
Universität <750m
Höhere Schule <500m
Nahversorgung
Supermarkt <250m
Bäckerei <250m
Einkaufszentrum <500m
Sonstige
Geldautomat <250m
Bank <250m
Post <500m
Polizei <500m
Verkehr
Bus <250m
U-Bahn <250m
Straßenbahn <500m
Bahnhof <500m
Autobahnanschluss <2.500m
Angaben Entfernung Luftlinie / Quelle: OpenStreetMap
Eckdaten Objektnr. 120860
Art: | Einzelhandel |
Land: | Österreich |
Zustand: | Voll_saniert |
Alter: | Neubau |
Kaltmiete (netto): | 3.499,00 € |
Kaltmiete: | 3.499,00 € |
Provision: | 3 Monatsmieten zzgl. 20% USt. |
Nutzfläche: | 154,80 m² |
Gesamtfläche: | 154,80 m² |
Verkaufsfläche: | 154,80 m² |
Bürofläche: | 154,80 m² |
Zimmer: | 5 |
Bäder: | 1 |
WC: | 2 |
Ausstattung
Fliesen, Gas, Etagenheizung, Bad mit Fenster, Dusche
Ihre persönliche Beratung

DI Markus Raunig
My Broker Immobilien GmbH
T +43 660 18 34 005
H +43 660 18 34 005
F +43 1 40 25 400-99