Zentral gelegene Neubauwohnung in Leobersdorf Top 1/26
Wohnung
- Etage,
2544
Leobersdorf
,
Marktplatz 3a
Beschreibung der Immobilie
Zentral gelegene Neubauwohnung in Leobersdorf Top 1/26
NEUE STANDARDS IN DER MODERNEN WOHNRAUMSCHAFFUNG
Ein völlig neues Wohnkonzept erwartet Sie in Leobersdorf am Marktplatz. Erfahren Sie hier, was es so besonders macht.
VORZEIGEPROJEKT
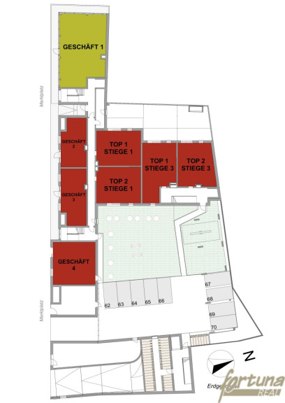
Verteilt auf 5 Stockwerke entstehen insgesamt 47 Eigentumswohnungen. Davon werden 10 als kompakte und leistbare Wohnungen für Studenten, Singles und junge Paare geschaffen. Als Gegenstück werden exklusive Penthousewohnungen mit bis zu 240m² Wohnfläche und tollem Ausblick angeboten. Und: im Erdgeschoss werden zusätzlich Flächen für 4 Geschäftslokale entstehen. Um Parkmöglichkeiten für all das zu bieten, wird es 61 Tiefgaragenplätze (einige mit E-Ladestation-Vorbereitung), Parkflächen im Erdgeschoss und große Fahrradabstellflächen geben.
MODERNSTE AUSSTATTUNG
Im Inneren erwarten Sie optimierte Grundrisse und moderne Ausstattung: kontrollierte Wohnraumlüftung, Fußbodenheizung, Aufzüge in alle Stockwerke, Klimaanlagen in ausgewählten Wohnungen, moderne Gegensprechanlage und Raumthermostate. Bodentiefe Fenster durchfluten die Wohnungen mit natürlichem Licht - auf den Balkonen, Loggien und Terrassen lässt sich Sonne auftanken und Frischluft schnappen. Der Innenhof bietet Grünflächen und einen Spielplatz für die kleinen Bewohner. Die Anlage wird in sich geschlossen sein - das heißt, nur Eigentümer werden Zutritt haben.
Details zur Anlage finden Sie hier: Bau- und Ausstattungsbeschreibung
NEW LIVING
Leobersdorf wächst seit Jahren und bietet sehr gute soziale Strukturen. Es stehen mehrere Schulen und Kindergärten zur Verfügung. Direkt in der Nähe der Anlage befinden sich eine Bäckerei sowie Restaurants. Insgesamt ist die Stadt aber trotzdem typisch ländlich freundlich. Das Erlebnisbad, der Generationenpark - der im Winter mit der eigens dafür angeschafften Schneekanone beschneit wird - und das "bewegungs.reich" sorgen für Spaß, Bewegung und Entspannung!
Über die angebundene A2 sind Sie schnellstens in Wien oder Wiener Neustadt.
Gemeinde Leobersdorf
RADIUS750
Im Umkreis von 750 Metern finden Sie folgende wichtige Geschäfte und Einrichtungen:
-) Bushaltestelle (20m)
-) Restaurant (220m)
-) Kindergarten (350m)
-) Zentrum mit Geschäften, Lokalen & Banken (350m)
-) Lebensmittelgeschäft (450m)
-) Volksschule (500m)
-) Friseur (500m)
-) Post (600m)
-) Bahnhof (750m)
Seien Sie ein Teil eines einzigartigen Projektes - informieren Sie sich direkt bei unserem Verkaufsteam oder stellen Sie eine Blitz-Anfrage!
Baubeginn: Frühjahr 2021
Fertigstellung: Herbst 2023
Kosten pro Tiefgaragenplatz: EUR 13.750,--
Kosten pro Abstellplatz im Freien: EUR 8.250,--
Es werden Mietwohnungen in der Anlage verfügbar sein, lassen Sie sich jetzt vormerken!
Für Anleger, die die Wohnung als Vorsorgewohnung kaufen, gibt es eine eigene Preisliste.
Infrastruktur / Entfernungen
Gesundheit
Arzt <250m
Apotheke <700m
Klinik <8.125m
Krankenhaus <8.775m
Kinder & Schulen
Schule <350m
Kindergarten <275m
Universität <9.900m
Nahversorgung
Supermarkt <425m
Bäckerei <525m
Einkaufszentrum <425m
Sonstige
Bank <350m
Geldautomat <350m
Post <550m
Polizei <600m
Verkehr
Bus <25m
Bahnhof <675m
Autobahnanschluss <1.200m
Straßenbahn <8.650m
Flughafen <5.325m
Angaben Entfernung Luftlinie / Quelle: OpenStreetMap
Eckdaten Objektnr. 1633/133
Art: | Wohnung - Etage |
Land: | Österreich |
Baujahr: | 2023 |
Zustand: | Erstbezug |
Alter: | Neubau |
Kaufpreis: | 465.091,25 € |
Provision: | Provisionsfrei |
Wohnfläche: | 95,22 m² |
Zimmer: | 3 |
Heizwärmebedarf: | A 19,70 kWh/m²a |
fGEE: | A+ 0,64 |
Ihre persönliche Beratung

Daniel Rowies
Fortuna Real GmbH & Co Kg
H +436641476546