Modernisierungsbedürftiges Haus in attraktiver Lage
Haus
- Einfamilienhaus,
1230
Wien,Liesing
,
Puccinigasse
Beschreibung der Immobilie
Modernisierungsbedürftiges Haus in attraktiver Lage
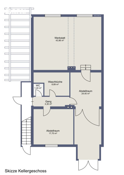
Auf 557 m² Eigengrund finden Sie ca. 195 m² Wohnfläche aufgeteilt auf 2 Etagen (durch den ebenerdigen Keller im Plan als EG und DG bezeichnet) und einen großzügigen Garten.
Stiegen zum Eingang sind seitlich an das Haus angebaut. Der teilweise ausgebaute Dachboden bietet zusätzlich Möglichkeit zur Schaffung von Wohn- oder Stauraum.
Die Zimmer sind komplett geräumt und damit bereit für eine individuelle Renovierung.
Das ursprüngliche Baujahr des Hauses war 1956, 1986 wurde der Dachstuhl angehoben und Fenster und Fassade erneuert.
Machen Sie sich selbst ein Bild der Zimmeraufteilung und des Zustands mit diesem 360° Rundgang:
https://app.immoviewer.com/portal/tour/3101347?accessKey=678a
Die Immobilie befindet sich in einem nachgefragten, verkehrsberuhigten Wohngebiet zwischen Alt-Erlaa und Breitenfurther Straße. In 15 Minuten erreichen Sie zu Fuß, oder bequem mit dem Bus die nächstgelegene U6 Station.
Die Lage punktet mit perfekter Infrastruktur. Supermarkt, Apotheke, Trafik, Friseur und Bäckerei sind in wenigen Gehminuten erreichbar. Ebenso finden Sie einen Kindergarten, eine Volksschule und Spielplätze in naher Umgebung.
Senden Sie mir bei Interesse eine Anfrage und Sie erhalten weitere Fotos und die genaue Adresse. Eine persönliche Besichtigung können Sie danach gerne mit mir vereinbaren.
Kauf und Finanzierung aus einer Hand – nutzen Sie die Synergien der Erste Bank & Sparkassen-Unternehmensgruppe. Gerne arrangieren wir für Sie ein unverbindliches Finanzierungsgespräch mit einem Spezialisten.
Infrastruktur / Entfernungen
Gesundheit
Arzt <750m
Apotheke <750m
Klinik <750m
Krankenhaus <750m
Kinder & Schulen
Schule <750m
Kindergarten <500m
Universität <3.500m
Höhere Schule <3.000m
Nahversorgung
Supermarkt <750m
Bäckerei <750m
Einkaufszentrum <750m
Sonstige
Geldautomat <750m
Bank <750m
Post <1.000m
Polizei <1.000m
Verkehr
Bus <500m
U-Bahn <1.000m
Straßenbahn <1.250m
Bahnhof <1.000m
Autobahnanschluss <1.000m
Angaben Entfernung Luftlinie / Quelle: OpenStreetMap
Eckdaten Objektnr. 960/70836
| Art: | Haus - Einfamilienhaus |
| Land: | Österreich |
| Baujahr: | 1956 |
| Zustand: | Teil_vollrenovierungsbed |
| Alter: | Neubau |
| Kaufpreis: | 690.000,00 € |
| Provision: | 3% des Kaufpreises zzgl. 20% USt. |
| Wohnfläche: | 190,00 m² |
| Nutzfläche: | 285,00 m² |
| Grundstücksfl.: | 557,00 m² |
| Bäder: | 2 |
| WC: | 3 |
| Balkone: | 1 |
| Garten: | 430,00 m² |
| Keller: | 99,25 m² |
| Heizwärmebedarf: | D 119,00 kWh/m²a |
| fGEE: | G 5,14 |
Ausstattung
Parkett, Fliesen, Gas, Zentralheizung, Badewanne, Dusche
Ihre persönliche Beratung
Dieser Makler ist ein offizielles Mitglied des IR – ir.at Mehr Erfahren

