BAUBEWILLIGTES WOHNBAUPROJEKT! Top Planung - 17 Einheiten – 1.050m² erzielbare Wohnfläche!

Grundstück - Baugrund Eigenheim, 2512 Oeynhausen


Das Grundstück liegt in zentraler Lage direkt bei der Triester Straße und bietet somit ideale Anschlussmöglichkeiten. Viele Einkaufsmöglichkeiten sind fußläufig in wenigen Minuten zu erreichen. Es gibt viele Freizeitmöglichkeiten sowie regionale Sehenswürdigkeiten wie bspw. das Schloss Kottingbrunn. Die wunderschöne Stadt Baden ist in wenigen Minuten mit dem Auto erreichbar. Die nächste öffentliche Haltestelle liegt ca. 100m entfernt. Bis zur Südautobahn A 2 sind es mit dem Auto ca. 2 Minuten bzw. bis zur Wiener Stadtgrenze 15 Minuten. In nächster Nähe mit 18 Minuten Fahrzeit, liegt die Shopping City Süd in Vösendorf.

Beschreibung der Immobilie

BAUBEWILLIGTES WOHNBAUPROJEKT! Top Planung - 17 Einheiten – 1.050m² erzielbare Wohnfläche!

Zum Verkauf gelangt ein bereits baubewilligtes Wohnbauprojet in guter zentraler Lage an der Triester Strasse!



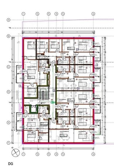
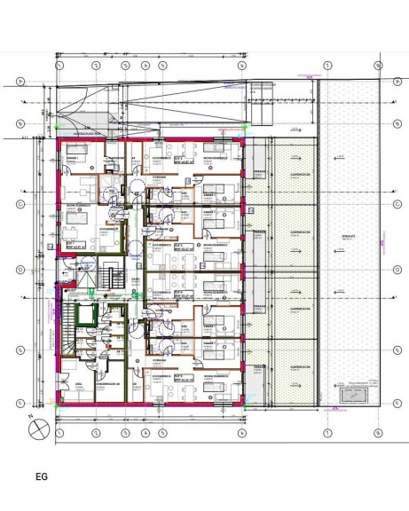
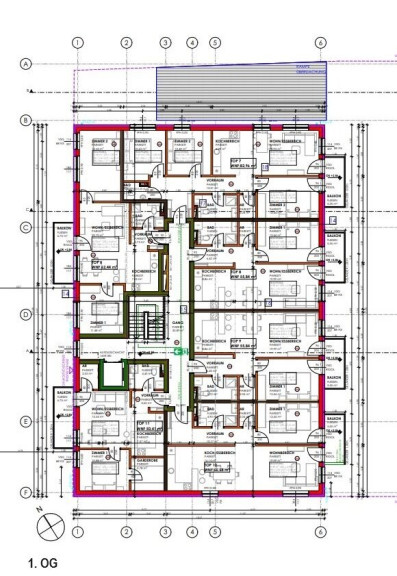
Die gut durchdachte Planung umfasst 17 Wohneinheiten auf 3 Etagen (EG, 1.OG, DG) mit einer Größe zwischen 50m² und 83m², bis auf eine Einheit verfügen alle Wohnungen über eine Freifläche Balkon bzw. Terrasse und Garten. Die Baubewilligung beinhaltet auch die Errichtung einer Tiefgarage mit insgesamt 34 PKW-Stellplätzen.



  • GRUNDSTÜCKSFLÄCHE: 989,57 m²
  • ERZIEHLBARE WOHNNUTZFLÄCHE GESAMT: 1049,62 m²  
  • EG : 301,28 m² - 1.OG : 374,17 m² - 1.DG : 374,17 m²
  • FREIFLÄCHEN: 254,84m² (Balkone, Terrassen/Gärten)
  • WOHNEINHEITEN: 17
  • PKW-Garagenstellplätze: 34 (4 Stellplätze als Doppelparker)
  • BEBAUTE FLÄCHE GESAMT : 494,75 m²


KAUFPREIS Euro 949.000,00



Maklerprovision: 3% vom Kaufpreis + 20% MwSt.



Für weitere Auskünfte sowie zur Vereinbarung einer Besichtigung, steht Ihnen Dejan Stanisavljevic unter +43 650 311 00 02 gerne zur Verfügung.



Obige Angaben basieren auf Informationen des Eigentümers. Der guten Ordnung halber möchten wir festhalten, dass im Falle eines Abschlusses mit Ihnen oder einem von Ihnen namhaft gemachten Dritten unser Honorar (lt. Honorarverordnung für Immobilienmakler, BGBl. 262 und 297/1996) 3% des Verkaufspreises zzgl. der gesetzlichen Mwst. beträgt. Es gelten unsere allgemeinen Geschäftsbedingungen. Irrtum vorbehalten.  




Infrastruktur / Entfernungen

Gesundheit
Arzt <1.500m
Apotheke <2.500m
Klinik <1.500m
Krankenhaus <3.500m

Kinder & Schulen
Schule <2.500m
Kindergarten <2.000m
Höhere Schule <9.500m

Nahversorgung
Supermarkt <500m
Bäckerei <500m
Einkaufszentrum <4.000m

Sonstige
Bank <2.500m
Geldautomat <1.500m
Polizei <1.000m
Post <3.000m

Verkehr
Bus <500m
Bahnhof <3.000m
Autobahnanschluss <1.500m
Straßenbahn <3.500m
Flughafen <4.000m

Angaben Entfernung Luftlinie / Quelle: OpenStreetMap

Eckdaten Objektnr. 5829/355

Art: Grundstück - Baugrund Eigenheim
Land: Österreich
Kaufpreis: 949.000,00
Provision: 3% des Kaufpreises zzgl. 20% USt.
Wohnfläche: 1.049,62 m²
Grundstücksfl.: 989,57 m²
Garten: 151,44 m²
Heizwärmebedarf:  B  32,10 kWh/m²a
Immobilie merken Exposé

Immobilie anfragen


Ihre persönliche Beratung

Dejan Stanisavljevic

IKW Immokontakt Wohnideen GmbH

T +436503110002