Tolle Doppelhaushälfte in Stetten - Erstbezug mit 105m², Garten & 2 Stellplätzen

Haus - Doppelhaushälfte, 2100 Stetten


Die Gemeinde Stetten im Bezirk Korneuburg liegt ausgangs des Korneuburger Beckens – an den flachen Hängen des Weinviertels. Sie präsentiert sich als typische Weinviertler Ortschaft mit Kirche, Dorfanger, Gemeindeamt, Schule und Kindergarten. Nur 15 Kilometer trennen das dynamische Dorf mit seinen idyllischen Spazier- und Radwegen von der Großstadt Wien.

Beschreibung der Immobilie

Tolle Doppelhaushälfte in Stetten - Erstbezug mit 105m², Garten & 2 Stellplätzen

Die Kurzinformation für eilige Leser



  • Doppelhaushälfte mit rund 105 m² Wohnnutzfläche
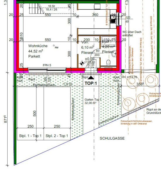
    bestehend im Erdgeschoß aus: Vorraum, WC mit Handwaschbecken und Dusche, Wohnküche

    im Obergeschoß aus: Vorraum, 3 Zimmer, Badezimmer mit WC, Abstellraum
  • rund 32 m² Garten
  • Baujahr 2022-2024 - Erstbezug
  • 2 KFZ Abstellplätze mit jeweils rund 12 m²
  • Beheizung via Luftwärmepumpe per Fußbodenheizung
  • belagsfertiger Zustand (Schlüsselfertigpaket möglich gegen Aufpreis)



Die ausführliche Beschreibung:



Die Doppelhaushälfte wurde 2022-2024 gebaut undbefindet sich in ruhiger Wohnlage am Rande von Stetten.



Im Erdgeschoßes angekommen, stehen Ihnen rechterhand das WC mit Handwaschbecken und Dusche zur Verfügung. Gehen Sie links, gelangen Sie in die großzügig konzipierte Wohnküche, zum Stiegenaufgang in das Obergeschoß sowie weiters in den Garten.



Das Obergeschoß besticht durch 3 Zimmer (Schlafzimmer, Kinderzimmer, Büro, Gästezimmer,...), einen Bad mit WC sowie einen Abstellraum.



Abgerundet wird dieses tolle Haus mit 2 KFZ Abstellplätzen.





Vertragserrichter / Treuhänder für das Projekt:
Christian Bauer

öffentlicher Notar

Franz-Josef-Straße 33

2130 Mistelbach

 



Beheizung und Warmwasseraufbereitung:



Die Beheizung sowie Warmwasseraufbereitung erfolgt per Luft/Wasser Wärmepumpe, welche via Fußbodenheizung für angenehmes Wohnklima sorgt. Bei der Wärmepumpe wurde nicht gespart, eine hochwertige Diakin Wärmepumpe wurde verbaut. 





Belagsfertiger Zustand:



Die Häuser werden im Belagsfertigen Zustand übergeben, heißt für Sie dass folgende Arbeiten bleiben:



  • Innentüren + Zargen
  • Bodenbeläge Innen
  • Bodenbeläge Terrasse / Einfahrtsbereich
  • Inneneinrichtung (Bad, Küche, etc.)
  • Handlauf


Ein Angebot zur Schlüsselfertigkeit kann jederzeit nach Absprache gelegt werden. Bei diesem Objekt sind die Wände sogar fix fertig ausgemalt und gespachtelt. 





Verkehrsanbindung:



Bus 857: Korneuburg (S3, S4 Anbindung) - Stetten - Pyhra bei Gnadendorf



Zuganbindung S3: Payerbach Reichenau - Korneuburg - Wien Floridsdorf



Zuganbindung S4: Wien Meidling - Korneuburg (S3, S4, Bus 857 Anbindung) - Stockerau





Anruf-Sammeltaxi (AST)



In vielen österreichischen Gemeinden stellt das Anruf-Sammeltaxi eine sinnvolle und attraktive Ergänzung zum bestehenden öffentlichen Verkehrsangebot dar. Bei dieser alternativen Betriebsform werden die Fahrgäste gegen telefonische Bestellung von und zu den AST-Sammelstellen bzw. überhaupt bis zur Haustüre chauffiert. 



So funktionieren AST und Rufbus:



  • Grundsätzlich gilt: Sie müssen Ihren Fahrtwunsch vorab telefonisch anmelden.
  • Die passende Telefonnummer für die Anmeldung Ihrer Fahrt finden Sie im jeweiligen Linienfahrplan oder in der Detailansicht Ihrer Verbindungsauskunft im VOR AnachB Routenplaner. 
  • VOR Rufbusse fährt zum jeweils gültigen VOR-Tarif.
  • Für AST-Fahrten gilt der jeweilige AST-Tarif. Für Fahrgäste mit einer gültigen VOR-Zeitkarte (Wochen-, Monats- oder Jahreskarte/KlimaTicket) für die gewünschte Strecke wird kein Aufschlag verrechnet. 
  • Ihr Ticket erhalten Sie im Fahrzeug.
  • Ansonsten verkehren AST und VOR Rufbusse meist auf festgelegten Strecken und starten in der Regel an wichtigen Verkehrsknoten wie Bahnhöfen und zentralen Plätzen.


ISTmobil



Die ISTmobil GmbH entwickelt und betreibt ein Anruf-Sammel-Taxi System. Mit ISTmobil wird Mobilität abseits vom eigenen Auto über Sammelhaltepunkte in Ihrer Nähe möglich. Die gültigen Bus- und Bahnfahrpläne sind in die ISTmobil-Vermittlung integriert und werden bei Fahrten über die Gemeindegrenze hinweg berücksichtigt.



Nähere Infos finden Sie auch auf www.istmobil.at





Mit dem Auto:



sind Sie binnen 20 Minuten in Wien. Korneuburg ist rund 7 Minuten entfernt.





Infrastruktur:



In der Nähe finden sich ein Landeskindergarten, Volkschule, Kinderhaus, Ärzte, Buschenschank, Restaurants, Heurige, uvm.





Wichtig:



Unter bestimmten Voraussetzungen (Anmeldung als Hauptwohnsitz, dringendes Wohnbedürfnis), kommen Sie jetzt in den Genuss der Gebührenbefreiung von der Grundbucheintragungsgebühr (1,1%) und der Eintragungsgebühr des Pfandrechts (1,2%)!





SIE SIND NOCH UNSCHLÜSSIG, OB IHRE FINANZIERUNG GESICHERT IST?



Ihre Hausbank benötigt im Normalfall 4-6 Wochen, um Ihnen mitzuteilen, ob Ihr Kredit bewilligt wird, oder nicht. Unser Finanzierungspartner sagt Ihnen nicht nur anhand Ihrer Unterlagen in kürzester Zeit, ob die Finanzierung klappen wird, er sorgt auch für den besten und günstigsten Wohnkredit, da er Zugang zu den besten Angeboten aller relevanten Banken hat.



Last but not least: Unser Finanzberater kostet Sie nichts, denn er bekommt seine Provision von der finanzierenden Bank!


Wir weisen darauf hin, dass zwischen dem Vermittler und dem zu vermittelnden Dritten ein familiäres oder wirtschaftliches Naheverhältnis besteht.


Der Vermittler ist als Doppelmakler tätig.

Infrastruktur / Entfernungen

Gesundheit
Arzt <3.000m
Apotheke <4.500m
Krankenhaus <4.000m
Klinik <9.000m

Kinder & Schulen
Schule <1.000m
Kindergarten <1.000m
Universität <8.500m

Nahversorgung
Supermarkt <2.000m
Bäckerei <3.000m
Einkaufszentrum <7.000m

Sonstige
Bank <1.000m
Geldautomat <1.000m
Post <2.000m
Polizei <4.500m

Verkehr
Bus <500m
Autobahnanschluss <1.500m
Straßenbahn <8.500m
Bahnhof <1.000m

Angaben Entfernung Luftlinie / Quelle: OpenStreetMap

Eckdaten Objektnr. 6547/3644

Art: Haus - Doppelhaushälfte
Land: Österreich
Baujahr: 2022
Zustand: Erstbezug
Alter: Neubau
Kaufpreis: 350.000,00
Provision: 3% des Kaufpreises zzgl. 20% USt.
Betriebskosten: 100,00 €
MwSt Gesamt: 10,00 €
Wohnfläche: 105,25 m²
Zimmer: 4
Bäder: 2
WC: 2
Stellplätze: 2
Garten: 32,00 m²
Heizwärmebedarf:  B  32,50 kWh/m²a
fGEE:  A+  0,59
Immobilie merken Exposé

Immobilie anfragen


Ihre persönliche Beratung

TRUE Immobilien GmbH & Co KG

Rene Sezgin

CPS Immobilien Sezgin e.U.

H +43 660 406 36 67