Kirchdorf an der Krems: Wohnung im 3. OG mit Loggia – ab 01.03.2026 verfügbar!

Wohnung , 4560 Kirchdorf an der Krems , Hausmanninger Straße 15


Die Wohnung liegt in Kirchdorf an der Krems in der Hausmanningerstraße 15. Nahversorgung, öffentliche Verkehrsanbindung sowie Einrichtungen des täglichen Bedarfs sind in Kirchdorf grundsätzlich gut erreichbar.

Beschreibung der Immobilie

Kirchdorf an der Krems: Wohnung im 3. OG mit Loggia – ab 01.03.2026 verfügbar!

Kirchdorf / Pyhrn-Priel-Region / Nationalpark Kalkalpen / Hausmanningerstraße 15:



Zur Vermietung steht eine Wohnung im 3. Obergeschoss (Tür 12) in 4560 Kirchdorf an der Krems, Hausmanningerstraße 15. Die Wohnung bietet eine funktionale Raumaufteilung mit Wohnzimmer, Schlafzimmer, Kabinett sowie separatem WC und einer Loggia.



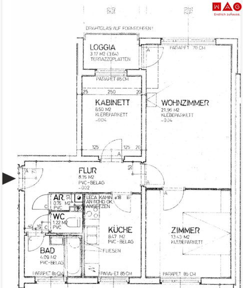
Raumaufteilung & Highlights



Raumaufteilung



  • Wohnfläche: 69,75 m²
  • Flur: 8,15 m²
  • Küche: 8,47 m²
  • Badezimmer: 4,09 m²
  • WC: 1,22 m²
  • Abstellraum: 0,76 m²
  • Schlafzimmer: 8,50 m²
  • Kabinett: 8,50 m²
  • Wohnzimmer: 21,96 m²
  • Loggia: 3,17 m²


Highlights



  • Loggia (3,17 m²)
  • Separates WC
  • Abstellraum für zusätzlichen Stauraum
  • Miete inkl. Betriebskosten & Heizung (zzgl. Strom und Warmwasser)
  • Kabinett ideal als Homeoffice / Gästezimmer


Mietkondition



  • Miete inkl. Betriebskosten, Heizung und MwSt.: 806,68 € / Monat

    (ohne Strom und Warmwasser)
  • Kaution/BKZ: 2.420,04 €


Verfügbarkeit



Die Wohnung steht ab 01.03.2026 zur Verfügung.

Sie sind an weiteren Wohnungs- bzw. Gewerbeangeboten interessiert? Ein vielfältiges Angebot finden Sie auf unserer Website.

Zur WAG-Immobiliensuche: SUCHE

Zur WAG-Wohnungsanmeldung: Wohnungsanmeldung

Gerne beraten wir Sie persönlich über unser vielfältiges Angebot, rufen Sie uns einfach an! Und das natürlich ohne Vermittlungsgebühren und provisionsfrei!

Angaben sind ohne Gewähr auf Richtigkeit und Vollständigkeit. Druckfehler vorbehalten.

Infrastruktur / Entfernungen

Gesundheit
Arzt <225m
Apotheke <500m
Klinik <1.000m
Krankenhaus <125m

Kinder & Schulen
Schule <550m
Kindergarten <3.275m

Nahversorgung
Supermarkt <300m
Bäckerei <325m
Einkaufszentrum <9.950m

Sonstige
Bank <400m
Geldautomat <400m
Post <575m
Polizei <625m

Verkehr
Bus <100m
Bahnhof <575m
Autobahnanschluss <2.925m
Flughafen <4.275m

Angaben Entfernung Luftlinie / Quelle: OpenStreetMap

Eckdaten Objektnr. 6650/28160

Art: Wohnung
Land: Österreich
Zustand: Gepflegt
Gesamtmiete: 806,68
Kaltmiete (netto): 488,25 €
Kaltmiete: 643,16 €
Betriebskosten: 154,86 €
Heizkosten: 82,67 €
MwSt Gesamt: 80,85 €
Wohnfläche: 69,75 m²
Zimmer: 3
Bäder: 1
WC: 1
Heizwärmebedarf:  C  54,00 kWh/m²a
fGEE:  C  1,01
Immobilie merken Exposé

Ausstattung

Fliesen, Parkett, Fernwärme, Personenaufzug, Bad mit Fenster, Badewanne, Kabel/Satelliten-TV, Wasch/Trockenraum


Immobilie anfragen


Ihre persönliche Beratung

Team Vermietung EBS

WAG Wohnungsanlagen GmbH

T 0503386016