Tolle Gewerbefläche mit Rohbau gleich nebenan dem Skigebiet Grebenzen
Haus
,
8813
Sankt Lambrecht
8812 Sankt Lambrecht
Beschreibung der Immobilie
Tolle Gewerbefläche mit Rohbau gleich nebenan dem Skigebiet Grebenzen
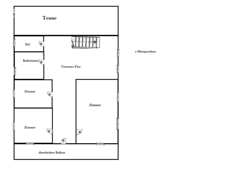
Eckdaten Objektnr. 961/35241
| Art: | Haus |
| Land: | Österreich |
| Kaufpreis: | 340.000,00 € |
| Provision: | 12.240,00 € inkl. 20% USt. |
| Grundstücksfl.: | 7.963,00 m² |
| Zimmer: | 5 |
| Bäder: | 2 |
| WC: | 2 |
| Balkone: | 1 |
| Terrassen: | 1 |
Ihre persönliche Beratung
Dieser Makler ist ein offizielles Mitglied des IR – ir.at Mehr Erfahren

