Erstbezug nach Sanierung in Krems mit Süd-Balkon

Wohnung - Etage, 3500 Krems an der Donau , Wiener Straße 8


Beschreibung der Immobilie

Erstbezug nach Sanierung in Krems mit Süd-Balkon

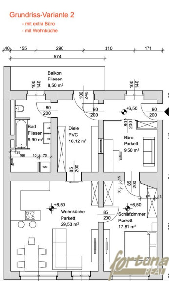
Diese Wohnung befindet sich in der Innenstadt von Krems/Donau, in der Wiener Straße 8. Der Grundriss wurde modernisiert, die gesamte Wohnung aufwändig saniert und sehr hochwertig ausgestattet. Altbautypisch verfügt sie über hohe Raumhöhen und ein angenehmes Klima. Der 8,5 m2 große Balkon ist nach Süden ausgerichtet und blickt in den ruhigen Innenhof. Große Fenster auf zwei gegenüberliegenden Seiten ermöglichen das Querlüften.



Parkplätze finden Sie entweder entlang der Straße, oder im Parkhaus direkt gegenüber (Dauerparkplätze derzeit € 80,-- monatlich).



Die monatlichen Betriebskosten sind mit € 237,07 zzgl. 10 % USt besonders günstig. Auch die Instandhaltungsrücklage beschränkt sich auf das gesetzliche Mindestmaß von € 90,31 p.m.



Erstbezug nach Sanierung:



  • hochwertige Elektroausstattung (ausreichend Schalter u. Lichtauslässe, Starkstrom für Küche, indirekte Beleuchtung und Spots in Wohnküche, Spots im Bad)
  • neue Innentüren und Zargen (Drehtüren in weiß, Glas-Schiebetüren satiniert)
  • hochwertige Sanitärausstattung
    • Hansgrohe-Armaturen schwarz 
    • Geberit-Drückerplatte schwarz
    • Hansgrohe Regendusche + Brause-Set schwarz
    • Hansgrohe Badewannen-Brauseset schwarz
    • moderner Doppelwaschtisch
    • beleuchteter Spiegel mit indirekter Beleuchtung und beschlagfrei
    • Handtuchheizkörper schwarz
    • WC von Villeroy & Boch
    • Badwanne weiß
    • niveaugleiche Dusche mit offener Glaswand
    • große Nische in der Dusche für Duschgel, etc. (3 große Fächer)
    • Waschmaschinenanschluss in versteckbarer Nische

  • Therme gewartet
  • neuer Estrich
  • neue Wandmalerei
  • neuer Eichendielen-Parkett
  • großformatige Wand- u. Bodenfliesen 120 x 60cm
  • Fenster geschliffen und neu lackiert
  • fixverglastes Innenfenster zwischen Büro und Diele
  • Balkongeländer neu lackiert



Lage:



  • im Gebäude: Pizzeria
  • direkt gegenüber: Fitness-Studio mit Sauna
  • direkt gegenüber: Parkgarage
  • direkt gegenüber: Allgemeinmediziner
  • 140 m: Beginn Fußgängerzone (Boutiquen, Restaurants, Kaffeehäuser, etc.)
  • 270 m: Hak-Krems
  • 600 m: Bahnhof Krems
  • 2 Autominuten: Krankenhaus Krems
  • 6 Autominuten: Donau-Universität Krems
  • 7 Autominuten: DPU-Privatuniversität Krems/Stein

Wir weisen darauf hin, dass zwischen dem Vermittler und dem zu vermittelnden Dritten ein familiäres oder wirtschaftliches Naheverhältnis besteht.


Der Vermittler ist als Doppelmakler tätig.

Infrastruktur / Entfernungen

Gesundheit
Arzt <25m
Apotheke <275m
Klinik <775m
Krankenhaus <650m

Kinder & Schulen
Schule <150m
Kindergarten <375m
Universität <475m
Höhere Schule <925m

Nahversorgung
Supermarkt <250m
Bäckerei <50m
Einkaufszentrum <1.150m

Sonstige
Geldautomat <75m
Bank <325m
Post <575m
Polizei <550m

Verkehr
Bus <25m
Autobahnanschluss <1.425m
Bahnhof <450m
Flughafen <4.250m

Angaben Entfernung Luftlinie / Quelle: OpenStreetMap

Eckdaten Objektnr. 1633/45

Art: Wohnung - Etage
Land: Österreich
Kaufpreis: 319.000,00
Provision: 3% des Kaufpreises zzgl. 20% USt.
Betriebskosten: 237,07 €
MwSt Gesamt: 23,71 €
Wohnfläche: 83,28 m²
Zimmer: 4
Bäder: 1
WC: 1
Balkone: 1
Heizwärmebedarf:  C  54,60 kWh/m²a
fGEE:  G  4,06
Immobilie merken Exposé

Immobilie anfragen


Ihre persönliche Beratung

Fortuna Real GmbH & Co KG

Ing. Gregor Waltner

Fortuna Real GmbH & Co Kg

H +43 664 / 51 489 51