Büro/Ordination in der Josefstadt !

Büro / Praxis , 1080 Wien


Beschreibung der Immobilie

Büro/Ordination in der Josefstadt !

Im Herzen der Josefstadt gelangt ab sofort in einem denkmalgeschützten Haus diese Fläche im Erdgeschoss zur unbefristeten Vermietung. 



Dieses Objekt im Ausmaß von ca. 92 m² kann als Ordination oder Büro genutzt werden und verfügt über einen straßenseitigen Eingang.

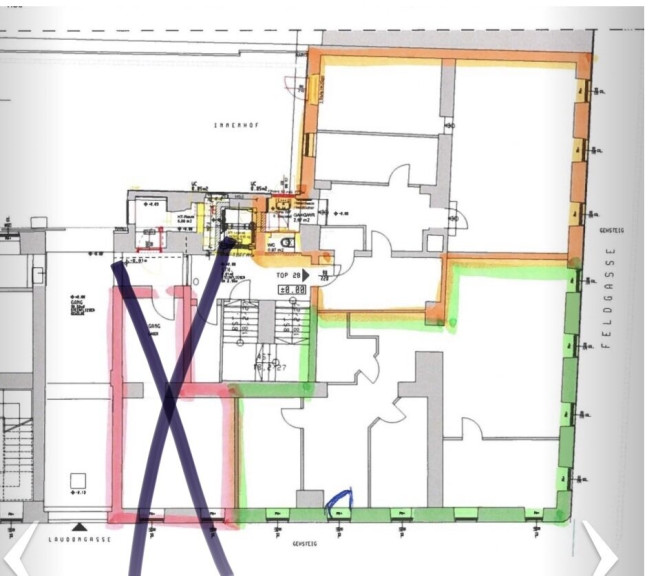
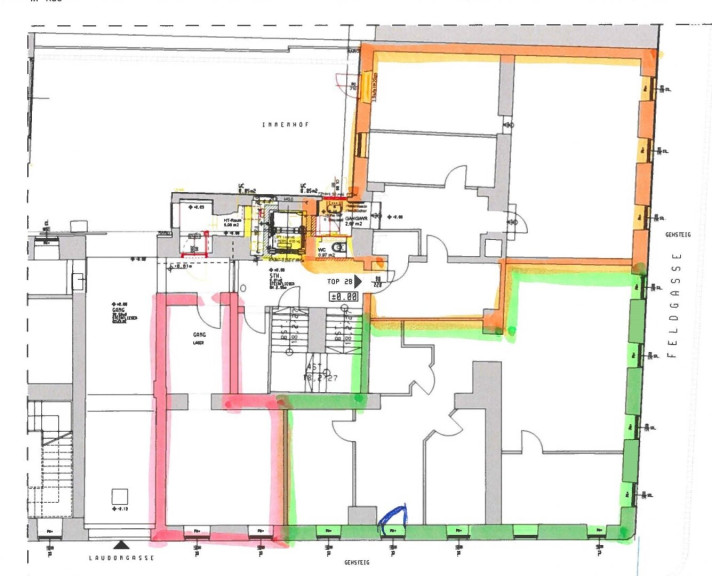
Siehe auf der beiliegenden Planskizze, die grün markierte Fläche.

Optional steht auch die Nachbarfläche mit ca. 85 m² zur Verfügung. 



Eine branchenfreie Vermietung ist möglich, wir denken an eine Ordination, Architekten, Werbeagentur oder ähnliche Berufe.

Zusätzlich kann auch ein kleine Fläche mit ca. 28 m² angemietet werden, welche bis jetzt als Lager verwendet wurde. 



Ebenso ist eine Vermietung an Personen möglich, die ihre unternehmerischen Umsätze aus einer unechten Umsatzsteuerbefreiung gemäß § 6 (1) 27 UStG, lukrieren. Sollte dies nicht der Fall sein, wird die Umsatzsteuer in der Höhe von 20 % hinzugerechnet.



  • Am Plan ist die Fläche 2a mit ca. 92 m² grün markiert dargestellt.
  • Die Fläche 2c mit ca. 85 m² orange markiert.
  • Die Fläche 2b mit ca. 28 m² rosa markiert.



Raumaufteilung Top 2a:



- 3 Räume

- 1 Küche

- 1 Vorraum

- 2 Toiletten



Infrastruktur im Gebäude:


- Im Haus gibt es einen Telekabel- und Glasfaseranschluss.

- Fernwärme

- Rad- und Kinderwagenabstellraum




Umgebung/Infrastruktur:


- Perfekte Anbindung an den öffentlichen Verkehr.

- In unmittelbarer Nähe befinden sich zahlreiche Geschäfte des täglichen Bedarfs, Restaurants, und Kaffeehäuser.

- Zu Fuß ist der Hamerlingpark in 2 Minuten erreichbar. 



Öffentliche Verkehrsmittel:


- U-Bahnlinie 6, Station: Josefstädter Straße

- Straßenbahnlinien: 2, 12, 5, 43, 44

- Buslinie: 13A



Laut Energieausweis vom 3.2.2025:



weist dieser einen Heizwärmebedarf von 161,8 kWh/m² pro Jahr auf.





Aufgrund der bereits seit 2014 geltenden EU-Richtlinien zum Fernabsatz- und Auswärtsgeschäfte-Gesetz bitten wir um Ihr Verständnis, dass wir Ihnen die Objekt-Unterlagen erst nach Ihrer Bestätigung, dass Sie unser Tätigwerden wünschen und über Ihre Rücktrittsrechte aufgeklärt wurden, zusenden können.

Bevor wir Ihnen die Unterlagen zuschicken, erhalten Sie eine Mail in der Sie dies bestätigen müssen.

Wir bedanken uns für Ihr Vertrauen!


Wir weisen darauf hin, dass zwischen dem Vermittler und dem zu vermittelnden Dritten ein familiäres oder wirtschaftliches Naheverhältnis besteht.


Der Vermittler ist als Doppelmakler tätig.

Infrastruktur / Entfernungen

Gesundheit
Arzt <500m
Apotheke <500m
Klinik <500m
Krankenhaus <500m

Kinder & Schulen
Schule <500m
Kindergarten <500m
Universität <1.000m
Höhere Schule <500m

Nahversorgung
Supermarkt <500m
Bäckerei <500m
Einkaufszentrum <1.500m

Sonstige
Geldautomat <500m
Bank <500m
Post <500m
Polizei <500m

Verkehr
Bus <500m
U-Bahn <500m
Straßenbahn <500m
Bahnhof <500m
Autobahnanschluss <3.500m

Angaben Entfernung Luftlinie / Quelle: OpenStreetMap

Eckdaten Objektnr. 1094

Art: Büro / Praxis
Land: Österreich
Baujahr: 1810
Alter: Altbau
Kaltmiete (netto): 1.117,52 €
Kaltmiete: 1.282,40 €
Miete / m²: 12,20 €
Provision: 3 Bruttomonatsmieten zzgl. 20% USt.
Betriebskosten: 164,88 €
Heizkosten: 325,87 €
Nutzfläche: 91,60 m²
Zimmer: 3
WC: 2
Heizwärmebedarf: 161,80 kWh/m²a
Immobilie merken Exposé

Ausstattung

Fernwärme


Immobilie anfragen


Ihre persönliche Beratung

IMMOBILIENJÄGER

Mag. Andrea Jäger

IMMOBILIENJÄGER

T +43 1 408 86 75

H +43 660 110 22 35