Landhausvilla DELUXE mit Seeblick und Hallenbad
Haus
- Landhaus,
5202
Neumarkt am Wallersee
Neumarkt am Wallersee ist eine Stadtgemeinde im Nordosten des österreichischen Bundeslandes Salzburg mit 6626 Einwohnern (Stand 1. Jänner 2024). Die nordöstlich der Landeshauptstadt Salzburg liegende, aus zwölf einzelnen Ortschaften bestehende Gemeinde ist zum Teil ländlich strukturiert. Neumarkt gilt als ein Schwerpunkt der Region, wirtschaftlich dominant ist auch der Dienstleistungssektor. Die vormalige Marktgemeinde wurde im Jahr 2000 zur Stadtgemeinde erhoben. (Quelle: wikipedia.org)
Beschreibung der Immobilie
Landhausvilla DELUXE mit Seeblick und Hallenbad
Traumhafter Seeblick
Dieses ca. 180 m² große Einfamilienhaus beweist architektonisches Geschick.
Es liegt erhöht in einer wunderschönen Umgebung mit einem einzigartigen Seeblick auf den Wallersee. Es ist umgeben von Wiesen und hat einen sehr gepflegten Garten, von dem aus auch in das Hallenbad gelangt werden kann.
Das Haus punktet mit lichtdurchfluteten, offenen Räumen, einer großzügigen Galerie mit Lichtschacht, raumhohen Türen, Einbauschränken, dem gelungenen Raumkonzept und dem Hallenbad.
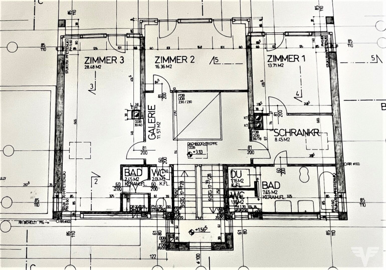
Es weist insgesamt 3 große Schlafzimmer auf, wobei der Masterbedroom mit einem begehbaren Kleiderschrank und einem eigenen Badezimmer ausgestattet wurde. Ein 2. Bad befindet sich ebenso im Obergeschoß.
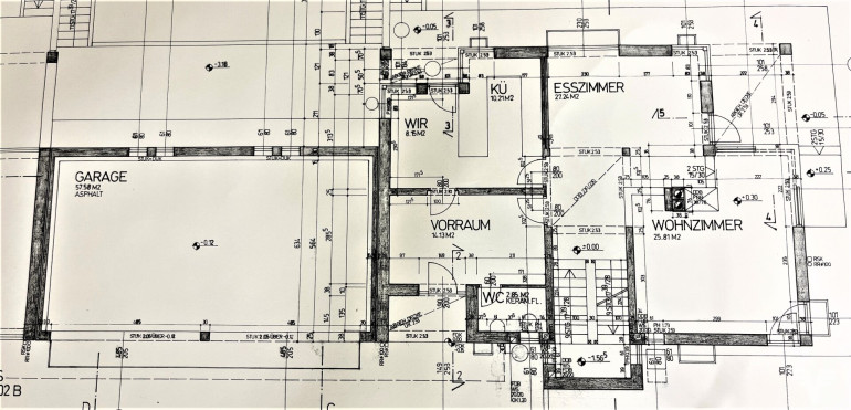
Das Erdgeschoß beherbergt den Eingangsbereich mit Gäste-WC, eine Wohnküche mit Kücheninsel und Essecke, einen geräumigen Essbereich und ein Wohnzimmer mit Kachelofen mit Zugang zum Garten.
Über eine elegante Marmortreppe gelangt man ins Untergeschoß mit einem eigenen Wellnessbereich mit Sauna, Dampfbad und Hallenbad. Vervollständigt wird das Untergeschoß durch einen Weinkeller, einen Technikraum und einen Hauswirtschaftsraum.
Ihre Fahrzeuge parken Sie in der Garage oder den Außenstellflächen.
Wenn Sie nähere Informationen wünschen, freuen wir uns über Ihre Anfrage. Wir werden Ihnen sodann gerne ein detailliertes Immobilienangebot zukommen lassen.
Im Falle einer allfälligen Finanzierung bieten wir Ihnen gerne ein unverbindliches, auf Sie maßgeschneidertes Finanzmodell an.
Bitte beachten Sie, dass wir aufgrund der Nachweispflicht gegenüber dem Abgeber nur Anfragen mit vollständigen Angaben (Vor- und Zuname, Anschrift, Telefonnummer, E-Mail) bearbeiten können.
Der Vermittler ist als Doppelmakler tätig.
Infrastruktur / Entfernungen
Gesundheit
Arzt <1.000m
Apotheke <1.000m
Klinik <10.000m
Kinder & Schulen
Schule <1.000m
Kindergarten <1.000m
Universität <7.500m
Nahversorgung
Supermarkt <1.000m
Bäckerei <1.500m
Sonstige
Bank <1.000m
Geldautomat <1.000m
Post <1.000m
Polizei <1.500m
Verkehr
Bus <500m
Bahnhof <2.500m
Autobahnanschluss <9.500m
Angaben Entfernung Luftlinie / Quelle: OpenStreetMap
Eckdaten Objektnr. 507/2703
| Art: | Haus - Landhaus |
| Land: | Österreich |
| Baujahr: | 1993 |
| Kaufpreis: | 1.250.000,00 € |
| Provision: | 3% des Kaufpreises zzgl. 20% USt. |
| Wohnfläche: | 180,00 m² |
| Nutzfläche: | 359,00 m² |
| Grundstücksfl.: | 830,00 m² |
| Heizwärmebedarf: | 70,00 kWh/m²a |
Ihre persönliche Beratung
Dieser Makler ist ein offizielles Mitglied des IR – ir.at Mehr Erfahren

