Exklusive Anlagewohnungen in Mauerbach: Wohnen zwischen Stadt und Natur
                                                            Wohnung
                                ,
                            
                            
                                
                                                                            1140
                                    
                                                                            Wien
                                    
                                    ,
                                        Hauptstraße                                                                                    
                                    
                                
                                                                    
                                        
                                    
                                
                            
                        
                        Beschreibung der Immobilie
Exklusive Anlagewohnungen in Mauerbach: Wohnen zwischen Stadt und Natur
Zuhause in Hawei – Ihr exklusives Investment zwischen Natur und Stadtleben!
In Hadersdorf-Weidlingau, dem familienfreundlichen 14. Wiener Gemeindebezirk, entsteht in der Mauerbachstraße, 1140 Wien, ein einzigartiges Wohnbauprojekt mit 13 hochwertig ausgestatteten Eigentums- und Vorsorgewohnungen zwischen 81 m² und 137 m² Wohnfläche sowie einem wunderschönen Salettl, das als Geschäftsfläche genutzt werden kann. Die ideale Lage, gleich um die Ecke vom Auhofcenter und der S-Bahn-Station, sowie die Nähe zum Grünen, bietet den Bewohnern eine perfekte Infrastruktur mit allen Geschäften, Schulen und Arztpraxen, die das Herz begehrt. Die S-Bahn und die Buslinien sind fußläufig schnell erreichbar. Das Projekt überzeugt durch effiziente und praktische Grundrisse und bietet eine Auswahl an wunderschönen 3- bis 4-Zimmer-Wohnungen. Der Großteil der Wohneinheiten verfügt über großzügige Freiflächen in Form von Balkonen, Terrassen oder Eigengärten.
Zuhause in Hawei – Clever investieren, nachhaltig profitieren, entspannt vermieten!
Willkommen bei Zuhause in Hawei, einem außergewöhnlichen Wohnbauprojekt, das urbanen Komfort und naturnahe Ruhe vereint. Ideal gelegen, bietet dieses Projekt die perfekte Balance zwischen städtischer Anbindung und entspannter Atmosphäre im Grünen – ein Investment, das nicht nur Rendite, sondern auch Lebensqualität verspricht.
Das Projekt
Die hochwertigen Baumaterialien und die moderne Gebäudetechnik sorgen nicht nur für eine ansprechende Ästhetik, sondern auch für langfristige Energieeffizienz und niedrige Betriebskosten.
- 14 freifinanzierte Vorsorgewohnungen
- 14 Tiefgaragenplätze
- 3 – 4 Zimmerwohnungen
- Wohnungsgrößen zwischen 81 und 137 m²
- Freiflächen wie Eigengarten, Terrasse, Loggia oder Balkon
- Kinderwagen- und Fahrradabstellraum
Die Ausstattung
- Hochwertige Parkettböden
- Feinsteinzeug in den Nassbereichen (Format 30x60 sowie 60x60)
- Fußbodenheizung mit nachhaltiger Luft-Wärmepumpe
- Beschattung je bauphysikalischer Gegebenheiten
- Photovoltaikanlage
- Klimageräte in den Dachgeschoßwohnungen (DG 1 und DG 2)
Kaufpreise der Vorsorgewohnungen
von EUR 520.003,00,- bis EUR 1.061.619,- netto zzgl. 20% USt.
Kaufpreis des Vorsorge-Stellplatzes
EUR 25.000,00 netto zzgl. 20% USt.
Zu erwartender Mietertrag
von ca. EUR 14,50 bis EUR 16,75 netto/m²
Provisionsfrei für den Käufer!
Fertigstellung: 1. Quartal 2026
Bei diesem Angebot handelt es sich um eine Vorsorgewohnung, die zu Vermietungszwecken erworben wird. Der angegebene Kaufpreis versteht sich daher zzgl. 20% USt. Diese Daten sind vorbehaltlich möglicher Änderungen.
Einen detaillierten Überblick finden Sie auf unserer EHL-Projekthomepage.
Wir weisen darauf hin, dass zwischen dem Vermittler und dem zu vermittelnden Dritten ein familiäres oder wirtschaftliches Naheverhältnis besteht.
Der Vermittler ist als Doppelmakler tätig.
Infrastruktur / Entfernungen
Gesundheit
Arzt <2.500m
Apotheke <500m
Klinik <4.500m
Krankenhaus <3.250m
Kinder & Schulen
Schule <250m
Kindergarten <500m
Universität <1.500m
Höhere Schule <7.000m
Nahversorgung
Supermarkt <250m
Bäckerei <500m
Einkaufszentrum <750m
Sonstige
Geldautomat <750m
Bank <750m
Post <750m
Polizei <500m
Verkehr
Bus <250m
Straßenbahn <2.500m
U-Bahn <2.750m
Bahnhof <250m
Autobahnanschluss <750m
Angaben Entfernung Luftlinie / Quelle: OpenStreetMap
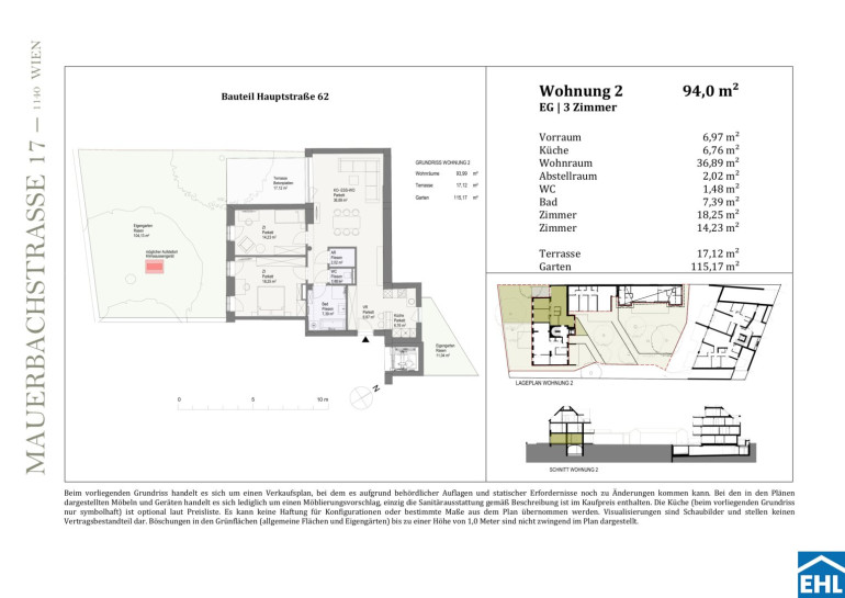
Eckdaten Objektnr. 80152
| Art: | Wohnung | 
| Land: | Österreich | 
| Baujahr: | 2026 | 
| Zustand: | Erstbezug | 
| Alter: | Altbau | 
| Kaufpreis: | 557.028,00 € | 
| Provision: | Provisionsfrei für den Käufer | 
| Wohnfläche: | 94,00 m² | 
| Zimmer: | 3 | 
| Bäder: | 1 | 
| WC: | 1 | 
| Terrassen: | 1 | 
| Garten: | 115,17 m² | 
| Heizwärmebedarf: | C 58,10 kWh/m²a | 
| fGEE: | B 0,91 | 
Ausstattung
Fliesen, Parkett, Fußbodenheizung, Wohnküche / offene Küche, Personenaufzug, Badewanne, Dusche
Ihre persönliche Beratung
Dieser Makler ist ein offizielles Mitglied des IR – ir.at Mehr Erfahren
 
                
                 
                 
                 
                 
                 
                 
                 
                 
                 
                 
                 
                 
                