Freifinanzierte Wohnungen Miete mit Kaufoption**in Bau**geplante Fertigstellung: Winter 2025//2026

Wohnung - Maisonette, 2332 Hennersdorf


Höbelgasse 2

Beschreibung der Immobilie

Freifinanzierte Wohnungen Miete mit Kaufoption**in Bau**geplante Fertigstellung: Winter 2025//2026

Hauptstraße 28, 2332 Hennersdorf bei Wien

Miete mit Kaufoption in 5 Jahren zu einem Fixpreis



Hinweis: Derzeit sind Besichtigungen leider nicht möglich. Sobald ein Termin verfügbar ist, informieren wir Sie gerne. Bitte hinterlassen Sie Ihre Kontaktdaten über das Formular, damit wir Sie benachrichtigen können.



Liebe Interessenten,



wir freuen uns, Ihnen mitteilen zu können, dass wir in Hennersdorf insgesamt 12 exklusive Wohnungen für Sie errichten. 



Hennersdorf, ein charmanter Vorort von Wien, zeichnet sich durch eine idyllische Lage und eine hervorragende Anbindung an die Hauptstadt aus. Die erstklassige Bahnverbindung ermöglicht es Bewohnern, bequem und schnell in die Wiener Innenstadt zu gelangen, was diesen Standort besonders attraktiv macht.



Sie finden auf dieser Seite weiter unten Informationen zu den verfügbaren Wohnungen wie die Preise und  Pläne. Wir bitten um Ihr Verständnis, dass wir derzeit aufgrund der laufenden Bauarbeiten noch keine Besichtigungen vor Ort anbieten können. 



Sollten Sie an einer bestimmten Wohnung interessiert sein, stehen wir Ihnen gerne zur Verfügung, um diese exklusiv für Sie zu reservieren. Unser Ziel ist es, so schnell wie möglich eine Wohnung fertigzustellen, damit wir Ihnen bald persönliche Einblicke in unser Projekt ermöglichen können. Die Fertigstellung ist mit dem Winter 2025 vorgesehen. Die angegebenen Preise sind als Richtwerte zu verstehen. Obwohl wir mit größter Sorgfalt gearbeitet haben, kann es zu Anpassungen in der Kalkulation kommen.



Wir freuen uns auf Ihre Kontaktaufnahme unter c.edlinger@wbv-gfw.at oder mittels Kontaktformular.


Der Immobilienmakler erklärt, dass er – entgegen dem in der Immobilienwirtschaft üblichen Geschäftsgebrauch des Doppelmaklers – einseitig nur für den Vermieter tätig ist.

Infrastruktur / Entfernungen

Gesundheit
Arzt <3.000m
Apotheke <2.500m
Klinik <4.500m
Krankenhaus <5.500m

Kinder & Schulen
Schule <2.500m
Kindergarten <500m
Universität <5.500m
Höhere Schule <7.000m

Nahversorgung
Supermarkt <500m
Bäckerei <3.500m
Einkaufszentrum <3.000m

Sonstige
Geldautomat <2.000m
Bank <2.000m
Post <2.500m
Polizei <3.000m

Verkehr
Bus <500m
U-Bahn <4.500m
Straßenbahn <5.000m
Bahnhof <500m
Autobahnanschluss <2.000m

Angaben Entfernung Luftlinie / Quelle: OpenStreetMap

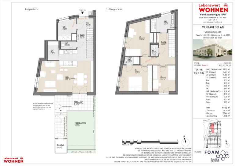
Eckdaten Objektnr. 5114/364456153

Art: Wohnung - Maisonette
Land: Österreich
Zustand: Erstbezug
Alter: Neubau
Gesamtmiete: 1.782,49
Kaltmiete (netto): 1.782,49 €
Kaltmiete: 1.782,49 €
Provision: Gemäß Erstauftraggeberprinzip bezahlt der Abgeber die Provision.
Wohnfläche: 117,32 m²
Zimmer: 4
Terrassen: 1
Garten: 21,46 m²
Immobilie merken Exposé

Immobilie anfragen


Ihre persönliche Beratung

Wohnbauvereinigung GFW Gemeinnützige GmbH

Christina-Maria Edlinger-Unger, MBA

Wohnbauvereinigung GFW Gemeinnützige GmbH

T +43160573505

H +43 664 831 8278