Geniale 3 Zimmerwohnung mit Balkon in ruhigen grünen Innenhof - Top 9 | Neubauprojekt "HAGEN8" | jetzt besichtigen

Wohnung , 4040 Linz , Hagenstraße 8


Beschreibung der Immobilie

Geniale 3 Zimmerwohnung mit Balkon in ruhigen grünen Innenhof - Top 9 | Neubauprojekt "HAGEN8" | jetzt besichtigen

Rascher Baufortschritt -> jetzt Besichtigungstermin vereinbaren !!!



HAGEN8. In begehrter Wohngegend von Linz-Urfahr entsteht an der Hagen Straße 8 ein modernes Wohnhaus mit 12 stilvollen Eigentumswohnungen und einer Tiefgarage mit 7 Stellplätzen. Die Wohnflächen von 43 m² bis 95 m² bieten vielseitige Möglichkeiten für individuelle Wohnbedürfnisse und richten sich sowohl an Paare und Singles als auch an Kapitalanleger. Alle Wohnungen werden schlüsselfertig und hochwertig ausgestattet übergeben, sodass einem sofortigen Einzug oder einer unkomplizierten Vermietung nichts im Wege steht.

Der Baustart ist bereits erfolgt, die Fertigstellung für Sommer 2026 geplant. Die Lage in Linz-Urfahr vereint städtische Dynamik und urbanem Komfort mit einer grünen Umgebung mit großem Freizeitangebot. Einkaufsmöglichkeiten, Schulen und Ärzte sind schnell erreichbar, öffentliche Verkehrsmittel in der unmittelbaren Umgebung und die Nähe zum Pöstlingberg und zur Donau lädt zu erholsamen Stunden in der Natur ein – ob für Spaziergänge, Sport oder einfach zum Entspannen.



Jetzt in eine Eigentumswohnung zu investieren, bietet besondere Vorteile: Die Nachfrage nach Wohnraum in Linz ist hoch, und der Immobilienmarkt zeigt stabile Perspektiven für Wertsteigerungen. Zudem sorgen aktuell wieder günstigere Zinsen für attraktive Finanzierungsmöglichkeiten und machen den Kauf einer Immobilie zur wertbeständigen Investition in die Zukunft. Verpassen Sie nicht den richtigen Zeitpunkt - jetzt Anfragen!



Facts:



  • 12 Eigentumswohnungen – schlüsselfertig
  • 43 - 104 m² Wohnfläche
  • hochwertige Ausstattung
  • mit Balkon/Terrassen
  • zentrale und günstige Lage
  • Tiefgarage mit 7 Stellplätzen



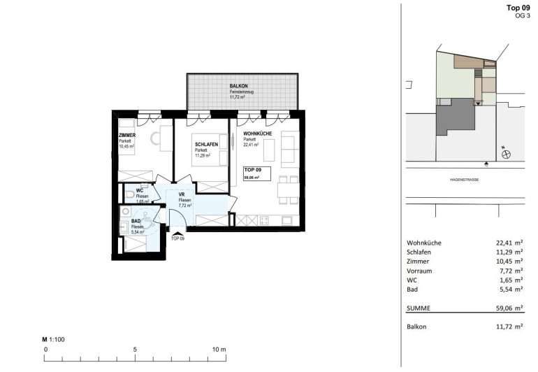
Wohnung Top 9 / 3. Obergeschoss (3.OG)
Wohnfläche: ca. 59,14 m²

Zimmer: 3

Balkon: ca. 11,63 m²

Kellerabteil: ca. 2,97 m²



Wohnung Top 9   € 439.000,--

1 Garagenstellplatz   € 39.900,--

Der Erwerb des KFZ Stellplatzes ist verpflichtend.



Gesamtkaufpreis "Eigennutzer"   € 478.900,-- umsatzsteuerbefreit gem. § 6 Abs.1 Z 9a UStG.

Gesamtkaufpreis "Anleger"   € 431.010,-- netto zzgl. 20 % Umsatzsteuer



Baubeginn: bereits erfolgt

geplante Fertigstellung: Sommer 2026




Bei Interesse freuen wir uns auf Ihre Anfrage.

Ihr SPERER Immobilien Team


Wir weisen darauf hin, dass zwischen dem Vermittler und dem zu vermittelnden Dritten ein familiäres oder wirtschaftliches Naheverhältnis besteht.


Der Vermittler ist als Doppelmakler tätig.

Infrastruktur / Entfernungen

Gesundheit
Arzt <50m
Apotheke <350m
Klinik <1.000m
Krankenhaus <1.425m

Kinder & Schulen
Kindergarten <200m
Schule <225m
Universität <575m
Höhere Schule <1.425m

Nahversorgung
Supermarkt <425m
Bäckerei <350m
Einkaufszentrum <725m

Sonstige
Bank <375m
Geldautomat <375m
Post <525m
Polizei <325m

Verkehr
Bus <125m
Straßenbahn <100m
Bahnhof <325m
Autobahnanschluss <600m
Flughafen <4.525m

Angaben Entfernung Luftlinie / Quelle: OpenStreetMap

Eckdaten Objektnr. 347

Art: Wohnung
Land: Österreich
Baujahr: 2025
Alter: Neubau
Kaufpreis: 439.000,00
Kaufpreis / m²: 7.423,06 €
Provision: 3% des Kaufpreises zzgl. 20% USt.
Wohnfläche: 59,14 m²
Zimmer: 3
Balkone: 1
Stellplätze: 1
Keller: 2,97 m²
Heizwärmebedarf:  B  40,00 kWh/m²a
fGEE:  A+  0,70
Immobilie merken Exposé

Ausstattung

Fliesen, Parkett, Nordbalkon, Tiefgarage


Immobilie anfragen


Ihre persönliche Beratung

SPERER Immobilien GmbH

Ing. Stefan Pichler

Axia Immobilien GmbH - TESTACCOUNT

T +43 7242 306030

H +43 676 4630535