+ + + GEKÜHLTE NEUBAUBÜROS IN TOP-LAGE NÄHE NASCHMARKT + + + U4 STATION + + +
Büro / Praxis
,
1050
Wien
Beschreibung der Immobilie
+ + + GEKÜHLTE NEUBAUBÜROS IN TOP-LAGE NÄHE NASCHMARKT + + + U4 STATION + + +
Objekt und Lage:
Die sehr gepflegte Liegenschaft befindet sich in Top-Lage des 4. Bezirks in unmittelbarer Nähe der U4, in ruhiger Seitengasse.
In wenigen Schritten ist der Naschmarkt zu erreichen. Die Umgebung bietet eine perfekte Balance zwischen urbanem Lebensgefühl und entspannter Arbeitsatmosphäre.
Die U4 Station Kettenbrückengasse ist in wenigen Gehminuten erreichbar und sorgt für ausgezeichnete Anbindung an das Wiener Verkehrsnetz.
Der nahegelegene Naschmarkt, sowie zahlreiche Restaurants, Cafés und Geschäfte im Umfeld schaffen ein attraktives Umfeld und für Mitarbeiter und Kunden gleichermaßen.
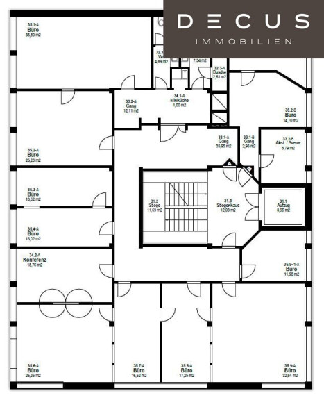
Zur Vermietung gelangen 2 Büro-Einheiten mit flexibler Raumgestaltung, die sowohl getrennt, als auch gesamt angemietet werden können.
Bevorzugt, werden allerdings Gesamtmieter mit einem Flächenbedarf von ca. 500 m².
Hinweis:
- Der Aufzug ist nur den Mietern des Hauses zugänglich (eigene Chipkarte), daher nur für Mieter mit wenig Kundenverkehr geeignet.
- Aus Sicherheitsgründen und als Trennung zum 2. und 3. OG, gibt es im Stiegenhaus eine Glastüre, die nur mit einer Chipkarte geöffnet werden kann.
- Zur Abtrennung (3. + 4.OG): technisch ist es möglich eine Türe zwischen dem 3. + 4.OG direkt im Stiegenhaus zu errichten. Derzeit sind die Flächen in den beiden Geschossen: offen über das Stiegenhaus zu erreichen.
- 3.OG: ca. 276,67 (Miete: € 6.606,89/Monat/inkl. BK und Ust.)
- 4.OG: ca. 219,98 m² zzgl. ca. 52,26 m² Terrasse (Miete: € 5.855,45/Monat/inkl. BK und Ust.)
- 3. + 4.OG: ca. 496,65 m² zzgl. ca. 52,26 m² Terrasse (Miete: € 12.462,34/Monat/inkl. BK und Ust.)
- 3.OG: Miete Büro € 14,50/m²/Monat/netto, BK ca. € 2,40/m²/Monat/netto, EK ca. € 3,00/m²/Monat/netto
- 4.OG: Miete Büro € 15,00/m²/Monat/netto, BK ca. € 2,40/m²/Monat/netto, EK ca. € 3,00/m²/Monat/netto, Miete Terrasse € 7,50/m²/Monat/netto
Die Betriebskosten (inkl. Heizung, Warmwasser, Kühlung, Strom, Abwasser, Lift) sind als zirka Angaben zu verstehen.
Mietvertrag: 10 Jahre befristet, 3 Jahre Kündigungsverzicht bzw. nach Vereinbarung
Kaution: 3 bis 6 Bruttomonatsmieten je nach Bonität
Provision: 3 Bruttomonatsmieten
Bezug: nach Vereinbarung
Ust.-befreite Mieter sind möglich
Ausstattung:
- flexible Raumeinteilung
- getrennte Sanitäreinheiten D/H
- Kühlung
- eingerichtete Teeküche
- öffenbare Fenster
- Teppichboden
- EDV Fensterbankkanäle
- abhängte Decke mit Beleuchtung
- Gasheizung
- tlw. Terrasse (im 4.OG = DG)
- Personenlift mit Chipkarte
- barrierefrei
- Innenfotos: 3. und 4.OG (=DG)
Energieausweis liegt vor:
Heizwärmebedarf: 127,99kWh/m².a
Stellplätze:
Innenhof, nach Rücksprache
€ 120,00/Stellplatz/Monat/netto
Verkehrsanbindung:
Beste öffentliche Anbindung durch die U4 Station Kettenbrückengasse gegeben. Individuell über die Wienzeile bestens erreichbar.
Alle Preisangaben verstehen sich zzgl. der gesetzl. Ust.
Alle Angaben ohne Gewähr, Irrtümer und Änderungen vorbehalten.
Wir weisen darauf hin, dass zwischen dem Vermittler und dem zu vermittelnden Dritten ein familiäres oder wirtschaftliches Naheverhältnis besteht.
Der Vermittler ist als Doppelmakler tätig.
DECUS Immobilien GmbH – Wir beleben Räume
Für weitere Informationen und Besichtigungen steht Ihnen gerne Frau Sonja Macho unter der Mobilnummer +43 664 44 53 56 1und per E-Mail unter macho@decus.at persönlich zur Verfügung.
www.decus.at | office@decus.at
Wichtige Informationen
Bitte beachten Sie, dass per 13.06.2014 eine neue Richtlinie für Fernabsatz- und Auswärtsgeschäfte in Kraft getreten ist.
Ab 1.4.2024 entfallen die Grundbuchs- und Pfandrechtseintragungsgebühren vorübergehend für Eigenheime bis zu einer Bemessungsgrundlage von EUR 500.000,-. Voraussetzung ist das dringende Wohnbedürfnis, ausgenommen davon sind vererbte oder geschenkte Immobilien. Die Befreiung ist jedoch für den Einzelfall zu prüfen, DECUS Immobilien übernimmt hierzu keine Haftung.
Ab 01.07.2023 gilt das Erstauftraggeber-Prinzip bei Wohnungsmietverträgen, ausgenommen davon sind Dienst-/Natural-/Werkswohnungen. Wir dürfen gem. § 17 Maklergesetz darauf hinweisen, dass wir auf die Doppelmaklertätigkeit gem. § 5 Maklergesetz bei Wohnungsmietverträgen verzichten und nur noch einseitig tätig sind (bei den restlichen Vermittlungsarten nicht) und ein wirtschaftliches Naheverhältnis zu unseren Auftraggebern besteht.
Im Falle eines Abschlusses mit Ihnen oder einem von Ihnen namhaft gemachten Dritten bzw. bei beidseitiger Willensübereinstimmung beträgt unser Honorar (lt. Honorarverordnung für Immobilienmakler) 2 Bruttomonatsmieten (BMM) bei Dienst-/Natural-/Werkwohnungen sowie Suchaufträgen, 3 BMM bei Gewerbe-, PKW- und Lagermietverträgen sowie bei Kaufobjekten 3 % des Kaufpreises, zuzüglich der gesetzlichen Umsatzsteuer.
Dieses Objekt wird Ihnen unverbindlich und freibleibend angeboten. Oben angeführte Angaben basieren auf Informationen und Unterlagen des Eigentümers und sind unsererseits ohne Gewähr.
Nähere Informationen sowie unsere AGBs und die Nebenkostenübersichtsblatt finden Sie auf unserer Homepage www.decus.at unter "Service" - "Rechtliches zum FAGG" sowie im Anhang der zugesendeten Objekt-Exposés!
Infrastruktur / Entfernungen
Gesundheit
Arzt <500m
Apotheke <500m
Klinik <500m
Krankenhaus <1.000m
Kinder & Schulen
Schule <500m
Kindergarten <500m
Universität <500m
Höhere Schule <1.000m
Nahversorgung
Supermarkt <500m
Bäckerei <500m
Einkaufszentrum <1.000m
Sonstige
Geldautomat <500m
Bank <500m
Post <500m
Polizei <500m
Verkehr
Bus <500m
U-Bahn <500m
Straßenbahn <500m
Bahnhof <500m
Autobahnanschluss <3.500m
Angaben Entfernung Luftlinie / Quelle: OpenStreetMap
Verfügbare Flächen
Stiege/Bauteil 3
Stiege/Bauteil
Eckdaten Objektnr. 1144613/3
Art: | Büro / Praxis |
Land: | Österreich |
Baujahr: | 1992 |
Alter: | Neubau |
Kaltmiete (netto): | 7.449,75 € |
Miete / m²: | 14,50 € - 15,00 € |
Provision: | 3 Bruttomonatsmieten zzgl. 20% USt. |
Betriebskosten: | 2.681,91 € |
Nutzfläche: | 496,65 m² |
Heizwärmebedarf: | 127,99 kWh/m²a |
Ihre persönliche Beratung

Sonja Macho
DECUS Immobilien GmbH
T +43 664 44 53 56 1
H +43 664 44 53 56 1
F +43 1 35 600 10