10. Stock mit traumhafter Aussicht. 3-Zimmer-Wohnung in Spittal/Drau zum Kauf.

Wohnung , 9800 Spittal an der Drau


Diese Immobilie befindet sich in einer sehr günstigen Lage in Spittal an der Drau in Kärnten. In unmittelbarer Nähe gibt es eine Vielzahl von Dienstleistungen, Einkaufsmöglichkeiten und Einrichtungen, darunter Ärzte, mehrere Apotheken, ein Krankenhaus, Schulen, einen Kindergarten, eine höhere Schule, uvm..

Beschreibung der Immobilie

10. Stock mit traumhafter Aussicht. 3-Zimmer-Wohnung in Spittal/Drau zum Kauf.

Willkommen in Ihrer neuen Wohnung in Spittal an der Drau. Diese Immobilie mit einem atemberaubenden Panoramablick befindet sich im Herzen der Stadt und inmitten beeindruckender Natur.



Objektvideo: https://youtu.be/dn5IaU_iDMY



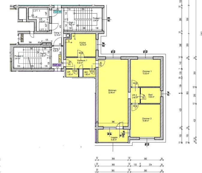
Mit einer Fläche von ca. 88,51 m² und einer ca. 6,35 m² verglasten Loggia auf der 10. Etage, ist diese Wohnung perfekt für Paare oder für eine Familie.



Sie verfügt über folgende Räume (Angaben m² lt. NWG):



  • 1 Küche: 10,76 m²,
  • 1 Abstellraum: 1,60 m²,
  • 1 WC: 1,60 m²,
  • 1 Wohnzimmer: 32,49 m², 
  • 1. Schlafzimmer: 13,30 m²,
  •  2. Schlafzimmer: 15,96 m²,
  • 1 Bad: 5,08 m²
  • 2 Vorräume: 7,72 m²




Genießen Sie den herrlichen Ausblick von der Loggia aus, der Ihnen einen unvergleichlichen Blick auf die umliegende Berglandschaft, die Stadt und die grüne Umgebung bietet. Der perfekte Ort, um sich zu entspannen und den Alltag hinter sich zu lassen.



Gemeinsame Zeit kann man auch im großen Gemeinschaftsgarten verbringen.



In der Hausanlage bieten zwei Personenaufzüge und ein Rollstuhl-/Treppenlift komplette Barrierefreiheit. Auch Menschen mit eingeschränkter Mobilität können die Wohnung und den Keller erreichen. 



Die Verkehrsanbindung ist hier ebenfalls ausgezeichnet. Eine Bushaltestelle befindet sich in unmittelbarer Nähe und der Bahnhof ist nur wenige Gehminuten entfernt. Alle Annehmlichkeiten des täglichen Lebens sind in unmittelbarer Nähe. 



Die Sanierungsfinanzierung des Hauses läuft noch bis zum 01.03.2032. Ab diesem Zeitpunkt verringern sich die monatlichen Hauskosten um ca. € 149,41/Monat.



Optional kann eine Garage mit ca. 15,5 m² und elektrischem Tor, direkt gegenüber dem Eingangsbereich, für € 20.000 erworben werden.



Worauf warten Sie noch? Vereinbaren Sie noch heute einen Besichtigungstermin und überzeugen Sie sich selbst von dieser traumhaften Wohnung in Spittal an der Drau. Wir freuen uns auf Sie!



Machen Sie sich selbst ein Bild von dieser einmaligen Immobilie und überzeugen Sie sich von ihrem Charme. Schnappen Sie sich noch heute dieses einmalige Angebot und genießen Sie Ihren neuen Lebensstil.



Sollten Sie eine Finanzierung benötigen, vereinbaren wir gerne für Sie einen unverbindlichen Beratungstermin bei unseren Spezialisten der Volksbank Kärnten eG.  



Wir bitten Sie aus rechtlichen Gründen, Anfragen zur Liegenschaft ausschließlich per E-Mail an nicole.fritz@vbktn.at zu stellen.



Info unter:
VB Realitäten, Nicole Fritz,



Handy: 0660 14 14 200

T: +43 (0)5 09 09-8011

F: +43 (0)5 09 09-9011

M: nicole.fritz@vbktn.at


Besuchen Sie uns auf unserer Homepage unter www.volksbank-kaernten.at/immobilien

Noch nichts gefunden? Wir informieren Sie über geeignete Immobilienangebote noch vor allen anderen.
Legen Sie jetzt Ihren individuellen Suchagenten unter folgendem Link an. Wir schicken Ihnen passende Immobilien exklusiv zu.

Suchagent anlegen


Der Vermittler ist als Doppelmakler tätig.

Infrastruktur / Entfernungen

Gesundheit
Arzt <500m
Apotheke <500m
Krankenhaus <1.000m

Kinder & Schulen
Schule <500m
Kindergarten <1.000m
Höhere Schule <500m

Nahversorgung
Supermarkt <500m
Bäckerei <500m
Einkaufszentrum <500m

Sonstige
Bank <500m
Post <1.000m
Geldautomat <1.000m
Polizei <500m

Verkehr
Bus <500m
Autobahnanschluss <2.000m
Bahnhof <1.000m
Flughafen <1.500m

Angaben Entfernung Luftlinie / Quelle: OpenStreetMap

Eckdaten Objektnr. 2047

Art: Wohnung
Land: Österreich
Baujahr: 1972
Zustand: Gepflegt
Alter: Neubau
Kaufpreis: 280.000,00
Provision: 3% des Kaufpreises zzgl. 20% USt.
Betriebskosten: 180,33 €
Heizkosten: 99,03 €
MwSt Gesamt: 32,97 €
Wohnfläche: 88,51 m²
Nutzfläche: 94,86 m²
Zimmer: 3
Bäder: 1
WC: 1
Keller: 3,89 m²
Heizwärmebedarf:  B  25,24 kWh/m²a
fGEE:  C  1,12
Immobilie merken Exposé

Ausstattung

Parkett, Fliesen, Teppichboden, Zentralheizung, Einbauküche, Personenaufzug, Bad mit Fenster, Badewanne, Kabel/Satelliten-TV, Wasch/Trockenraum


Immobilie anfragen


Ihre persönliche Beratung

VB Realitäten Gesellschaft m.b.H.

Nicole Fritz

VB Realitäten Gesellschaft m.b.H.

T 05 09 09 8011

H +43 660 14 14 200