Innerstädtisches Entwicklungsobjekt mit Wohn- und Gastronomiepotenzial in Mattersburg

Haus - Stadthaus, 7210 Mattersburg


Zentrale Innenstadtlage in Mattersburg mit hoher Fußgängerfrequenz. Die urbane Umgebung ermöglicht ein zukunftsorientiertes, autofreies Wohnkonzept – ein im Burgenland seltenes Marktsegment. Ergänzend stehen in unmittelbarer Nähe mietbare Stellplätze zur Verfügung.

Beschreibung der Immobilie

Innerstädtisches Entwicklungsobjekt mit Wohn- und Gastronomiepotenzial in Mattersburg

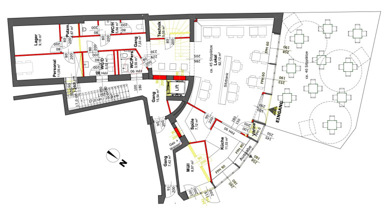
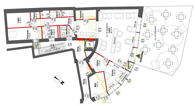
Gegenstand dieser Machbarkeitsstudie ist die Umstrukturierung eines Bestandsgebäudes zu einem hochwertigen Mixed-Use-Objekt mit klarer funktionaler Trennung von Wohnen und Gewerbe.



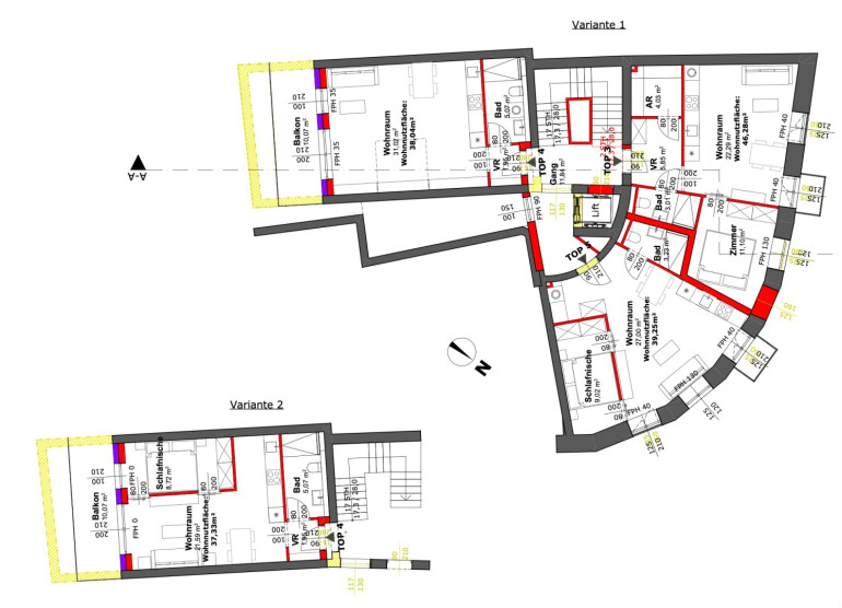
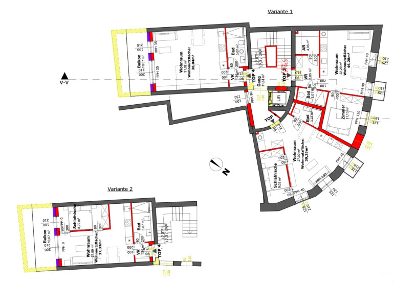
Geplant ist die Entwicklung von fünf kompakten Wohneinheiten in den Obergeschossen sowie einer weiterhin gewerblich genutzten Gastronomiefläche im Erdgeschoss. Die Wohnbereiche erhalten einen eigenständigen Zugang mit Lift und Treppe, wodurch eine vollständige Entkopplung der Nutzungen erreicht wird.



Im 1. Obergeschoss sind zwei Wohnungen, Kellersatzräume sowie eine gemeinschaftlich nutzbare Freifläche vorgesehen. Das 2. Obergeschoss bietet zwei weitere Einheiten sowie die Option eines zusätzlichen Wohnlofts mit flexibler Schlaflösung.



Die Gastronomiefläche ist variabel konzipiert und erlaubt sowohl ein Cafe-/Bar-Konzept mit Schauküche als auch eine klassische Lösung mit geschlossener Küche. In beiden Varianten sind ca. 40 Sitzplätze im Innenbereich sowie ein ebenso großer Gastgarten, der bereits von der Gemeinde genehmigt wurde, realisierbar. Take-away-Strukturen und Selbstbedienungssysteme ermöglichen einen wirtschaftlich effizienten Betrieb.

Infrastruktur / Entfernungen

Gesundheit
Arzt <2.000m
Apotheke <1.500m
Klinik <8.500m

Kinder & Schulen
Schule <1.000m
Kindergarten <500m
Universität <10.000m

Nahversorgung
Supermarkt <1.000m
Bäckerei <1.500m
Einkaufszentrum <9.500m

Sonstige
Bank <1.500m
Post <1.500m
Geldautomat <1.500m
Polizei <2.000m

Verkehr
Bus <500m
Autobahnanschluss <2.000m
Bahnhof <1.000m

Angaben Entfernung Luftlinie / Quelle: OpenStreetMap

Eckdaten Objektnr. 5063/1991

Art: Haus - Stadthaus
Land: Österreich
Zustand: Projektiert
Alter: Altbau
Kaufpreis: 459.000,00
Provision: 3% des Kaufpreises zzgl. 20% USt.
Wohnfläche: 240,00 m²
Nutzfläche: 480,00 m²
Grundstücksfl.: 225,00 m²
Keller: 16,42 m²
Immobilie merken Exposé

Ausstattung

Estrichboden, Personenaufzug


Immobilie anfragen


Ihre persönliche Beratung

IMERO GmbH

Wolfgang Mayer

IMERO GmbH

T +43 664 3071433