ERSTBEZUG: kernsaniertes Landhaus nur wenige Minuten südlich von Klagenfurt, ideal für FREIGEISTER!
Haus
- Landhaus,
9162
Kirschentheuer
Ruhige Wohnlage südlich der Drau, nur 10 Minuten von Klagenfurt entfernt. Ein wunderschöner Badesee, der Ratz-Teich, und der Drau-Radweg liegen fußläufig in unmittelbarer Nähe. Zwei weitere, sehr schöne Seen (Reßnig See und Badesee St. Johann) sind mit dem Fahrrad gemütlich erreichbar. Einen Überblick über die Kultur- und Genusshöhepunkte rund um den Wörthersee finden Sie unter www.woerthersee.com und unter www.visitklagenfurt.at/de/






































Beschreibung der Immobilie
ERSTBEZUG: kernsaniertes Landhaus nur wenige Minuten südlich von Klagenfurt, ideal für FREIGEISTER!
Es erwartet Sie hier eine äußerst gelungene Synergie!
Genießen Sie den modernen Wohnkomfort in einem wunderschönen Landhaus zu einem Top-Preis von nur € 2697,- / m²!
Der Architekt hat höchstes Augenmerk darauf gelegt, das Flair und den Stil des ursprünglichen Gebäudes zu erhalten. Sowohl bei der Auswahl der Materialien als auch bei der Neugestaltung der Räume waren Authentizität und Kreativität das Credo.
Dieses ca. 150 Jahre alte Landhaus wurde in den Jahren 2022/2023 mit Bedacht auf Komfort und Ästhetik von Grund auf renoviert und erstrahlt heute in neuem Glanz.
Besonders hervorzuheben sind das Kreuzgewölbe im Erdgeschoss, die auch thermisch interessante Mauerstärke von ca. 60 cm, vollständig erneuerte Elektro- und Wasserleitungen, neue Pelletsheizung, Wärmedämmung, neues Dach, Kaminanschluss, wunderschöne Holzdielen und die modernen Bäder.
Hier können Sie sofort einziehen und genießen!
165 m² Wohnfläche erstrecken sich über zwei Ebenen und teilen sich wie folgt auf:
Erdgeschoss:
- Vorraum mit Eingangsbereich
- Küche
- Esszimmer
- Büro
- Schlafzimmer
- Badezimmer mit Dusche und WC
- Speisekammer
- Gäste-WC
- Abstellraum
Obergeschoss:
- zwei Schlafzimmer jeweils mit Schrankraum
- zwei Bäder mit Badewanne bzw. Dusche, eines mit WC
- Wohnzimmer mit Zugang auf die südseitige Außenterrasse
- Vorraum
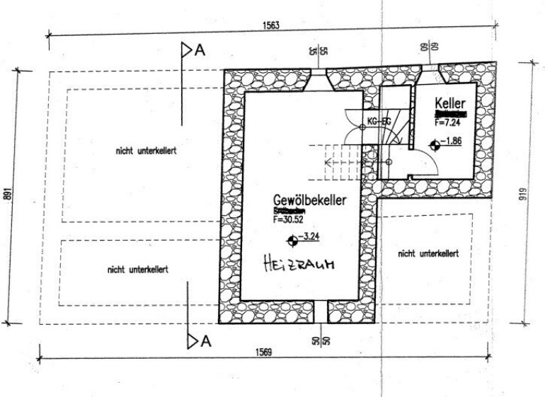
Auch die Kellerräume wurden von Grund auf erneuert - hier wurde eine moderne Pelletsheizungsanlage samt Pelletslagerraum errichtet. Es gibt auch genügend Stauraum.
Das Haus ist freistehend und der Garten wurde kürzlich mit Hecke, Rasen, Pflasterung etc. neu gestaltet.
Betriebskosten:
Wasser / Kanal / Müll: ca. € 80 mtl.
Strom: je nach Verbrauch
Pelletsheizung mit automatischem Einzug, je nach Verbrauch, ca. 2 t / Jahr
Ergänzender Hinweis:
Der Energieausweis wurde vor der Generalsanierung erstellt.
Kaufpreis: € 445.000,-
Preis pro m²: € 2.697,-
zzgl. Kaufnebenkosten:
Grunderwerbsteuer: 3,5%
Eintragungsgebühr: 1,1% - entfällt derzeit, staatliche Sonderregelung (lt. öffentlicher Kundmachung)
Kaufvertragserrichtung: ca. 1,5 % netto von der Kaufsumme inkl. Treuhänderabwicklung
Maklerprovision: 3 % der Kaufsumme zzgl. 20 % USt.
Hausübernahme:
ab sofort möglich
Finanzierung:
Auf Wunsch wird auch die Finanzierung von unserem Fachberater gerne für Sie erstellt.
Verkaufsabwicklung:
Treuhändische Abwicklung / Kaufvertragserstellung beim Notar
Für weitere Informationen stehen wir Ihnen natürlich gerne zur Verfügung. Besichtigungstermine jederzeit nach Vereinbarung.
Wir bitten um Ihr Verständnis, dass Besichtigungen nur mit Angabe Ihrer vollständigen Kontaktdaten möglich sind, da wir dem Abgeber gegenüber nachweisverpflichtet sind.
Alle Angaben lt. Abgeber - Irrtümer vorbehalten.
Anfragen unter:
Andrea Vranko, Ja-Wohnen
Email: buero2@ja.or.at
Tel. 0699 8199 2204
Web: www.ja-wohnen.at
Allgemeiner Hinweis:
Die angegebenen Daten stammen vom Eigentümer und/oder Dritten und wurden mit Sorgfalt erhoben. Für die Richtigkeit und Vollständigkeit kann jedoch keine Haftung übernommen werden. Zahlenangaben können gegebenenfalls gerundet oder geschätzt sein. Das Anbot ist freibleibend und unverbindlich. Irrtümer und Änderungen sind vorbehalten. Nachdruck/Vervielfältigung nur mit Genehmigung der Firma Ja-Wohnen.
Der Vermittler ist als Doppelmakler tätig.
Eckdaten Objektnr. 285
Art: | Haus - Landhaus |
Land: | Österreich |
Zustand: | Erstbezug |
Kaufpreis: | 445.000,00 € |
Provision: | 3% des Kaufpreises zzgl. 20% USt. |
Wohnfläche: | 165,00 m² |
Grundstücksfl.: | 361,00 m² |
Zimmer: | 6 |
Bäder: | 3 |
WC: | 3 |
Terrassen: | 1 |
Stellplätze: | 2 |
Heizwärmebedarf: | D 146,00 kWh/m²a |
fGEE: | D 2,22 |
Ausstattung
Dielenboden, Südbalkon
Ihre persönliche Beratung

Andrea Vranko
Ja-Wohnen
T +43 699 81992204