Neubau Erstbezug Ruhige Drei Zimmer Wohnung mit großer Terrasse

Wohnung - Terrassenwohnung, 3500 Krems an der Donau , Bründlgraben 45


Beschreibung der Immobilie

Neubau Erstbezug Ruhige Drei Zimmer Wohnung mit großer Terrasse

Modernes Wohnen in einer der schönsten Regionen des Landes





Das Projekt DANUBE HILLS mitten in den Weinbergen von Krems an der Donau bietet besonderen Flair und modernsten Komfort. 



Die Wohnhausanlage umfasst in Summe 110 Wohnungen mit 137 PKW-Stellplätzen und 6 Motorrad-Abstellplätzen. 



Jede Einheit verfügt über eine Außenfläche (Garten, Terrasse, Dachterrasse, Balkon oder Loggia) sowie ein Kellerabteil. 



Die Wohnungen sind umgeben von Grünflächen und Weingärten. 

 



DANUBE HILLS bietet weiters:






  • Parkettböden aus Natureiche



  • Nassräume mit Feinsteinzeug, hochwertige Sanitärkeramik



  • alle Wohnungen sind mit Küchen ausgestattet, weitere Möblierungen/Ausstattung auf Anfrage



  • Außenliegender Sonnenschutz



  • Fußbodenheizung



  • Wärme und Warmwasser mittels Biomasse-Fernwärme CO2-neutral



  • Klimatisierung im DG möglich



  • Glasfaseranbindung



  • Fernblick je nach Ausrichtung innerhalb der Anlage



  • Photovoltaikanlage – Versorgung der Allgemeinfläche



  • Allgemeine Flächen samt Spielplätzen



  • Nachhaltige Baustoffe und teilweise Dachbegrünung



  • ESG-Zertifiziert, errichtet mit nachhaltigen Baustoffen nach den Kriterien Klima-aktiv Silber und EU-Taxonomie-konform



  • bezugsfertig 






Trotz der erholsamen und ruhigen Lage verfügt es mit der nahegelegenen Auffahrt Krems auf die S5 – Stockerauer Schnellstraße über eine optimale Anbindung an St. Pölten und Wien. 



Der in wenigen Minuten erreichbare Bahnhof bietet zahlreiche Anbindungen in die Großstädte Wien und St. Pölten. Man verspürt das Lebensgefühl einer historischen Stadt mit Charakter, ohne auf die Annehmlichkeiten der nahen gelegenen Großstädte verzichten zu müssen. 



In direkter Nähe befinden sich sämtliche Nahversorger, wie das beliebte Einkaufzentrum Alex, mehrere Kindergärten, Schulen und Universitäten, sowie das Universitätsklinikum Krems und andere Gesundheitseinrichtungen. 






Der Immobilienmakler erklärt, dass er – entgegen dem in der Immobilienwirtschaft üblichen Geschäftsgebrauch des Doppelmaklers – einseitig nur für den Vermieter tätig ist.

Infrastruktur / Entfernungen

Gesundheit
Arzt <1.250m
Apotheke <1.525m
Klinik <2.025m
Krankenhaus <1.125m

Kinder & Schulen
Schule <625m
Kindergarten <1.200m
Universität <1.575m
Höhere Schule <1.425m

Nahversorgung
Supermarkt <625m
Bäckerei <750m
Einkaufszentrum <600m

Sonstige
Geldautomat <1.025m
Bank <725m
Post <1.525m
Polizei <1.375m

Verkehr
Bus <200m
Autobahnanschluss <800m
Bahnhof <1.700m
Flughafen <3.000m

Angaben Entfernung Luftlinie / Quelle: OpenStreetMap

Eckdaten Objektnr. 5908/1155

Art: Wohnung - Terrassenwohnung
Land: Österreich
Baujahr: 2025
Zustand: Erstbezug
Alter: Neubau
Gesamtmiete: 1.199,01
Kaltmiete (netto): 902,95 €
Kaltmiete: 1.090,00 €
Provision: Gemäß Erstauftraggeberprinzip bezahlt der Abgeber die Provision.
Betriebskosten: 187,05 €
MwSt Gesamt: 109,01 €
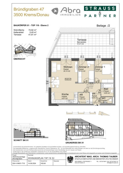
Nutzfläche: 74,82 m²
Zimmer: 3
Bäder: 1
WC: 1
Keller: 5,40 m²
Heizwärmebedarf:  B  23,50 kWh/m²a
fGEE:  A+  0,63
Immobilie merken Exposé

Ausstattung

Estrichboden, Fliesen, Parkettboden, Fernwärme, Fußbodenheizung, Einbauküche, Personenaufzug, Badewanne


Immobilie anfragen


Ihre persönliche Beratung

ABRA IC GmbH

Andreas Stadler

ABRA IC GmbH

T +43664 3551068