Stilvolle Altbauwohnung mit Balkon | Kernsanierung

Wohnung , 1020 Wien


U2 Taborstraße U1 Nestroyplatz Augarten

Beschreibung der Immobilie

Stilvolle Altbauwohnung mit Balkon | Kernsanierung

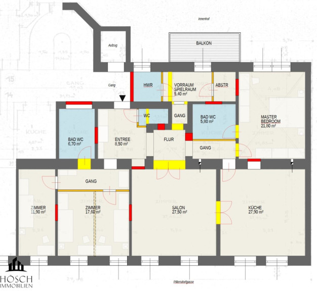
Diese außergewöhnlich großzügige Altbauwohnung mit rund 147 m² Wohnnutzfläche entsteht aus der Zusammenlegung der Tops 12–13 und wird nach dem Kauf komplett kernsaniert. Die Käufer profitieren damit von einer Wohnung, die den Charme eines klassischen Wiener Altbaus mit der hochwertigen Qualität einer umfassenden Neusanierung verbindet.



Der Grundriss bietet zahlreiche Möglichkeiten – ob als elegante Familienwohnung, großzügiges Stadtrefugium oder repräsentativer Wohnsitz. Ein neu geschaffener Balkon mit ca. 8 m² erweitert den Wohnraum um einen wertvollen Freiluftbereich.



Die Sanierung erfolgt auf hohem Niveau und orientiert sich an bereits realisierten Referenzwohnungen des Verkäufers. Drei Visualisierungsbilder, die aus diesen Projekten stammen, vermitteln den zukünftigen Qualitätsstandard sehr realitätsnah.



Hard Facts:




  • Top 12–13



  • Wohnnutzfläche: ca. 147 m²



  • Balkon: ca. 8 m² (neu)



  • Kellerabteil inkludiert



  • Vollständige Kernsanierung inklusive Elektrik, Leitungen, Heizung und Innenausbau

     




Highlights der Sanierung:




  • Komplettsanierung nach modernen Standards



  • Hochwertige Parkettböden



  • Designbäder mit edlen Sanitärelementen



  • Neue Haustechnik, Leitungen und Elektrik



  • Hohe Räume, Altbauflair und elegante Ästhetik



  • Neu errichteter Balkon mit ca. 8 m²



  • Großzügige Wohn- und Schlafbereiche



  • Flexible Raumgestaltung je nach Bedarf der Käufer

     




Die Lage – Hervorragend und begehrt



Die Wohnung befindet sich in einer der gefragtesten Wohnlagen des 2. Bezirks, eingebettet in ein charmantes, urbanes Umfeld mit ausgezeichneter Infrastruktur.



Zahlreiche Einkaufsmöglichkeiten, Nahversorger, Restaurants, Cafés und Boutiquen befinden sich in unmittelbarer Umgebung.



Der traumhafte Augarten – einer der ältesten barocken Gartenanlagen Wiens – ist in wenigen Gehminuten erreichbar. Ebenso nahe liegt der weitläufige Wiener Prater, einer der schönsten Stadtparks der Welt. Mit seinen Wiesen, Wäldern und Gewässern bietet er ideale Bedingungen für Jogging, Spaziergänge, Radtouren oder Entspannung im Grünen.



Auch die Donau mit ihren vielfältigen Freizeitmöglichkeiten befindet sich in komfortabler Reichweite.



Die Anbindung an das öffentliche Verkehrsnetz ist ausgezeichnet:




  • U2 Taborstraße



  • U1 Nestroyplatz



  • Straßenbahnlinien 1, 2, 71




Die Innenstadt ist in etwa 15 Minuten bequem erreichbar.





Kaufpreis: EUR 1.199.000,--
Erfolgshonorar: 3% vom Kaufpreis zzgl. 20% USt.



Als Vertragserrichterin und Treuhänderin wird Frau Mag. Alexandra Serek, Fichtegasse 2A, 1010 Wien, bestellt. Das Honorar der Treuhänderin für die Errichtung des Kaufvertrages und die treuhändige Abwicklung und Einverleibung des Eigentumsrechtes beträgt 1,5 % des Gesamtkaufpreises zzgl. 20 % USt.



Für Rückfragen bzw. bei Interesse an einem Besichtigungstermin steht Ihnen Frau Cheyenne Dalsasso gerne unter der Rufnummer +43 676 467 77 39 zur Verfügung.


Wir weisen darauf hin, dass zwischen dem Vermittler und dem zu vermittelnden Dritten ein familiäres oder wirtschaftliches Naheverhältnis besteht.


Der Vermittler ist als Doppelmakler tätig.

Infrastruktur / Entfernungen

Gesundheit
Arzt <500m
Apotheke <500m
Klinik <500m
Krankenhaus <500m

Kinder & Schulen
Schule <500m
Kindergarten <500m
Universität <1.000m
Höhere Schule <1.000m

Nahversorgung
Supermarkt <500m
Bäckerei <500m
Einkaufszentrum <1.500m

Sonstige
Geldautomat <500m
Bank <500m
Post <500m
Polizei <500m

Verkehr
Bus <500m
U-Bahn <500m
Straßenbahn <500m
Bahnhof <500m
Autobahnanschluss <2.500m

Angaben Entfernung Luftlinie / Quelle: OpenStreetMap

Eckdaten Objektnr. 7398/111713

Art: Wohnung
Land: Österreich
Alter: Altbau
Kaufpreis: 1.199.000,00
Kaufpreis / m²: 7.940,40 €
Provision: 3% des Kaufpreises zzgl. 20% USt.
Betriebskosten: 303,68 €
MwSt Gesamt: 33,84 €
Wohnfläche: 147,00 m²
Nutzfläche: 151,00 m²
Zimmer: 5
Bäder: 1
WC: 2
Balkone: 1
Heizwärmebedarf:  C  90,60 kWh/m²a
fGEE:  D  1,87
Immobilie merken Exposé

Ausstattung

Personenaufzug


Immobilie anfragen


Ihre persönliche Beratung

Hösch Immobilien GmbH

David-Gabriel Hösch

Hösch Immobilien GmbH

T +43 676 4677739