"Modernes PASSIV-HAUS mit Pool- und Gartenparadies im 3-Seen-Gebiet"
Haus
- Einfamilienhaus,
5163
Mattsee
Perwang am Grabensee ist eine Gemeinde in Oberösterreich im Bezirk Braunau am Inn im Innviertel mit 1129 Einwohnern (Stand 1. Jänner 2024). Der zuständige Gerichtsbezirk ist der Gerichtsbezirk Mattighofen. Perwang am Grabensee liegt auf 531 m Höhe im Innviertel. Die Ausdehnung beträgt von Nord nach Süd 4,8 km, von West nach Ost 4,8 km. Die Gesamtfläche beträgt 6,9 km². 20,3 % der Fläche sind bewaldet, 69,6 % der Fläche sind landwirtschaftlich genutzt. Der Hinweis im Ortsnamen „am Grabensee“ ist teilweise irreführend. Der See liegt nämlich größtenteils im Bundesland Salzburg, genauer hauptsächlich in der Nachbargemeinde Berndorf bei Salzburg. Das einzige öffentliche Strandbad am Grabensee liegt jedoch in der Gemeinde Perwang am nördlichen Ufer und wird von der Gemeinde Perwang betrieben.










Beschreibung der Immobilie
"Modernes PASSIV-HAUS mit Pool- und Gartenparadies im 3-Seen-Gebiet"
Diese atemberaubende Immobilie bietet alles, was man sich von einem Einfamilienhaus wünschen können. Auf einer Fläche von 200 m² bietet dieses Haus 6 geräumige Zimmer, die einer Familie ausreichend Platz und Privatsphäre bieten. Das Haus ist neuwertig und wurde mit viel Liebe zum Detail gestaltet. Der perfekte Ort, um Ihr neues Kapitel zu beginnen.
Der großzügige Garten lädt zum Entspannen und Genießen ein. Hier kann man die Sonne auf einer der 3 Terrassen genießen oder den Feierabend mit einem Glas Wein beim Lagerfeuer ausklingen lassen. Die Garage und 3 Stellplätze bieten ausreichend Platz für Ihre Fahrzeuge. Ein wahrer Traum für Naturliebhaber und Ruhe suchende.
Das Haus ist mit hochwertigen Fliesen und Parkett ausgestattet und verfügt über eine Luftwärmepumpe. Ebenso ist das Haus mit einer Photovoltaik- und einer Solaranlage ausgestattet.
Die Wohnküche bzw. offene Küche ist der perfekte Ort, um mit der Familie und Freunden zu kochen und zu essen. Die beiden Bäder sind modern gestaltet und verfügen über Badewanne und Dusche.
Die Verkehrsanbindung ist hervorragend. Eine Bushaltestelle befindet sich in unmittelbarer Nähe und bringt Sie schnell und bequem in alle Richtungen. Auch Schule und Kindergarten sind nur wenige Gehminuten entfernt, was diese Immobilie besonders für Familien attraktiv macht.
Wir weisen darauf hin, dass zwischen dem Vermittler und dem zu vermittelnden Dritten ein familiäres oder wirtschaftliches Naheverhältnis besteht.
Der Vermittler ist als Doppelmakler tätig.
Infrastruktur / Entfernungen
Gesundheit
Arzt <2.000m
Apotheke <4.500m
Klinik <4.000m
Kinder & Schulen
Schule <500m
Kindergarten <500m
Nahversorgung
Supermarkt <3.000m
Bäckerei <2.500m
Sonstige
Bank <500m
Geldautomat <500m
Post <2.500m
Polizei <8.000m
Verkehr
Bus <500m
Bahnhof <9.500m
Angaben Entfernung Luftlinie / Quelle: OpenStreetMap
Eckdaten Objektnr. 781
Art: | Haus - Einfamilienhaus |
Land: | Österreich |
Baujahr: | 2013 |
Zustand: | Neuwertig |
Alter: | Neubau |
Kaufpreis: | 1.190.000,00 € |
Provision: | 3% des Kaufpreises zzgl. 20% USt. |
Betriebskosten: | 300,00 € |
MwSt Gesamt: | 30,00 € |
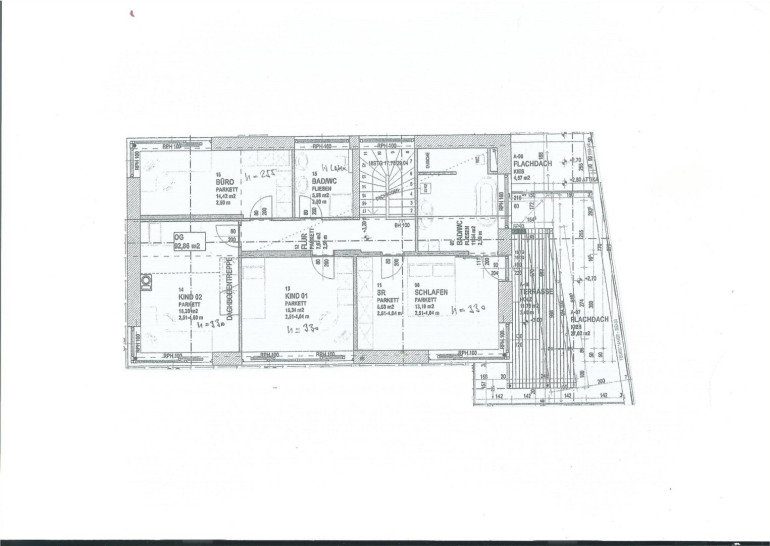
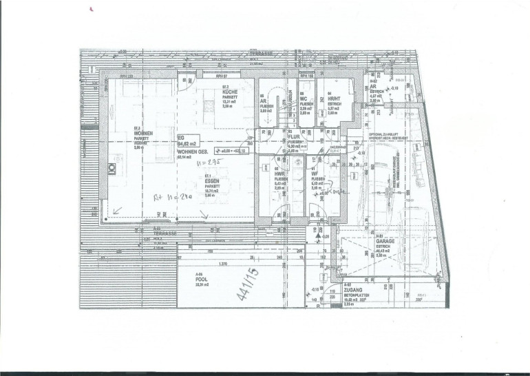
Wohnfläche: | 200,00 m² |
Nutzfläche: | 200,00 m² |
Grundstücksfl.: | 700,00 m² |
Gesamtfläche: | 200,00 m² |
Zimmer: | 6 |
Bäder: | 2 |
WC: | 3 |
Terrassen: | 3 |
Stellplätze: | 3 |
Heizwärmebedarf: | A 22,00 kWh/m²a |
fGEE: | A+ 0,61 |
Ausstattung
Parkett, Fliesen, Kamin, Zentralheizung, Wohnküche / offene Küche, Bad mit Fenster, Badewanne, Dusche, Kabel/Satelliten-TV, Garage, Parkplatz, Swimmingpool, Wasch/Trockenraum, Alarmanlage
Ihre persönliche Beratung

Siegfried Seidl
MIA Real Estate
T +43 6644120946