Durchdachte Grundrissplanung mit viel Freiraum für Umweltbewusste
Wohnung
,
4020
Linz
,
Mörikeweg
Die Wohnungen am Mörikeweg bieten ruhiges Wohnen im Grünen mit Nahversorgern, Schulen, Ärzten und Öffis in Gehdistanz. Innenstadt, PlusCity und Autobahn sind schnell erreichbar – ideal angebunden, rundum versorgt.
Beschreibung der Immobilie
Durchdachte Grundrissplanung mit viel Freiraum für Umweltbewusste
Smart wohnen mit grünem Gewissen
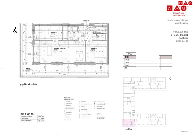
Am Mörikeweg trifft nachhaltige Technik auf modernes Design: Wohnungen zwischen 53,73 m² und 96,75 m² mit Balkon, Garten oder Dachterrasse, smarte Energie durch PV, Wärmepumpe und Deckenkühlung – komfortabel, klimafreundlich und zukunftssicher.
Mit Tiefgarage und E-Lade-Vorbereitung startklar für morgen.
Alle Daten zu dieser Wohnung auf einen Blick:
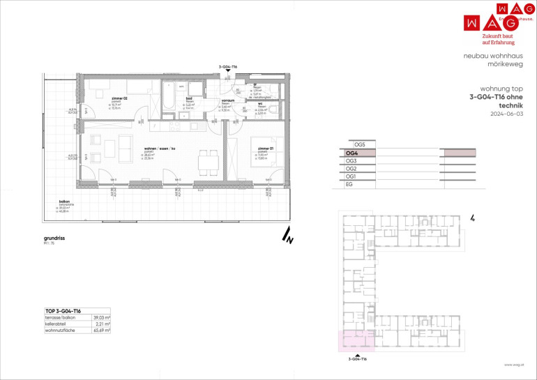
- Wohnfläche ca. 65,69 m² und 39,03 m² Balkon
- 2 geräumige Schlafzimmer mit Zugang zum Balkon
- heller Wohn - Ess - Küchenbereich mit Zugang zum Balkon
- Badezimmer mit Wanne und Dusche sowie einem Waschbecken
- WC mit Handwaschbecken
- Abstellraum
- Kellerabteil
- Fixpreisgarantie
- Barrierefreiheit
- elektrische Raffstores mit Fernbedienung
Kaufpreis Wohnung: € 472.330,00 (beachten Sie unser beigefügtes Finanzierungsangebot)
Kaufpreis Tiefgaragenplatz: € 27.500,00
Monatliche Kosten für die Wohnung inkl. Instandhaltungsbeitrag, Betriebskosten, Aufzug, Verwaltungskosten, Kabel-TV und Ust. ca. € 255,30
Monatliche Heizkostenpauschale inkl. Ust.: ca. € 47,29
Monatliche Kosten für den Tiefgaragenstellplatz inkl. Instandhaltungsbeitrag, Betriebskosten, Verwaltungskosten und Ust. ca. € 30,31
Bei diesen Positionen handelt es sich größtenteils um Akonto Zahlungen und diese werden daher jährlich nach tatsächlichen Aufwand/Verbrauch mittels Jahresabrechnung abgerechnet.
Für weitere Informationen stehen Ihnen Frau Eder und Frau Sonntagbauer unter 050 338-6018 oder team.verkauf3@wag.at gerne zur Verfügung!
Sie sind an weiteren Wohnungs- bzw. Gewerbeangeboten interessiert? Ein vielfältiges Angebot finden Sie auf unserer Website.
Zur WAG-Immobiliensuche: SUCHE
Zur WAG-Wohnungsanmeldung: Wohnungsanmeldung
Gerne beraten wir Sie persönlich über unser vielfältiges Angebot, rufen Sie uns einfach an! Und das natürlich ohne Vermittlungsgebühren und provisionsfrei!
Angaben sind ohne Gewähr auf Richtigkeit und Vollständigkeit. Druckfehler vorbehalten.
Infrastruktur / Entfernungen
Gesundheit
Arzt <250m
Apotheke <500m
Klinik <2.750m
Krankenhaus <1.500m
Kinder & Schulen
Kindergarten <750m
Schule <750m
Universität <2.250m
Höhere Schule <4.000m
Nahversorgung
Supermarkt <500m
Bäckerei <250m
Einkaufszentrum <1.000m
Sonstige
Bank <250m
Geldautomat <250m
Post <500m
Polizei <2.000m
Verkehr
Bus <250m
Straßenbahn <1.750m
Bahnhof <1.500m
Autobahnanschluss <250m
Flughafen <4.500m
Angaben Entfernung Luftlinie / Quelle: OpenStreetMap
Eckdaten Objektnr. 6650/27994
Art: | Wohnung |
Land: | Österreich |
Baujahr: | 2025 |
Zustand: | Erstbezug |
Alter: | Neubau |
Kaufpreis: | 472.330,00 € |
Betriebskosten: | 138,01 € |
MwSt Gesamt: | 19,62 € |
Wohnfläche: | 65,69 m² |
Zimmer: | 3 |
Bäder: | 1 |
WC: | 1 |
Balkone: | 1 |
Stellplätze: | 1 |
Keller: | 2,21 m² |
Heizwärmebedarf: | 35,00 kWh/m²a |
fGEE: | 0,69 |
Ausstattung
Parkett, Fliesen, Erdwärme, Solarenergie, Fernwärme, Fußbodenheizung, Personenaufzug, Dusche, Badewanne, Kabel/Satelliten-TV, Tiefgarage, Wasch/Trockenraum
Ihre persönliche Beratung

Beratung und Verkauf
WAG Wohnungsanlagen GmbH
T +43 (0)50338-6018 / +43 (0)664/88129961
H +43 664 88129961