*Provisionsfrei* 2-Zimmer Wohnung unweit der Alten Donau und des Donauzentrums!!
Wohnung
,
1220
Wien
,
An der Schanze
Beschreibung der Immobilie
*Provisionsfrei* 2-Zimmer Wohnung unweit der Alten Donau und des Donauzentrums!!
PROVISIONSFREI für den Käufer!
Alle verfügbaren Wohnungen finden Sie auf unserer Homepage unter www.mast-immo.at. Um Ihre Suche zu erleichtern, steht Ihnen auf unserer Projektseite www.anderschanze25.at ein Wohnungsnavigator zur Verfügung, der Ihnen hilft, sich einen Überblick über die Lage der einzelnen Wohnungen innerhalb des Komplexes zu verschaffen.
"An der Schanze 25" - Ihr neues Zuhause, Investment und Vorsorge
Das beeindruckende und exklusive Projekt befindet sich im"Quartier Donaufeld" im beliebten 21. Wiener Gemeindebezirk und repräsentiert einen einzigartigen Gebäudekomplex aus vier Bauteilen mit insgesamt 212 exklusiv ausgestatteten Wohnungen.
Zum Verkauf gelangen 58 Wohnungen in Bauteil A, 45 Wohnungen in Bauteil B und 64 Wohnungen in Bauteil D.
EIGENGRUND! - KEINE PACHT!
Die voraussichtliche Fertigstellung ist Ende 2026 geplant.
Highlights der Liegenschaft:
- Naturbezogene Fassadengestaltung die sich perfekt in die Umgebung einfügt
- Direkter Zugang zur Alten Donau über den naturbelassenen Grünzug der am Gebäudeareal angrenzt
- Echtholzböden
- Keramischer Fliesenbelag in den Nassräumen
- 3 - fach verglaste Kunsstofffenster mit Alu Deckschale
- Schließanlage
- Personenlift
- Tiefgarage
- Heizung und Temperierung mittels Bauteilaktivierung
- Jede Wohnung mit Freifläche
Lage: Auto adé
Sollten Sie kein Fahrzeug besitzen, ist das bei dieser Adresse kein Hindernis. Zahlreiche Nahversorger, Dinge des täglichen Bedarfs und selbst das beliebte Donauzentrum mit über 262 Shops, Restaurants und Kino befinden sich unmittelbarer Nähe der Liegenschaft. An heißen Sommertagen lädt die, über einen Grünstreifen verbundene, Alte Donau zum Verweilen ein!
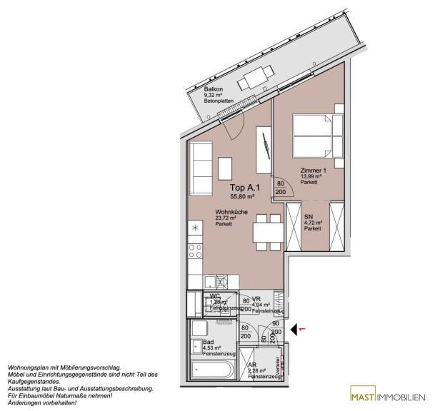
Details Wohnung Bauteil A Top 1:
Die Wohnung befindet sich im 1. Liftstock und verfügt über 55,80 m² Wohnfläche + einen 9,32 m² großen Balkon. Vom Balkon haben Sie einen uneingeschränkten Blick auf den naturbelassenen Grünzug Donaufeld!
Die Wohnung gliedert sich wie folgt:
- Vorraum ca. 4,04 m²
- Badezimmer ca. 4,53 m²
- Abstellraum ca. 2,28 m²
- separate Toilette ca. 1,28 m²
- Wohnküche ca. 24,96 m²
- Schlafzimmer mit Schrankraum ca. 18,71 m²
- Balkon ca. 9,32 m²
Der Kaufpreis beträgt für Anleger € 319.000 Netto zzgl. 20% USt.
Auf unserer Homepage finden Sie eine Übersicht zu allen verfügbaren 2-Zimmer-Wohnungen sowie nähere Details dazu.
Wir weisen darauf hin, dass zwischen dem Vermittler und dem zu vermittelnden Dritten ein familiäres oder wirtschaftliches Naheverhältnis besteht.
Der Vermittler ist als Doppelmakler tätig.
Infrastruktur / Entfernungen
Gesundheit
Arzt <750m
Apotheke <750m
Klinik <2.000m
Krankenhaus <2.500m
Kinder & Schulen
Schule <750m
Kindergarten <750m
Universität <1.250m
Höhere Schule <1.750m
Nahversorgung
Supermarkt <750m
Bäckerei <1.000m
Einkaufszentrum <1.250m
Sonstige
Geldautomat <1.250m
Bank <1.250m
Post <1.250m
Polizei <750m
Verkehr
Bus <750m
U-Bahn <1.250m
Straßenbahn <750m
Bahnhof <1.250m
Autobahnanschluss <1.750m
Angaben Entfernung Luftlinie / Quelle: OpenStreetMap
Eckdaten Objektnr. 5387/6122
Art: | Wohnung |
Land: | Österreich |
Baujahr: | 2024 |
Zustand: | Erstbezug |
Alter: | Neubau |
Kaufpreis: | 349.000,00 € |
Provision: | Provision bezahlt der Abgeber. |
Wohnfläche: | 55,80 m² |
Zimmer: | 2 |
Bäder: | 1 |
WC: | 1 |
Balkone: | 1 |
Keller: | 2,81 m² |
Heizwärmebedarf: | B 26,50 kWh/m²a |
fGEE: | A 0,78 |
Ausstattung
Fliesen, Parkett, Wohnküche / offene Küche, Personenaufzug, Badewanne, Tiefgarage
Ihre persönliche Beratung

Dolores Markovic
MA.ST Immobilien & Design e.U.
T +43 664 527 36 79