Luxuriöses Penthouse in einem der schönsten Gründerzeithäuser des 1. Bezirks
Wohnung
,
1010
Wien
Das Gründerzeitgebäude ist zentral gelegen. Umgeben von historischen Bauten in ruhiger Wohnlage, bietet der Standort sämtliche Vorteile des 1. Bezirks: luxuriöse Einkaufsmöglichkeiten, kulturelles Angebot in Form von Museen und Konzerthäusern. Schulen und gut gepflegte Parkanlagen befinden sich in unmittelbarer Nähe. Die ausgezeichnete Lage bietet weiters eine Vielzahl von fußläufig erreichbaren Restaurants, Bars und Kaffeehäusern. Durch die nahegelegenen U-Bahn-Stationen „Stadtpark“ und „Karlsplatz“ und einigen Bus- und Straßenbahn-Stationen ist eine unkomplizierte Anbindung und Erreichbarkeit gesichert. Grünoasen wie der Stadtpark und der botanische Garten beim Schloss Belvedere sind einfach und schnell zu erreichen und eine ideale Möglichkeit spontan Frischluft und Sonne zu genießen.
Beschreibung der Immobilie
Luxuriöses Penthouse in einem der schönsten Gründerzeithäuser des 1. Bezirks
Ein imposantes Beispiel der Gründerzeitarchitektur, befindet sich im Zentrum Wiens, einer Stadt, die international als eine der lebenswertesten Städte gilt. Das Gebäude wurde 1869 nach den visionären Plänen von Carl Tietz errichtet und zeichnet sich durch seinen zeitlosen Charme aus.
Die sorgfältige Erhaltung und Handwerkskunst, die bei der Revitalisierung und Renovierung angewandt wurden, stellen sicher, dass der wertvolle Originalbestand respektiert und bewahrt wurde.Das Ergebnis ist eine Wohnung von unvergleichlicher Qualität und Eleganz.
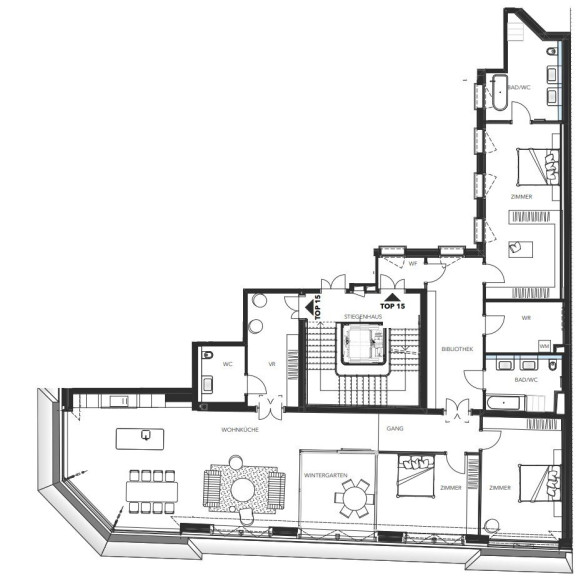
Die Aufteilung der Räumlichkeiten gestaltet sich wie folgt:
Das exklusive Penthouse stellt eine von drei einzigartigen Wohneinheiten in diesem historischen Juwel dar und verfügt über eine großzügige Wohnfläche von 266 m², die sich wie folgt aufteilt:
- Ein großzügiges Vorzimmer von 14,97 m² begrüßt die Bewohner.
- Ein stilvolles Gäste-WC von 6,27 m² vervollständigt den Eingangsbereich.
- Das Wohnzimmer mit integrierter Küche erstreckt sich über 70,73 m² und lädt zu gesellschaftlichen Zusammenkünften ein.
- Ein 14,17 m² großer Wintergarten kann als Kabinett oder als intimer Rückzugsort genutzt werden.
- Zwei geräumige Schlafzimmer von 20,57 m² und 25,38 m² bieten erholsamen Schlaf und Privatsphäre.
- Ein 21,89 m² großer Raum, der sowohl als Bibliothek als auch als Flur genutzt werden kann, rundet das Raumangebot ab.
- Das Badezimmer, das mit einer Badewanne und einem WC ausgestattet ist, verfügt über eine großzügige Fläche von 9,84 m².
- Ein praktischer Waschraum mit einer Fläche von 9,95 m² steht ebenfalls zur Verfügung.
- Das Masterschlafzimmer verfügt über eine Fläche von 33,74 m² und ein privates Badezimmer mit einer Fläche von 14,57 m², das mit einer Badewanne, einem WC und einer Dusche ausgestattet ist.
Highlights:
Großzügige Wohnfläche: Mit einer Fläche von ca. 266 m² bietet das Objekt ausreichend Raum für die Verwirklichung individueller Wohnideen.
Die hohe Decke und die großen Fenster schaffen eine helle und einladende Atmosphäre.Ein Weinkeller ist ebenfalls vorhanden, sodass die Bewohner erlesene Weine genießen können. Eine Tiefgarage bietet die Möglichkeit, das Auto sicher und bequem unterzubringen.
Die Lage ist unschlagbar. Umgeben von Kunst und Philosophie, leben Sie im Herzen des Kärntner-Viertels und sind in nur sechs Gehminuten in der Wiener Oper.
Die Kärntnerstraße, Wiens Hauptgeschäftsstraße, und die umliegenden Straßen bieten erstklassige Einkaufsmöglichkeiten.Die Schellinggasse, Kantgasse, Hegelgasse und Fichtegasse bilden die Philosophenecke des Viertels, in der einst bedeutende Denker die Welt in ihrer Gesamtheit verstanden und beschrieben. Ein Spaziergang durch dieses Viertel, dessen Gebäude in prächtigem Zustand sind, regt zum Nachdenken über die Macht der menschlichen Vernunft und ihre Beziehung zum Absoluten an.
Für Fragen und Terminvereinbarungen bitten wir Sie Herrn Bruno Franz unter +43 664 3553 790 zu kontaktieren
+++ Bitte beachten Sie, dass wir ohne Angabe Ihrer Kontaktdaten, einschließlich Ihrer Telefonnummer, leider keine weiteren Informationen versenden können.
Infrastruktur / Entfernungen
Gesundheit
Arzt <500m
Apotheke <500m
Klinik <1.000m
Krankenhaus <1.000m
Kinder & Schulen
Schule <500m
Kindergarten <1.000m
Universität <500m
Höhere Schule <1.500m
Nahversorgung
Supermarkt <500m
Bäckerei <500m
Einkaufszentrum <500m
Sonstige
Geldautomat <500m
Bank <500m
Post <500m
Polizei <1.000m
Verkehr
Bus <500m
U-Bahn <500m
Straßenbahn <500m
Bahnhof <500m
Autobahnanschluss <3.000m
Angaben Entfernung Luftlinie / Quelle: OpenStreetMap
Eckdaten Objektnr. 4356/47
Art: | Wohnung |
Land: | Österreich |
Zustand: | Erstbezug |
Alter: | Altbau |
Kaufpreis: | 7.100.000,00 € |
Provision: | 3% des Kaufpreises zzgl. 20% USt. |
Wohnfläche: | 266,00 m² |
Nutzfläche: | 266,00 m² |
Zimmer: | 6 |
Bäder: | 2 |
WC: | 3 |
Heizwärmebedarf: | C 74,40 kWh/m²a |
fGEE: | C 1,44 |
Ausstattung
Fliesen, Parkett, Fernwärme, Fußbodenheizung, Einbauküche, Personenaufzug, Badewanne, Dusche, Kabel/Satelliten-TV
Ihre persönliche Beratung

Bruno Franz
RealGoodLiving Real Estate Services GmbH
T +43 664 3553 790
H +43 664 3553 790