Reihenhäuser mit Charme – zwischen Naturidylle und Stadtnähe
                                                            Haus
                                - Reihenhaus,
                            
                            
                                
                                                                            2700
                                    
                                                                            Wiener Neustadt
                                    
                                    ,
                                        Ackergasse                                                                                    
                                    
                                
                                                                    
                                        
                                    
                                
                            
                        
                        Beschreibung der Immobilie
Reihenhäuser mit Charme – zwischen Naturidylle und Stadtnähe
ERSTBEZUG! Neu fertiggestellte Reihenhäuser in moderner Holzbauweise, die nicht nur nachhaltig, sondern auch unglaublich wohnlich sind. Perfekt für alle, die von einem Zuhause mit klarem Konzept, viel Licht und einer grünen Umgebung träumen. Direkt beim Wiener Neustädter Kanal – liebevoll das „Canale Grande von Niederösterreich“ genannt – wohnen Sie dort, wo andere spazieren gehen. Viel Natur, viel Ruhe und trotzdem top angebunden: Der Bahnhof Civitas Nova liegt gleich ums Eck.
Architektur zum Wohlfühlen
Von Anfang an durchdacht: Nachhaltigkeit trifft auf Funktionalität, modernes Design auf gemütliches Wohngefühl. Auf ca. 118 m² Wohnfläche finden Sie den Raum, den Sie für Ihr Familienleben brauchen:
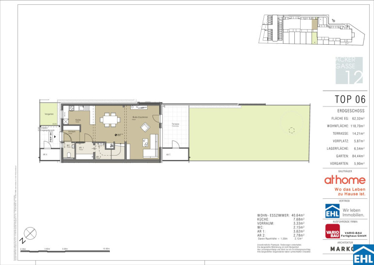
- Erdgeschoss: Ein offener, lichtdurchfluteter Wohn- und Essbereich mit direktem Zugang zur Terrasse und zum eigenen Garten – ideal für laue Sommerabende oder entspannte Sonntage im Grünen.
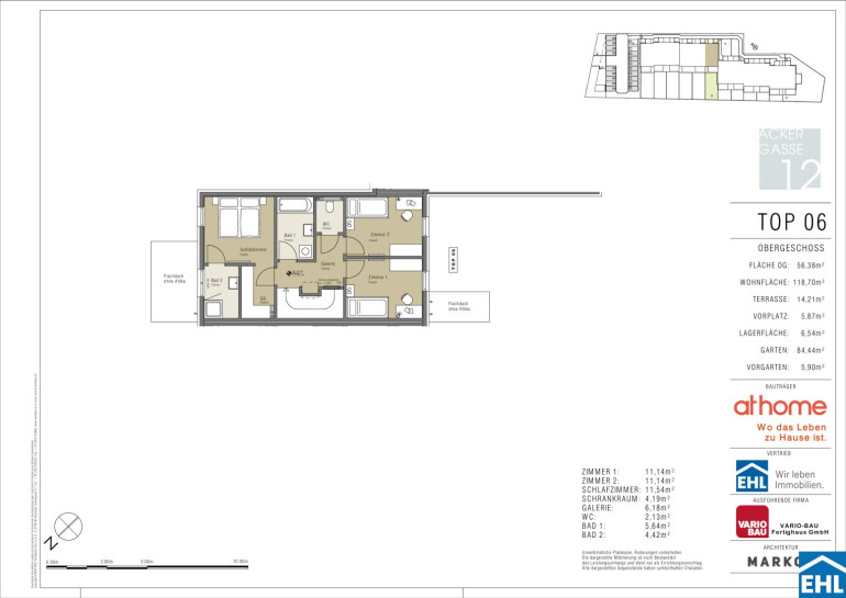
- Obergeschoss: Drei Schlafzimmer und zwei moderne Bäder schaffen Raum für Rückzug und Erholung.
- Wohngärten: Freundliche Eingangsbereiche und private Gärten heißen Sie jeden Tag aufs Neue willkommen.
Dank Südost-Ausrichtung sind die Räume wunderbar hell und schaffen eine Atmosphäre, die einfach gute Laune macht.
Ihr neues Zuhause auf einen Blick
- 12 Reihenhäuser in ökologischer Holzrahmenbauweise
- Ca.118 m² Wohnfläche auf 2 Etagen
- Eigene Vorgärten, großzügige Terrassen & grüne Rückzugsorte
- 3 Schlafzimmer, 2 Bäder & viel Stauraum
- 19 PKW-Stellplätze
- Baujahr 2025, bezugsfertig
Ausstattung, die begeistert
- Hochwertige Parkettböden & moderne Fliesen
- Sanitärausstattung auf aktuellem Top-Niveau
- 3-fach-Isolierverglasung & elektrischer Sonnenschutz
- Glasfaser-Internet (A1 & Magenta)
- Fußbodenheizung über Fernwärme
 - Vorbereitung für Photovoltaik, Klimaanlage & Alarmanlage 
 
Lage mit Lebensqualität
Die Kombination aus Natur und urbanem Komfort macht diese Reihenhäuser so besonders. Direkt am Kanal mit Radwegen, Spaziermöglichkeiten und viel Grün – und trotzdem mitten in einer Stadt mit allen Vorzügen: Schulen, Kindergärten, Einkaufsmöglichkeiten und Freizeitangebote liegen nur wenige Minuten entfernt. Mit der Bahn sind Sie bestens angebunden – egal ob Richtung Wien oder in die Region.
Bezugsfertig. Förderbar. Provisionsfrei.
Ihr Eigenheim wartet – und es bringt alles mit, was modernes, nachhaltiges und leistbares Wohnen ausmacht.
© 2025, PROPERTY PHOTOS
Wir weisen darauf hin, dass zwischen dem Vermittler und dem zu vermittelnden Dritten ein familiäres oder wirtschaftliches Naheverhältnis besteht.
Der Vermittler ist als Doppelmakler tätig.
Infrastruktur / Entfernungen
Gesundheit
Arzt <1.500m
Apotheke <1.000m
Klinik <3.500m
Krankenhaus <2.000m
Kinder & Schulen
Schule <500m
Kindergarten <750m
Höhere Schule <2.500m
Universität <1.250m
Nahversorgung
Supermarkt <500m
Bäckerei <1.000m
Einkaufszentrum <1.000m
Sonstige
Bank <1.000m
Geldautomat <1.000m
Post <750m
Polizei <500m
Verkehr
Bus <500m
Autobahnanschluss <4.250m
Bahnhof <500m
Flughafen <1.500m
Angaben Entfernung Luftlinie / Quelle: OpenStreetMap
Eckdaten Objektnr. 75556
| Art: | Haus - Reihenhaus | 
| Land: | Österreich | 
| Baujahr: | 2025 | 
| Zustand: | Erstbezug | 
| Alter: | Neubau | 
| Kaufpreis: | 495.000,00 € | 
| Provision: | Provision bezahlt der Abgeber. | 
| Wohnfläche: | 118,98 m² | 
| Zimmer: | 4 | 
| Bäder: | 2 | 
| WC: | 2 | 
| Terrassen: | 1 | 
| Garten: | 90,34 m² | 
| Heizwärmebedarf: | B 29,60 kWh/m²a | 
| fGEE: | A+ 0,66 | 
Ausstattung
Parkett, Fliesen, Fußbodenheizung, Badewanne, Dusche, Bad mit Fenster
Ihre persönliche Beratung
Dieser Makler ist ein offizielles Mitglied des IR – ir.at Mehr Erfahren
 
                
                 
                 
                 
                 
                 
                 
                 
                 
                 
                 
                 
                 
                