Schlüsselfertig und belagsfertig! Erstbezug I Neubau I mit S-Bahn ca. 15 min. HBF Wien I Luftwärmepumpe inkl. Kühlfunktion!
Haus
,
2481
Achau
S-Bahn Station nach Wien 350m entfernt Wien U1 Oberlaa: ca. 14 Min. entfernt SCS: ca. 9 Min. entfernt Flughafen Schwechat: ca. 17 Min. entfernt Spar: ca. 3 Min. enfernt Tankstelle: ca. 3 Min. entfernt Supermarkt: Billa Plus, Hofer ca. 5 Min. entfernt Volksschule: 170m entfernt Bahnhof Achau - S60: 700m entfernt
Beschreibung der Immobilie
Schlüsselfertig und belagsfertig! Erstbezug I Neubau I mit S-Bahn ca. 15 min. HBF Wien I Luftwärmepumpe inkl. Kühlfunktion!
REIHENHAUS-NEUBAUPROJEKT - IN ZENTRALER LAGE IN ACHAU - WENIGE MINUTEN BIS ZUR SCS - GUTE VERBINDUNG NACH WIEN - IN KURZER ZEIT AM FLUGHAFEN
Die Reihenhäuser sind südlich ausgerichtet und bezaubern durch die schöne Raumaufteilung und die ruhige Innenhoflage. Alle Wohneinheiten verfügen über Freiflächen wie Balkon, Terrasse und Gärten und einer tollen öffentlicher Anbindung - Sie erreichen den Wiener Hauptbahnhof in ca. 15 Minuten.
Kurzinfo Ausführung und Ausstattung
- 4 bis 6 Zimmer zw. 133,37m² und 179,73m²
- Gärten, Balkon und Terrassen
- Ziegelmassiv-Bauweise
- Vollwärmeschutzfassade
- hochwertige Fenster mit 3-Schichtverglasung und Sonnenschutzelementen
- Luftwärmepumpe mit Kühlfunktion!
- Fußbodenheizung
- gepflasterte Stellplätze
Kurzinfo Lage:
- Bushaltestelle gleich gegenüber
- S- Bahn Station 350m entfernt
- in 9 Autominuten zur SCS
- in 14 Autominuten zur U1 Oberlaa
- in 17 Autominuten direkt zum Flughafen Wien
- Volksschule 160 m entfernt
- Kindergarten in 5 Gehminuten erreichbar
- Supermarkt wie Billa, Hofer und Merkur in 5 Autominuten erreichbar
- Zentrale Ortslage: Gemeindeamt und Allgemeinärzte etc. sind zu Fuß erreichbar
- abwechslungsreiche Gastronomie vom Restaurant bis zum Winzerhof
- Vielfältige Möglichkeiten für Sport und Freizeit: Fußball, Golf, Reiten, etc.
Kaufpreise und Kosten zur Übersicht
Top 1 = 6 Zimmer - NF: 215,83m² -> 524.000,-- EUR
Top 2 = 6 Zimmer - NF: 196,22m² -> 520.000,-- EUR
Top 3 = 4 Zimmer - NF: 178,52m² -> 469.000,-- EUR
Top 4 = 4 Zimmer - NF: 157,99m² -> 515.000,-- EUR
Top 5 = verkauft
Top 6 = verkauft
Top 7 =verkauft
Top 8 = verkauft
Zusätzlich zum Haus sind 2 Stellplätze zum Kaufpreis von je 14.000€ verpflichtend zu erwerben.
Die Häuser Top 1-Top 3 werden belagsfertig übergeben. Können aber nach Wunsch schlüsselfertig fertiggestellt werden! Diese ist je nach Wunsch der Ausstattung mit einem Aufpreis verbunden.
Das Haus Top 4 wird schlüsselfertig übergeben.
Gerne steht Ihnen Frau Elina Strautmane für weitere Fragen bzw. flexibel gestaltbare Besichtigungstermine unter 0664 9952 3313 zur Verfügung.
Wir weisen ausdrücklich auf unser wirtschaftliches Naheverhältnis mit dem Abgeber/der Abgeberin und auf unsere Vermittlungstätigkeit als Doppelmakler hin.
Irrtum und Änderungen vorbehalten!
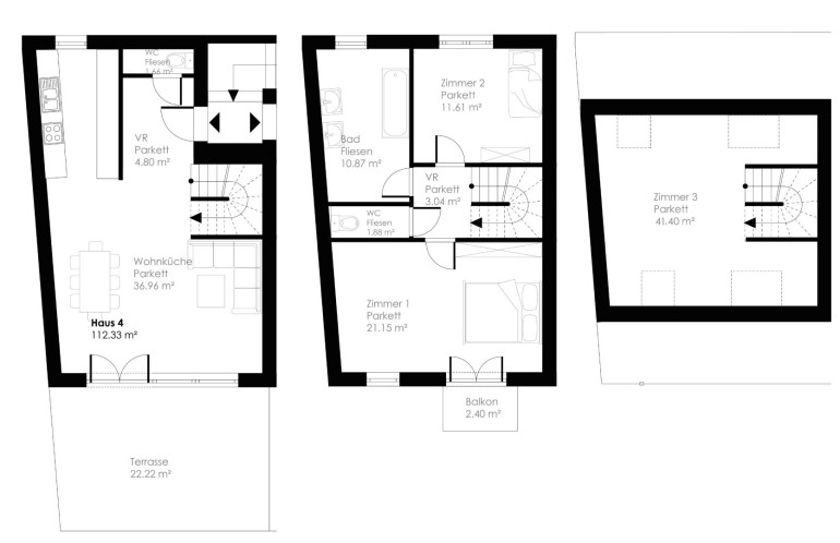
Top 4
Dieses schöne SCHLÜSSELFERTIGE 4 Zimmer Haus mit ca. 133,37m² Wohnfläche und einer Freifläche von ca. 22,22m² lässt Träume Realität werden und gliedert sich in folgende Raumaufteilung:
- Vorraum 4,80m²
- Wohnküche 36,96m²
- 1 Zimmer 21,15m² mit Balkon 2,40m²
- 2 Zimmer 11,61m²
- 3 Zimmer 41,40m²
- Badezimmer 10,87m²
- 2 WC jeweils ca. 1,8m²
- Terrasse ca. 22,22m²
Öffentliche Verkehrsanbindung
- Bus 215,216 Haltestelle Achau Gemeinde: 27 Minuten nach Mödling Bahnhof
- Achau Bahnhof: 20 Minuten nach Wien Hauptbahnhof
- Die SCS ist mit Auto in 9 Minuten erreichbar
- Der Flughafen Schwechat ist mit Auto in 17 Minuten erreichbar
Kaufpreis
Der Kaufpreis beläuft sich auf Euro 515.000,--!
Zusätzlich zum Haus sind 2 Stellplätze zum Kaufpreis von je 14.000€ verpflichtend zu erwerben.
Das Haus 4 wird SCHLÜSSELFERTIG übergeben!
Monatliche Betriebskosten:
190,70€ zzgl. USt. 10,00 %
Rücklage 58,48€
Energieausweis
Der Heizwärmebedarf beträgt 38,53 kWh/m²a, welcher der Klasse B entspricht.
Gerne steht Ihnen Frau Elina Strautmane für weitere Fragen bzw. flexibel gestaltbare Besichtigungstermine unter 0664 99 52 3313 zur Verfügung.
Wir weisen ausdrücklich auf unser wirtschaftliches Naheverhältnis mit dem Abgeber/der Abgeberin und auf unsere Vermittlungstätigkeit als Doppelmakler hin.
Irrtum und Änderungen vorbehalten!
Infrastruktur / Entfernungen
Gesundheit
Arzt <3.000m
Apotheke <2.500m
Klinik <7.000m
Krankenhaus <7.000m
Kinder & Schulen
Kindergarten <3.000m
Schule <500m
Universität <9.000m
Höhere Schule <7.500m
Nahversorgung
Supermarkt <1.000m
Bäckerei <500m
Einkaufszentrum <5.000m
Sonstige
Bank <500m
Geldautomat <500m
Polizei <3.500m
Post <3.000m
Verkehr
Bus <500m
U-Bahn <7.000m
Bahnhof <1.000m
Straßenbahn <7.000m
Autobahnanschluss <4.000m
Angaben Entfernung Luftlinie / Quelle: OpenStreetMap
Eckdaten Objektnr. 14268
Art: | Haus |
Land: | Österreich |
Zustand: | Erstbezug |
Kaufpreis: | 515.000,00 € |
Provision: | 3% des Kaufpreises zzgl. 20% USt. |
Wohnfläche: | 133,37 m² |
Nutzfläche: | 157,99 m² |
Zimmer: | 4 |
Bäder: | 1 |
WC: | 2 |
Balkone: | 1 |
Terrassen: | 1 |
Heizwärmebedarf: | B 38,53 kWh/m²a |
fGEE: | A+ 0,85 |
Ausstattung
Estrichboden, Fußbodenheizung, Wohnküche / offene Küche, Südbalkon, Bad mit Fenster, Parkplatz
Ihre persönliche Beratung

Elina Strautmane
Alexander Ringsmuth GmbH
T +43 1 3709098
H +43 664 99523313