*** Provisionsfreie Anlegerwohnungen für Käufer ***
Wohnung
,
2301
Groß-Enzersdorf
Beschreibung der Immobilie
*** Provisionsfreie Anlegerwohnungen für Käufer ***
Am Rand des 22. Wiener Gemeindebezirks, in Groß-Enzersdorf, entsteht ein attraktives Neubauprojekt mit 37 freifinanzierten Anlegerwohnungen, 2 Geschäftslokalen und 80 Garagenstellplätzen – eine hervorragende Gelegenheit für Investoren, die auf nachhaltige Wertentwicklung und solide Vermietbarkeit setzen.Das Projekt umfasst drei Bauteile und überzeugt durch seine strategische Lage: Die Nähe zur Wiener Stadtgrenze, die ausgezeichnete öffentliche Anbindung sowie das vielfältige Freizeitangebot machen diese Anlageimmobilien besonders interessant für langfristige Vermietung. Jede Wohneinheit verfügt über eine Freifläche – Balkon, Loggia, Terrasse oder Eigengarten – und bietet damit ein attraktives Wohnumfeld für
zukünftige Mieter.
Die zentrale Lage in Groß-Enzersdorf garantiert eine hohe Lebensqualität: Schulen, Kindergärten, Einkaufsmöglichkeiten sowie sportliche und kulturelle Angebote befinden sich in unmittelbarer Nähe. Die schnelle Erreichbarkeit der Wiener Innenstadt und des Naherholungsgebiets Lobau steigert zusätzlich die Attraktivität für Mietinteressenten.
Das Projekt auf einem Blick:
+ 37 Wohnungen, 3 Geschäftslokale und 80 Garagenplätze (KP € 18.500,-)
+ Von ca. 41 m² bis ca. 108 m²
+ Wohneinheiten mit 2 bis 4 Zimmern
+ Jede Wohneinheit mit Garten, Terrasse, Loggia oder Balkon
Baubeginn: 2022
Geplante Fertigstellung: Frühjahr 2026
Zögern Sie nicht, sich noch heute einen persönlichen Besichtigungstermin zu sichern! Die Immobilie erfreut sich großer Nachfrage – nutzen Sie die Gelegenheit, sich selbst ein Bild zu machen und vereinbaren Sie jetzt Ihren Wunschtermin. Wir freuen uns darauf, Sie kennenzulernen!
Eckdaten Objektnr. 141/76796
Art: | Wohnung |
Land: | Österreich |
Baujahr: | 2026 |
Alter: | Neubau |
Kaufpreis: | 258.000,00 € |
Kaufpreis / m²: | 5.303,19 € |
Provision: | provisionsfrei |
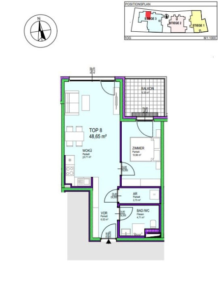
Wohnfläche: | 48,65 m² |
Zimmer: | 2 |
Bäder: | 1 |
WC: | 1 |
Balkone: | 1 |
Heizwärmebedarf: | C 52,60 kWh/m²a |
fGEE: | A 0,82 |
Ihre persönliche Beratung
Dieser Makler ist ein offizielles Mitglied des IR – ir.at Mehr Erfahren
