Bauernhof mit Kärntner Landhaus, Stallungen und Koppeln mit Wörtherseeblick

Sonstige , 9535 Schiefling am Wörthersee


Der exakte Standort (Google Maps): https://goo.gl/maps/GhS8vzXGoCBbn3C66

Beschreibung der Immobilie

Bauernhof mit Kärntner Landhaus, Stallungen und Koppeln mit Wörtherseeblick

Einzigartiges Anwesen mit wunderschönem Wörtherseeblick und revitalisiertem Landhaus. Eine gepflegte Reitanlage, die jedes Herz höher schlagen lässt. Erfüllen sie sich Ihren Traum an einem der schönsten Plätze in Österreich am wunderschönen Wörthersee, hier gibt es jede Menge Platz um Träume wahr werden zu lassen.



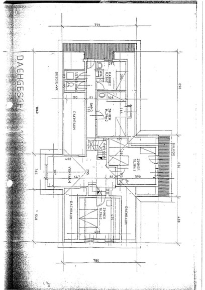
Das wunderschöne Landhaus besteht aus 4 Schlafzimmern, 2 Badezimmern, 3 Toiletten - wobei eine Toilette über eine weitere Dusche verfügt. Herz des Hauses ist der wunderschöne Wohnsalon mit altem Holzofen. Das gemütliche Esszimmer schließt direkt an die Küche an und verfügt über eine praktische Pelletheizung. Die Küche im Landhausstil, ist mit modernen Geräten ausgestattet und bietet viel Platz um für Ihre Lieben zu kochen. Im Haus gibt es 4 Möglichkeiten eine Ofen anzuschließen, wobei aktuell 2 angeschlossen sind. Im Esszimmer gibt es einen Pelletofen und im Wohnzimmer einen antiken Holzofen. Weiters bietet das Haus eine gemütliche Einliegerwohnung, die sowohl durch einen separaten Hauseingang sowie durch das Haus zu betreten ist. Im Innbereich des Hauses ist ein authentischer toskanischer Terrakotta Boden verlegt, dieser verleiht einen ganz besonderen Urlaubsflair. Die Bäder und Toiletten sind modern saniert und es gibt einen großzügigen Abstellraum mit Waschküche.



Ein weiteres Zuckerl ist, dass der Dachboden noch ausbaubar ist um weitere Wohnfläche zu generieren. Da das Haus teilunterkellert ist, rundet ein ca. 48 m2 großer Keller das Angebot ab.



Auf dem Grundstück befindet sich als Highlight eine eigene Quelle, die man mühelos an das Haus anschließen kann. Die Wasserversorgung des Hauses, der Tränken der Pferde und natürlich auch des Reitplatz (um diesen zu Spritzen) ist hiermit komplett autark. Das Reservoir des Brunnens umfasst 7500 L und bietet somit eine perfekte Wasserversorgung. 



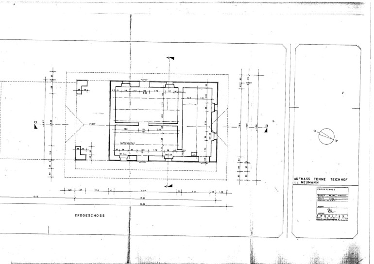
Das Anwesen verfügt über 11 Pferdeboxen, wobei eine Box eine Doppelbox ist und somit 12 Boxen möglich wären. Bis auf 4 Boxen sind alle anderen Paddockboxen, plus einem Ponyhaus. Weiters gibt es eine großzügige Sattelkammer mit Toilette. Es gibt 2 weitere Räume im Stalltrakt, die aktuell als Therapieräume verwendet werden. Die wunderschöne Tenne, die sich gegenüber dem Wohnhaus befindet, bietet einen optimalen Stauraum.



Um großzügige Koppeln zu schaffen, wurden ca 8,5 ha Grundfläche zusätzlich gepachtet. Auf dem Pachtgrund gibt es auch einen geräumigen Offenstall.



Es ist festzuhalten, dass die Therapiegeräte wie der Aquatrainer und die Equisirbox nicht in diesem Preis berücksichtigt wurden, da diese von der Verkäuferin mitgenommen werden, dies gilt natürlich auch für die Pferde.

Infrastruktur / Entfernungen

Gesundheit
Arzt <4.000m
Apotheke <4.000m

Kinder & Schulen
Schule <1.500m
Kindergarten <1.500m

Nahversorgung
Supermarkt <2.000m
Bäckerei <2.000m

Sonstige
Bank <2.000m
Geldautomat <2.000m
Post <2.000m
Polizei <4.500m

Verkehr
Bus <1.000m
Autobahnanschluss <2.000m
Bahnhof <2.500m

Angaben Entfernung Luftlinie / Quelle: OpenStreetMap

Eckdaten Objektnr. 348

Art: Sonstige
Land: Österreich
Zustand: Modernisiert
Alter: Altbau
Kaufpreis: 1.399.900,00
Provision: 3% des Kaufpreises zzgl. 20% USt.
Wohnfläche: 240,00 m²
Grundstücksfl.: 3.907,00 m²
Zimmer: 9
Keller: 48,00 m²
Immobilie merken Exposé

Ausstattung

Öl, Kamin, Einbauküche


Immobilie anfragen


Ihre persönliche Beratung

Mag. Christina Bichlmaier

Bichlmaier Immobilien GmbH

H +43 664 882 60 430