Atemberaubende Villa mit Blick über Wien in Bestlage, bei Neustift

Wohnung - Maisonette, 1190 Wien


Beschreibung der Immobilie

Atemberaubende Villa mit Blick über Wien in Bestlage, bei Neustift

Im Falle der Notwendigkeit einer Fremdfinanzierung Ihrer Wunschimmobilie ermittelt unser Wohnbau-Finanzierungsexperte gerne die optimale Finanzierungslösung und findet das passende Zins- und Konditionsangebot für Sie. Er vergleicht die aktuellen Angebote aller relevanten Banken und Bausparkassen. Der Angebotsvergleich kann aus einem Portfolio von über 120 Banken erfolgen. Das Erstgespräch ist für Sie kostenfrei und unverbindlich, gerne auch bei Ihnen vor Ort. So sparen Sie Ihre wertvolle Zeit und erhalten eine professionelle und unabhängige Finanzierungslösung vom Spezialisten. Sprechen Sie uns wegen eines Termins gerne an!



 



Zum Verkauf gelangt eine atemberaubende Villa mit Blick über Wien und Weingärten im 19. Wiener Gemeindebezirk bei Neustift im Walde.



Dieses Objekt ist Teil eines Wohnkomplex, bestehend aus mehreren Häusern auf einem großen Grundstück, welches diverse Gemeinschaftsräume, für die Allgemeinheit hat. Hierzu zählen die Garage, ein Fitnessraum und das Pool mit Sauna und Dampfbad. Das Objekt vereint die Vorteile wie die Privatsphäre eines Hauses optimal mit gemeinschaftlich benutzbaren Räumen die ein Wohnkomplex bietet.



Die Villa befindet sich auf einem knapp 700 m2 großen Grundstück und überzeugt mit einer Wohnfläche von ca. 420 m2 und einer unglaublichen Gesamtnutzfläche von ca. 645 m². Sie erstreckt sich über 1 Erd-, 2 Ober- und 2 Untergeschosse und teilt sich in 6 Schlafzimmer, 4 Badezimmer, Ankleideräume, ein Wohnzimmer, sowie ein Esszimmer, eine Küche, ein Arbeitszimmer/Bibliothek, einen Wintergarten, einen Billardraum und einen Fitnessraum mit Sauna auf. Ebenso verfügt die Immobilie über 3 PKW Stellplätze in der Garage, die über das 2. Untergeschoß direkt angebunden ist. Jede Etage ist mit dem hauseigenen Lift und einer wunderschönen Holztreppe zu erreichen. Die Immobilie ist Teil einer Gebäudeanlage, die über weitere Einrichtungen zur freien Nutzung verfügt. Einerseits haben Sie Zugang zu einem weiteren Fitnessraum, aber auch zu einem Indoor Schwimmbecken mit Sauna und Dampfbad, sowie zu einem einladenden Außenbereich, der zum Verweilen einlädt. Die gesamte Immobilie verfügt über eine Alarmanlage und elektrische Außenjalousie. Alle Nassräume, der Flur und die Küche sind mit hochwertigen Fliesen ausgestattet. In diesen Räumlichkeiten haben Sie überall Fußbodenheizung. Alle weiteren Räume sind mit wunderschönem Fischgrätenparkett ausgestattet. In den meisten Räumlichkeiten befinden sich außerdem Klimageräte.



Die Immobilie verfügt über 2 Eingänge. Einer führt direkt in den Vorraum der Küche, welcher die Anlieferung für Lebensmittel erleichtert und zugleich als Vorratsraum dient, der andere Eingang hat einen wunderschönen Glasverbau als Eingangsbereich.



Beim Betreten der Villa über den Haupteingang gelangen Sie in einen einladenden Flur, dieser führt zentral in die Räumlichkeiten des Erdgeschoßes. Rechterhand kommen Sie in das knapp 50 m2 geräumige und lichtdurchflutete Wohnzimmer, welches mit einem funktionierenden Kamin ausgestattet ist. Durch die großen Glastüren gelangen Sie in den Garten, sowie auf die ca. 33 m2 große Terrasse, welche mit einem einladenden Grillplatz überzeugt und viel Platz für Sitzgelegenheiten bietet. Weiters gibt es mehrere Obstbäume wie Apfel-, Birnen- und Feigenbäume, sowie einen Magnolienbaum und wunderbare Sträucher, die auch als Sichtschutz dienen.

Zurück im Flur befindet sich linkerhand das großzügige Esszimmer mit direktem Zugang zur hellen Küche, sowie zum knapp 30 m2 großen und beheizbaren Wintergarten. Neben der Küche befindet sich der Vorratsraum, welcher ebenso der zweite Eingang ist. Gegenüber vom Eingangsbereich befindet sich ein Arbeitszimmer und ein Gäste-WC mit Handwaschbecken.



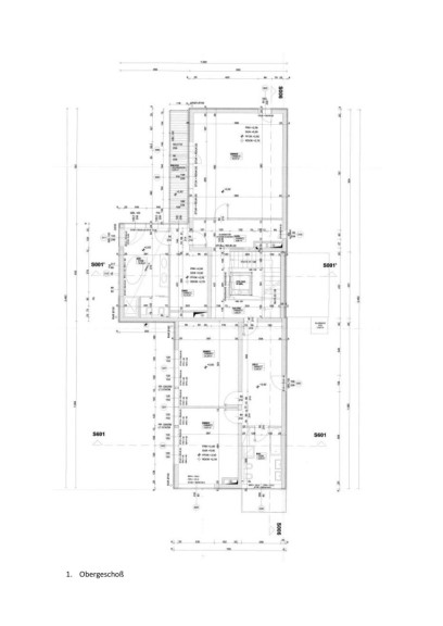
Mit dem Lift, der sich zentral in der Villa befindet, gelangen Sie in das 1. Obergeschoss. Hier befindet sich das ca. 40 m2 große Masterbedroom mit 2 separat begehbaren Ankleideräumen, sowie dem Masterbathroom. Ebenso haben Sie einen überdachten Balkon mit Blick auf den eigenen Garten, sowie französische Balkone im Schlafzimmer und in einem der Ankleidezimmer. Das geräumige Bad überzeugt mit hochwertigem Marmor, einem Jacuzzi, einer Dusche, 2 Waschbecken, einem WC und einem Bidet. Weiteres befinden sich in diesem Stockwerk noch 2 Kinderzimmer, mit Vorraum und einem eigenen separat begehbaren Badezimmer.



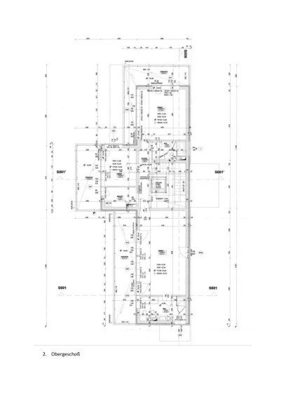
Im 2. Obergeschoß befinden sich drei weitere Räume, die als Gästezimmer genutzt werden können. Eine der Räumlichkeiten verfügt über ein separates Badezimmer mit Wanne, Dusche, 2 Waschbecken, WC und Bidet. Ebenso eine Terrasse, mit Blick über Wien und auf die Weinberge, ist von diesem Zimmer aus zu erreichen. Die anderen beiden Zimmer haben auch jeweils eine Terrasse mit einem atemberaubenden und unverbaubaren Blick über Wien, sowie ein gemeinsames Bad mit Dusche und WC, welches ebenso mit hochwertigem Marmor ausgestattet ist.



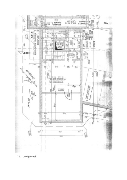
Mit dem Lift, aber auch über die Treppe, gelangen Sie in das 1. Untergeschoß. Hier finden Sie linkerhand einen ca. 42 m2 großen Fitnessraum, der durch eine Spiegelwand und eine Ballettstange hervorsticht. Ebenso ist hier Platz für eine Sitzecke, die zum Verweilen mit Freunden einlädt. Direkt anschließend gelangen Sie zu der hauseigenen Sauna mit Dusche und WC. Rechterhand vom Lift finden Sie einen Billardraum, mit einem original russischen Billardtisch aus Marmor. Dieser Raum besticht durch hochwertiges Kirschholz an den Wänden. Weiteres befindet sich in dieser Etage auch ein Werkraum, der das Heimwerkerherz höher schlagen lässt. Außerdem befindet sich hier auch eine Toilette mit separatem Handwaschbecken.



Eine weitere Etage tiefer haben Sie 2 große Kellerabteile, die als Lager genutzt werden können und sich auch ideal als Weinlager anbieten. Ebenso ist hier auch der direkte Sicherheitszugang zu der Garage, welcher Sie zu den drei PKW Stellplätzen führt. Über die Garage gelangen Sie zu den weiteren Einrichtungen der Gebäudeanlage. Hier befindet sich ein Fitnessraum und ein Wellnessbereich, mit Schwimmbecken, einer Massageliege, Sauna, Dampfbad und Umkleiden mit Spinden. Auf die Pflege der Anlage legt die Hausverwaltung viel wert, ebenso auf die Hygienestandards im und am Pool.



Die Lage der Villa könnte kaum besser sein. Sie liegt mitten in dem begehrten Bezirk Döbling. Diese Immobilie sticht durch die Kombination aus einer idyllischen Grünruhelage und der öffentlichen Anbindung an das Verkehrsnetz hervor. Die Straßenbahnlinie 41 sowie die Buslinie 35A bringen Sie schnell an jedes Ziel. Ebenso finden Sie Geschäfte des täglichen Bedarfs, sowie Apotheken in unmittelbarer Nähe.



Gerne lassen wir Ihnen bei ernsthaftem Interesse - vor Kaufanbotlegung - weitere vertraulichen Dokumente zu dieser Liegenschaft zukommen, welche nicht veröffentlicht werden dürfen.



Überzeugen Sie sich selbst von diesem überaus attraktiven Objekt. Für Besichtigungen und nähere Informationen stehen wir Ihnen gerne zur Verfügung!



Christian Kiedl

national - Tel: 0664 336 0836
international - Tel: +43 664 336 0836
e-mail: kiedl@lifestyle-properties.at



 



 



 


Wir weisen darauf hin, dass zwischen dem Vermittler und dem zu vermittelnden Dritten ein familiäres oder wirtschaftliches Naheverhältnis besteht.


Der Vermittler ist als Doppelmakler tätig.

Infrastruktur / Entfernungen

Gesundheit
Arzt <1.000m
Apotheke <1.000m
Klinik <1.500m
Krankenhaus <2.500m

Kinder & Schulen
Schule <1.000m
Kindergarten <1.000m
Universität <1.500m
Höhere Schule <1.500m

Nahversorgung
Supermarkt <500m
Bäckerei <1.000m
Einkaufszentrum <3.000m

Sonstige
Geldautomat <500m
Bank <500m
Post <1.500m
Polizei <1.000m

Verkehr
Bus <500m
U-Bahn <2.500m
Straßenbahn <1.000m
Bahnhof <2.000m
Autobahnanschluss <3.500m

Angaben Entfernung Luftlinie / Quelle: OpenStreetMap

Eckdaten Objektnr. 4133

Art: Wohnung - Maisonette
Land: Österreich
Baujahr: 2005
Zustand: Neuwertig
Alter: Neubau
Kaufpreis: 3.499.000,00
Provision: 3% des Kaufpreises zzgl. 20% USt.
Betriebskosten: 1.911,95 €
Heizkosten: 863,06 €
MwSt Gesamt: 333,63 €
Wohnfläche: 418,88 m²
Nutzfläche: 645,07 m²
Zimmer: 12
Bäder: 4
WC: 5
Balkone: 1
Terrassen: 5
Stellplätze: 3
Keller: 226,19 m²
Heizwärmebedarf:  C  98,00 kWh/m²a
fGEE:  C  1,67
Immobilie merken Exposé

Ausstattung

Fliesen, Parkett, Gas, Fußbodenheizung, Kamin, Zentralheizung, Einbauküche, Personenaufzug, Südbalkon, Westbalkon, Ostbalkon, Bad mit Fenster, Badewanne, Dusche, Garage, Tiefgarage, Alarmanlage, Sauna, Swimmingpool, Wasch/Trockenraum


Immobilie anfragen


Ihre persönliche Beratung

IM Lifestyle Properties GmbH

Christian Kiedl

Lifestyle Properties

T +43 1 512 14 84

H +43 664 336 0836

F +43 1 512 14 84