Wohnung Nähe Botanischer Garten Innsbruck-Hötting mit Aussicht auf Innsbruck

Wohnung , 6020 Innsbruck


Diese Wohnung befindet sich in 6020 Innsbruck in Tirol. Sie liegt in der Nähe der Schneeburggasse nahe Botanischer Garten der Stadt Innsbruck und ist nach Süden ausgerichtet. In der Nähe finden Sie einen Arzt, eine Apotheke, eine Schule, einen Kindergarten, eine Universität, eine Höhere Schule, einen Supermarkt, eine Bäckerei, ein Einkaufszentrum, eine Bank, ein Geldautomat. Die Wohnung befindet sich oberhalb der beliebten Schneeburggasse, darunter befinden sich Uni und Klinik Innsbruck.

Beschreibung der Immobilie

Wohnung Nähe Botanischer Garten Innsbruck-Hötting mit Aussicht auf Innsbruck

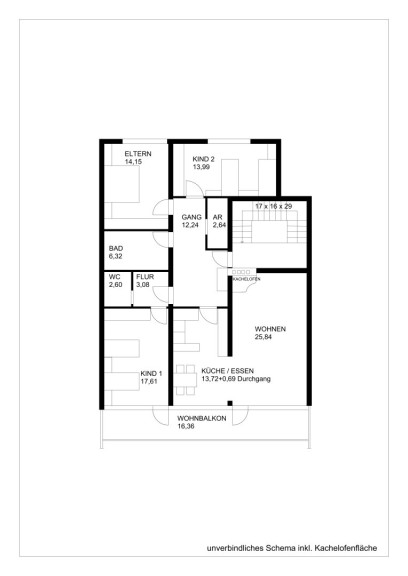
Von dieser Wohnung genießen Sie von Wohnzimmer und Küche einen grandiosen Stadtlblick auf Innsbruck.



Ein Tiefer Balkon und älterer Baumbestand davor sorgen für kühlende Beschattung im Sommer.



Fenster und Türen wurden von den Mietern 2001 und 2016 erneuert, Firma Farkalux.



Im Wohnzimmer wurde ein Kachelofen eingebaut, der mit Holz bzw. elektrisch betrieben werden kann, Einbau in den 1990er Jahren.



Die Wohnung verfügt über keinen zugeordneten Parkplatz.



Die Wohnung ist sanierungsbedürftig.



Sanierungsarbeiten bzgl. Sanitär/Gebäudehülle (an Allgemeinteilen)an der Wohnanlage wurden soeben abgeschlossen.



Rücklagenstand für die Eigentümergemeinschaft € 51.350,91 mit per 31.12.2024



Kaufen Sie jetzt diese Immobilie zum Preis von 520.000,00 €. Mit dieser Investition machen Sie eine gute Wahl: Sie erhalten ein schönes Zuhause, das Sie nach Ihren Wünschen gestalten können, und eine hervorragende Verkehrsanbindung zu allen Sehenswürdigkeiten und Annehmlichkeiten in Innsbruck. Mit dieser Immobilie sind Sie immer in der Nähe des Geschehens.



Kontaktieren Sie uns noch heute schriftlich, um mehr über diese wunderschöne Immobilie zu erfahren und Ihren Traum zu verwirklichen.



Bei Erfüllung der persönlichen Voraussetzungen (zB Hauptwohnsitz, keine weitere Wohnung, Einkommensverhältnisse, keine Vermietung) kann eine Wohnbauförderung-Erwerbsförderung des Landes Tirol durch den unter den Richtlinienobergrenzen liegenden Quadratmeterpreis in Anspruch genommen werden!





Um Sie umfassend beraten zu können ersuchen wir im Falle Ihrer geschätzten schriftlichen Anfrage um Angabe Ihres Vor- und Nachnamens, Emailadresse, Anschrift und Telefonnummer.



Besichtigung führen wir nach Vorliegen einer Finanzierungsbestätigung bzw. Bonitätsnachweises durch.



Eine Finanzierungsbestätigung können Sie rasch online zB hier einholen:



https://services.sbausparkasse.at/darlehen-online/?ref=arealita-immobilientreuhand-sachverst%C3%A4ndigen-gmbh





Sie benötigen eine Immobilienfinanzierung ?



Klicken Sie hier:



https://www.arealita.at/kreditrechner/

Noch nichts gefunden? Wir informieren Sie über geeignete Immobilienangebote noch vor allen anderen.
Legen Sie jetzt Ihren individuellen Suchagenten unter folgendem Link an. Wir schicken Ihnen passende Immobilien exklusiv vorab zu.

Suchagent anlegen - https://arealita-immobilientreuhand-und-sachverstaendigen.service.immo/registrieren/de


Der Vermittler ist als Doppelmakler tätig.

Infrastruktur / Entfernungen

Gesundheit
Arzt <500m
Apotheke <1.000m
Klinik <2.000m
Krankenhaus <1.500m

Kinder & Schulen
Schule <1.000m
Kindergarten <500m
Universität <500m
Höhere Schule <1.000m

Nahversorgung
Supermarkt <500m
Bäckerei <500m
Einkaufszentrum <1.000m

Sonstige
Bank <500m
Geldautomat <500m
Polizei <1.000m
Post <1.000m

Verkehr
Bus <500m
Straßenbahn <1.000m
Bahnhof <1.000m
Autobahnanschluss <2.000m
Flughafen <3.000m

Angaben Entfernung Luftlinie / Quelle: OpenStreetMap

Eckdaten Objektnr. 5093/66

Art: Wohnung
Land: Österreich
Baujahr: 1962
Zustand: Sanierungsbeduerftig
Kaufpreis: 520.000,00
Provision: 18.720,00 € inkl. 20% USt.
Betriebskosten: 238,30 €
Heizkosten: 209,97 €
MwSt Gesamt: 65,82 €
Wohnfläche: 112,14 m²
Nutzfläche: 112,14 m²
Grundstücksfl.: 3.889,00 m²
Zimmer: 4
Bäder: 1
WC: 1
Balkone: 1
Heizwärmebedarf:  B  37,10 kWh/m²a
fGEE:  C  1,49
Immobilie merken Exposé

Ausstattung

Südbalkon


Immobilie anfragen


Ihre persönliche Beratung

Arealita Immobilientreuhand und Sachverständigen GmbH

Mag. Bernhard Großruck

Arealita Immobilientreuhand und Sachverständigen GmbH

T +43 512 580 242

H +43 664 20 19 128