Preisreduktion - Charmant mit höchster Wohn- & Lebensqualität und traumhaftem Garten

Haus - Landhaus, 9555 Kissomlyó


Kissomlyó ist ein Dorf im ungarischen Landkreis Vas. Der sehr gepflegte Landsitz befindet sich in einer absoluten Ruhelage am Ortsrand. Sarvar mit allen Einkaufsmöglichkeiten des täglichen Bedarfs liegt knappe 20 Autominuten entfernt.

Beschreibung der Immobilie

Preisreduktion - Charmant mit höchster Wohn- & Lebensqualität und traumhaftem Garten

Sie sehnen sich nach Ihrem eigenen Refugium am Land in Ungarn?  -  Dann haben wir genau das Richtige für Sie!



Der Wunsch nach dem Leben auf dem Land wird hier zur gelebten Wirklichkeit, da hier ein entspannter Lebensstil in dörflicher Umgebung  angeboten wird.



Ein echtes Original mit dem Charme vergangener Zeiten bietet ländliche Idylle und ein komfortables Lebensgefühl.



Es wartet ein enormes Potenzial mit unzähligen Möglichkeiten für Ruhesuchende und Naturliebhaber.



Hier wurde mehr als nur Wohnraum geschaffen -  Kultur, Lebensart im ländlichen Stil sind hier in die Realität umgesetzt worden.



Dieses Landhaus der besonderen Art in idyllischer Lage wurde bis 2016 professionell und exklusiv renoviert -  2022 wurde das Dach komplett neu aufgesetzt.



Zum Einsatz sind nur hochwertige Materialien im regionaltypischen Stil gekommen.



Durch seine Gestaltung wirkt es sehr fein und romantisch - es weckt offenkundig eine Sehnsucht nach Idylle.





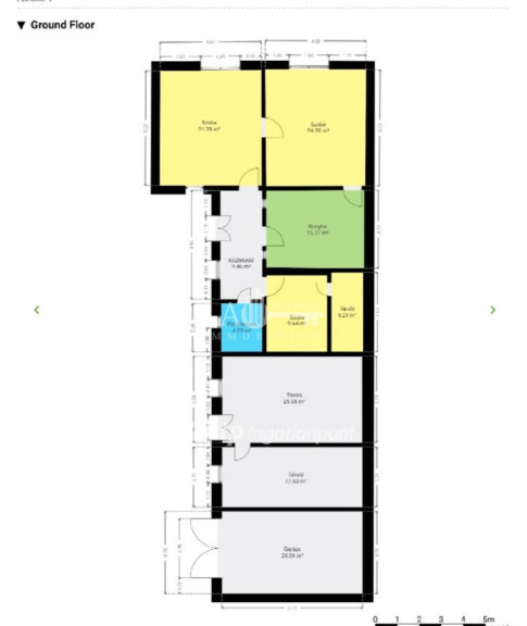
Die insgesamt ca. 90 m² Wohnfläche gliedern sich auf in:  



     - Eingangsbereich



     - Küche 



     - Bad mit Wanne, WC und Tageslichtfenster



     - 1 Schlafzimmer



     - Wohnzimmer mit Schwedenofen



Nebengebäude:



- Abstellraum ça. 25 m²



     - Abstellraum ca. 17,50  m² 



     - Garage 24 m²





Das ehemalige Wirtschaftsgebäude beinhaltet zudem zwei sanierte Räume und eine großzügige Garage.



Beide Abstellräume können bei Bedarf in Wohnfläche adaptiert werden.



Der idyllische, sanierte Brunnen rundet das Angebot auf.



Resümee 



Liebhaber, welche ein außergewöhnliches Lebensgefühl fern jeder Hektik und das Besondere schätzen, werden hier fündig.



Lassen Sie sich inspirieren und besichtigen Sie dieses einzigartige Anwesen.





Interessiert? Kontaktieren Sie uns für eine unverbindliche Besichtigung! 



Für nähere Informationen steht Ihnen das Team der La-Homes  Immobilien  jederzeit zur Verfügung!





Mit freundlichen Grüßen



Ing. Christian Domnanovich



0664 24 777 24



cdo@la-homes.at



www.la-homes.at



Traundorfer Straße 8



4030 Linz











Noch nichts gefunden? Wir informieren Sie über geeignete Immobilienangebote noch vor allen anderen.
Legen Sie jetzt Ihren individuellen Suchagenten unter folgendem Link an. Wir schicken Ihnen passende Immobilien exklusiv vorab zu.
Suchagent anlegen - https://la-homes-immobilien.service.immo/registrieren/de


Der Vermittler ist als Doppelmakler tätig.


Eckdaten Objektnr. 795

Art: Haus - Landhaus
Land: Ungarn
Baujahr: 1940
Zustand: Voll_saniert
Möbliert: Teil
Alter: Altbau
Kaufpreis: 138.000,00
Kaufpreis / m²: 878,98 €
Provision: 4.968,00 € inkl. 20% USt.
Betriebskosten: 20,00 €
Wohnfläche: 90,00 m²
Nutzfläche: 157,00 m²
Grundstücksfl.: 2.827,00 m²
Zimmer: 2,50
Bäder: 1
WC: 1
Terrassen: 1
Heizwärmebedarf:  G  321,19 kWh/m²a
Immobilie merken Exposé

Ausstattung

Dielenboden, Fliesen, Steinboden, Gas, Heizofen, Zentralheizung, Einbauküche, Südbalkon, Bad mit Fenster, Badewanne, Kabel/Satelliten-TV


Immobilie anfragen


Ihre persönliche Beratung

ING. Christian Domnanovich

LA-Homes Immobilien

T +43 664 247 77 24