3-Zimmer Wohnung mit großzügiger Loggia und Lift in familienfreundlicher ruhiger grüner Siedlungslage! Hervorragende Erreichbarkeit und Infrastruktur mitten in Enns - Kristein!

Wohnung , 4470 Enns , Haydn-Straße 16


Die Wohnung befindet sich in 4470 Enns/Kristein, Haydnstraße 16 in einem ruhigen Wohnumfeld. Die Lage bietet eine sehr gute Grundversorgung (Einkaufen - Billa Plus, Schulen, Ärzte, Restaurants, Zentrum, Freizeitmöglichkeiten...) sowie eine solide Verkehrsanbindung – sowohl innerhalb der Stadt als auch Richtung Linz und in die umliegenden Gemeinden. Die Lage in Kristein kombiniert angenehmes ruhiges Wohnen im Grünen, mit guter Erreichbarkeit der Infrastruktur in Enns.

Beschreibung der Immobilie

3-Zimmer Wohnung mit großzügiger Loggia und Lift in familienfreundlicher ruhiger grüner Siedlungslage! Hervorragende Erreichbarkeit und Infrastruktur mitten in Enns - Kristein!

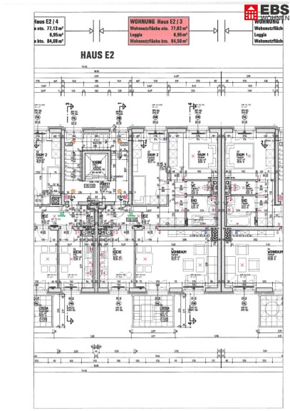
4470 Enns / Kristein / Haydnstraße 16;


Zur Vermietung steht eine kleinfamilienfreundliche 3-Zimmer-Wohnung in 4470 Enns/Kristein, Haydnstraße 16 mit 77,63 m² Wohnnutzfläche und toller Loggia (6,95 m²).



Raumaufteilung & Highlights



  • Raumaufteilung
  • Diele/Vorraum
  • Wohnraum
  • Küche
  • Zimmer 1
  • Zimmer 2
  • Bad
  • WC (separat)
  • Abstellraum
  • Loggia




Highlights



  • Abstellraum
  • 3 Zimmer auf 77,63 m² Wohnnutzfläche (netto)
  • Loggia mit 6,95 m²
  • Parkplatz, zusätzlich € 22,45/Monat
  • Fernwärme-Heizung (gebäudeseitig)
  • Gute Energiekennwerte: HWB 35,9 kWh/m²a, fGEE 1,46


Mietkonditionen



  • Objekt: Mietwohnung, 4470 Enns/Kristein, Haydnstraße 16
  • Monatliche Bruttomiete: € 863,89
    (inkl. Betriebskosten, Heizung, Warmwasser sowie Steuern & Abgaben)
  • Parkplatz: € 22,45 / Monat (zusätzlich)
  • Gesamt inkl. Parkplatz: € 886,34 / Monat
  • Kaution: € 3.545,36


Verfügbarkeit



Die Wohnung steht ab 1.4.2026 zur Verfügung.

Sie sind an weiteren Wohnungsangeboten interessiert?

Ein vielfältiges Angebot finden Sie auf unserer EBS Website.

Zur EBS Immobiliensuche: EBS Wohnungsanlagen Gesellschaft m.b.H - EBS (ebs-linz.at)
Zur EBS Wohnungsanmeldung: Wohnungsanmeldung - EBS (ebs-linz.at)

Gerne beraten wir Sie persönlich über unser vielfältiges Angebot, rufen Sie uns einfach an! Und das natürlich ohne Vermittlungsgebühren und provisionsfrei!

Angaben sind ohne Gewähr auf Richtigkeit und Vollständigkeit. Druckfehler vorbehalten!

Infrastruktur / Entfernungen

Gesundheit
Arzt <800m
Apotheke <1.225m
Klinik <1.225m

Kinder & Schulen
Schule <1.075m
Kindergarten <775m

Nahversorgung
Supermarkt <350m
Bäckerei <875m
Einkaufszentrum <500m

Sonstige
Bank <800m
Geldautomat <800m
Post <875m
Polizei <1.200m

Verkehr
Bus <300m
Bahnhof <1.050m
Autobahnanschluss <900m
Straßenbahn <8.925m

Angaben Entfernung Luftlinie / Quelle: OpenStreetMap

Eckdaten Objektnr. 7062/272

Art: Wohnung
Land: Österreich
Zustand: Gepflegt
Gesamtmiete: 863,71
Kaltmiete (netto): 488,23 €
Kaltmiete: 701,90 €
Betriebskosten: 213,67 €
Heizkosten: 78,03 €
MwSt Gesamt: 83,78 €
Wohnfläche: 84,58 m²
Zimmer: 3
Bäder: 1
WC: 1
Stellplätze: 1
Heizwärmebedarf:  B  35,90 kWh/m²a
fGEE:  C  1,46
Immobilie merken Exposé

Ausstattung

Fliesen, Parkett, Zentralheizung, Personenaufzug, Badewanne, Kabel/Satelliten-TV, Parkplatz, Wasch/Trockenraum


Immobilie anfragen


Ihre persönliche Beratung

Team Vermietung & Verkauf EBS

EBS Wohnungsgesellschaft mbH Linz

T +43 50 338 6016