HELLE BALKONWOHNUNG - NÄHE GERSTHOFERSTRASSE

Wohnung , 1180 Wien


Beschreibung der Immobilie

HELLE BALKONWOHNUNG - NÄHE GERSTHOFERSTRASSE

NEUBAUMIETE MIT BALKON - BEZUG AB MÄRZ 2026





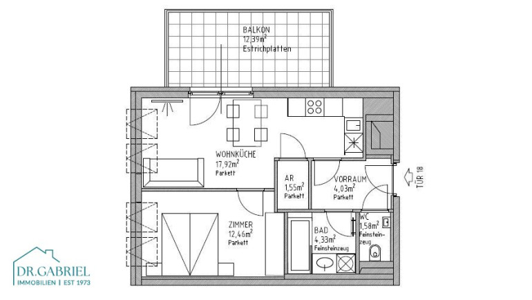
RAUMAUFTEILUNG
Eingangsbereich, ein Wohn- und Esszimmer mit voll ausgestatteter offenen Küche und Zugang zum Balkon, ein Schlafzimmer, ein Badezimmer mit Wanne und Waschmaschienenanschluss, ein Abstellraum und eine separate Toilette.





AUSSTATTUNG:



  • hochwertigen Vollholzparkettböden in den Wohn- und Schlafräumen
  • Fliesen in den Sanitärbereichen
  • Miele Geräte in der Küche
  • elektrische Außenjalousie
  • Videogegensprechanlage
  • Fußbodenheizung


Die Anlage verfügt über Kellerabteile, Fahrrad- und Kinderwagenabstellraum und eine Waschküche.



  • Vertragserrichtungskosten an die Hausverwaltung: € 160,00


Die ausgezeichnete Umgebung der Wohnungsanlage bietet in unmittelbarer Nähe:



  • Einkaufsmöglichkeiten
  • Pötzleinsdorfer Schlosspark
  • BOKU Wien
  • internationale Schulen und Kindergärten
  • gute Anbindung an öffentliche Verkehrsmittel (Straßenbahn: 41, Bus: 40A)


Garagenstellplätze können separat (nach Verfügbarkeit) angemietet werden € 120,00/Monat brutto - Kaution: € 400,00 - Abwicklungshonorar an die Hausverwaltung: € 130,00





weitere Objekte finden Sie auf unserer Homepage: www.gabriel.at



  • Hinweis/ Disclaimer: Die Möbel sind digital und mit KI erstellt worden. Die Wohnung wird unmöbliert vermietet.




BITTE ZU BEACHTEN:



FÜR DIE ANMIETUNG DIESER WOHNUNG IST DIE VORLAGE EINES MONATLICHEN NETTOHAUSHALTSEINKOMMEN IN ÖSTERREICH IN HÖHE VON MINDESTENS DER 2,5-FACHEN GESAMTMIETE ERFORDERLICH!



Dieses Objekt wird Ihnen unverbindlich und freibleibend angeboten. Oben angeführte Angaben basieren auf Informationen und Unterlagen des Eigentümers und sind unsererseits ohne Gewähr.

***************************************************************************************************





LAYOUT:

entrance area, a living-dining room with a fully equipped open kitchen with access to the balcony,  one bedroom, a bathroom with tub and washing machine connection, a storage room and a separate toilet.



Contact us for a viewing and convince yourself of everything this apartment can offer you.



The high-quality equipment convinces especially by



  • by hardwood parquet floors in the living and sleeping areas tiles in the sanitary areas
  • tiles in the sanitary areas
  • Miele appliances in the kitchen
  • electric outside blinds
  • video intercom
  • floor heating


Each apartment has a cellar compartment in the basement, a bicycle- and stroller storage room and a laundry room for shared use are available in the condominium.



Garage parking spaces can be rented separately depending on availability.€ 120,00/month - Deposit: € 400,00 - Contract preparation fee to the property management company: € 130,00


Contract preparation fee to the property management company: € 160,00



The excellent infrastructure of the residential complex offers in the immediate vicinity:



  • numerous grocery stores
  • the Pötzleinsdorfer Schlosspark
  • the BOKU Vienna
  • international schools and kindergarten
  • excellent access to public transport (tram 41, bus 40A)


Disclaimer: The furniture shown is digital and AI-generated. The apartment is rented unfurnished.





PLEASE NOTE:



TO RENT THIS APARTMENT, YOU MUST PROVIDE PROOF OF A MONTHLY NET HOUSEHOLD INCOME IN AUSTRIA OF AT LEAST 2.5 TIMES THE TOTAL RENT!



This property is offered without obligation and subject to change. The information provided above is based on details and documents supplied by the owner and is given without guarantee.


Der Immobilienmakler erklärt, dass er – entgegen dem in der Immobilienwirtschaft üblichen Geschäftsgebrauch des Doppelmaklers – einseitig nur für den Vermieter tätig ist.

Infrastruktur / Entfernungen

Gesundheit
Arzt <500m
Apotheke <500m
Klinik <1.000m
Krankenhaus <2.000m

Kinder & Schulen
Schule <500m
Kindergarten <500m
Universität <1.000m
Höhere Schule <1.000m

Nahversorgung
Supermarkt <500m
Bäckerei <500m
Einkaufszentrum <2.500m

Sonstige
Geldautomat <500m
Bank <1.000m
Post <1.000m
Polizei <1.000m

Verkehr
Bus <500m
U-Bahn <2.000m
Straßenbahn <500m
Bahnhof <1.000m
Autobahnanschluss <3.000m

Angaben Entfernung Luftlinie / Quelle: OpenStreetMap

Eckdaten Objektnr. 28466

Art: Wohnung
Land: Österreich
Baujahr: 2019
Zustand: Gepflegt
Alter: Neubau
Gesamtmiete: 1.149,01
Kaltmiete (netto): 900,10 €
Kaltmiete: 1.044,55 €
Provision: Gemäß Erstauftraggeberprinzip bezahlt der Abgeber die Provision.
Betriebskosten: 144,45 €
MwSt Gesamt: 104,46 €
Wohnfläche: 41,87 m²
Gesamtfläche: 41,87 m²
Zimmer: 2
Bäder: 1
WC: 1
Balkone: 1
Heizwärmebedarf:  B  33,43 kWh/m²a
fGEE:  A  0,77
Immobilie merken Exposé

Ausstattung

Fliesen, Parkett, Fußbodenheizung, Einbauküche, Wohnküche / offene Küche, Personenaufzug, Dusche, Kabel/Satelliten-TV, Garage, Wasch/Trockenraum


Immobilie anfragen


Ihre persönliche Beratung

Dr. Alexandra Gabriel Realitätenvermittlungsgesellschaft m.b.H.

Office Team

Dr. Alexandra Gabriel Realitätenvermittlungsgesellschaft m.b.H.

T +43 1 533 10 96