++NEU++ Premium 3-Zimmer Townhouse in bester Lage mit Garten!

Wohnung , 1200 Wien


Jägerstraße

Beschreibung der Immobilie

++NEU++ Premium 3-Zimmer Townhouse in bester Lage mit Garten!

++ZUR VEREINBARUNG eines BESICHTIGUNGSTERMINS lassen SIE uns BITTE JEDENFALLS eine schriftliche ANFRAGE am besten gleich mit Ihren TERMINWÜNSCHEN zukommen! (wir antworten verlässlich am selben Tag!)++



Haus 1: Zum Verkauf gelangt dieses ca. 97m² große 3-Zimmer Reihenhaus mit ca. 13m² Garten in sehr guter Lage des 20. Wiener Gemeindebezirks gelegen. 



Es handelt sich bei diesem Projekt um eine absolute Rarität:



Die Liegenschaft besteht aus zwei Trakten (Straßen- und Hoftrakt). Im Zuge der Projektierung wurden im Hof 10 hochwertige Reihenhäuser mit großzügigen Freiflächen geschaffen.



Gerne lassen wir Ihnen eine Aufstellung über alle verfügbaren Einheiten auf Anfrage zukommen!



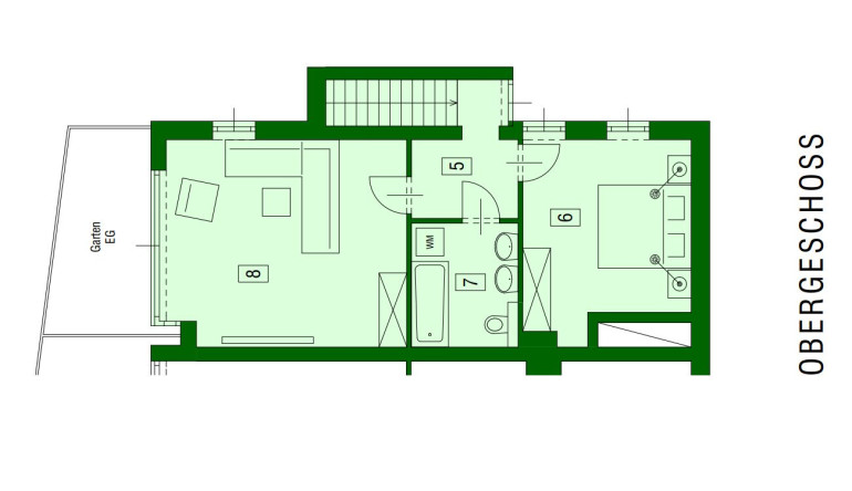
Raumaufteilung: Haus 1



Erdgeschoss:



  • Vorraum
  • Büro/Küche (der Erdgeschossbereich verfügt über eine Büro-Widmung, Flächenwidmung: Gemischtes Baugebiet Geschäftsviertel)
  • Abstellraum
  • WC
  • Garten


Obergeschoss:



  • Vorraum
  • Badezimmer mit WC
  • Zimmer
  • Zimmer


(siehe Plan und Fotos vor Erstvermietung)



Ausstattung:



Die Häuser dieses Projekts wurden neu hergestellt und hochwertig ausgestattet. In allen Zimmern wurde ein wunderschöner Parkettboden verlegt, die Nassräume wurden aufwendig verfliest und mit Markenarmaturen ausgestattet. Alle Objekte werden mittels Fußbodenheizung beheizt und bieten in Sachen Ausstattung und Ausführung alle Vorzüge eines zeitgemäßen Neubaus. 



Auf Wunsch lassen wir Ihnen gerne eine Bau- u. Ausstattungsbeschreibung zukommen! 



Zustand:



Die Häuser werden schlüsselfertig (mit Küche) im ZWEITBEZUG verkauft. 



Lage/Infrastruktur: 



Die unmittelbare Lage kann als sehr gut bezeichnet werden:



Alle Geschäfte des täglichen Bedarfs befinden sich in Gehdistanz. Eine Reihe von Allgemein- und Fachmedizinern ist ebenfalls fußläufig zu erreichen. Der Augarten (fußläufig erreichbar) ist die nächstgelegene Grünfläche und bietet ein reichhaltiges Freizeitangebot. 



Verkehrsanbindung:



Die Wohnung ist über die Straßenbahnlinie 33 und die U-6 Station "Jägerstraße" sehr gut öffentlich angebunden.



Preis:



Der lastenfreie Kaufpreis für diese Eigentumswohnung beträgt EUR 679.000.-.



Ein Tiefgaragenstellplatz kann für EUR 35.000.-. erworben werden





Vertragserrichter:



Engin-Deniz Reimitz Hafner Rechtsanwälte 1,5% + Barauslagen und Beglaubigungskosten + 20% Ust





Sollten Sie Fragen haben oder einen Besichtigungstermin wünschen, zögern Sie bitte nicht mich zu kontaktieren.



Zur Vereinbarung eines Besichtigungstermins lassen Sie uns bitte jedenfalls eine E-Mailanfrage zukommen!



Der IMMY ist die renommierteste Auszeichnung für Wiener Makler- und Verwalterbetriebe im Bereich Wohnimmobilien. Wir sind stolz den goldenen IMMY für das Jahr 2019 gewonnen zu haben!



Vielen Dank vor allem an unsere Kunden! Unser Unternehmen wurde auch zum Besten Start Up und in den Jahren 2015, 2018, 2019 und 2020 als Qualitätsmakler ausgezeichnet!



Nicht alle unsere Immobilien finden Sie auf den gängigen Plattformen. Wir freuen uns auf Ihren Besuch auf unserer Homepage unter adonia.at 



Wir weisen ausdrücklich auf unser wirtschaftliches Naheverhältnis mit dem Abgeber/ der Abgeberin hin!  Unsere gesetzlichen Pflichten als Doppelmakler werden dadurch jedoch nicht beeinträchtigt. Irrtum und Änderungen vorbehalten. Irrtum und Änderungen vorbehalten.



Alle hier veröffentlichen Informationen basieren auf den uns von dem Abgeber/ der Abgeberin zur Verfügung gestellten Informationen und wurden nicht selbst erhoben.



Unsere Allgemeinen Geschäftsbedingungen können Sie sowohl in dem Ihnen zugesandten Expose einsehen als auch auf unserer Homepage. Wir weisen ausdrücklich darauf hin, dass diese AGBs Vertragsinhalt werden.



Der Schutz von personenbezogenen Daten ist uns wichtig und auch gesetzlich gefordert. Die Verarbeitung Ihrer personenbezogenen Daten erfolgt nach den datenschutzrechtlichen Bestimmungen. Auf unserer Homepage (unter Datenschutzinformation) finden Sie eine Übersicht die Sie über die wichtigsten Aspekte der Verarbeitung personenbezogener Daten informieren soll.


Wir weisen darauf hin, dass zwischen dem Vermittler und dem zu vermittelnden Dritten ein familiäres oder wirtschaftliches Naheverhältnis besteht.


Der Vermittler ist als Doppelmakler tätig.

Infrastruktur / Entfernungen

Gesundheit
Arzt <500m
Apotheke <500m
Klinik <1.000m
Krankenhaus <1.500m

Kinder & Schulen
Schule <500m
Kindergarten <500m
Universität <1.000m
Höhere Schule <1.000m

Nahversorgung
Supermarkt <500m
Bäckerei <500m
Einkaufszentrum <1.000m

Sonstige
Geldautomat <500m
Bank <500m
Post <500m
Polizei <500m

Verkehr
Bus <500m
U-Bahn <1.000m
Straßenbahn <500m
Bahnhof <1.000m
Autobahnanschluss <1.500m

Angaben Entfernung Luftlinie / Quelle: OpenStreetMap

Eckdaten Objektnr. 56442

Art: Wohnung
Land: Österreich
Zustand: Erstbezug
Alter: Neubau
Kaufpreis: 679.000,00
Provision: 3% des Kaufpreises zzgl. 20% USt.
Betriebskosten: 179,00 €
MwSt Gesamt: 17,90 €
Wohnfläche: 97,33 m²
Zimmer: 3
Bäder: 1
WC: 2
Garten: 13,00 m²
Heizwärmebedarf: 44,30 kWh/m²a
fGEE: 0,79
Immobilie merken Exposé

Ausstattung

Parkett, Einbauküche, Badewanne


Immobilie anfragen


Ihre persönliche Beratung

Adonia Realitätenvermittlung GmbH

Benjamin Marinkovic

Adonia Immobilien GmbH

T 06765446834