Neubauprojekt - Nungessergasse | 3 Zimmer | Terrasse & Garten | Belagsfertig | inkl. PKW-Stellplatz | TOP 1

Wohnung , 2700 Wiener Neustadt


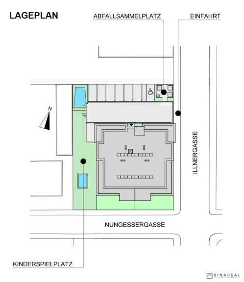
Durch die optimale Lage des Wohnhauses bietet diese auch eine tolle Anbindung an das öffentliche Verkehrsnetz. In ca. 300 m Entfernung befindet sich eine Haltestelle der Buslinien 3 und 6, mit der Sie zum Bahnhof Wr. Neustadt Nord gelangen. In direkter Umgebung finden Sie zahlreiche Nahversorger wie Lebensmittelanbieter (Billa, Spar, Hofer, Lidl); Volksschule, FH Wr. Neustadt, Apotheke sowie zahlreiche Ärzte in unmittelbarer Nähe; uvm..

Beschreibung der Immobilie

Neubauprojekt - Nungessergasse | 3 Zimmer | Terrasse & Garten | Belagsfertig | inkl. PKW-Stellplatz | TOP 1

Zum Verkauf gelangt eine gut geschnittene 2 Zimmer Wohnung mit Terrasse & Garten dieses modernen Neubau-Projekts in Wr. Neustadt - Nungessergasse / Illnergasse!





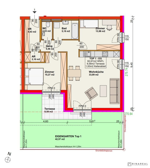
Es stehen Ihnen 82,5 m² Wohnfläche, 8,5 m² Terrasse, sowie ca. 42,5 m² Eigengarten zur Verfügung.



Die Heizung erfolgt mit einer zentralen Luft-Wasserwärmepumpe in Kombination mit einer Photovoltaikanlage, die Wärmeabgabe in der Wohnung über eine Fußbodenheizung.



Raumaufteilung:



  • Vorraum
  • Wohnküche mit Ausgang auf die Terrasse (Ausrichtung S) / in den Eigengarten
  • Schlafzimmer - ebenso mit Ausgang auf die Terrasse / in den Eigengarten
  • Kinderzimmer / Büro
  • Badezimmer mit WM-Anschluss
  • separates WC mit Anschluss für Handwaschbecken
  • Abstellraum




Im Kaufpreis inbegriffen ist ein Abstellplatz für Ihren PKW!





Weitere Annehmlichkeiten: Leerverrohrung Klimaanlage vorhanden | Kunststofffenster mit dreischaliger Isolierverglasung | zugehöriges Kellerabteil | Kinderwagenabstellraum | Fahrradabstellmöglichkeit | Kinderspielplatz | Personenlift vorhanden (barrierefrei) | uvm.





Ausführungsform: belagsfertig  |  Angebot schlüsselfertig: gerne auf Anfrage!





Voraussichtlicher Baubeginn: Q2 / 2026 – bei entsprechender Vorverwertung



Bauzeit: ca. 18 Monate





In dieser Wohnhausanlage stehen noch weitere Wohnungen zum Verkauf - nähere Details finden Sie auf unserer Homepage.





Für nähere Informationen erreichen Sie mich am besten unter: +43 664 14 24 164 oder katharina@rinareal.at - Katharina Hlawaty, MA







Die Angaben erfolgen aufgrund der Informationen und Unterlagen, die uns vom Eigentümer und/oder Dritten zur Verfügung gestellt wurden und sind ohne Gewähr. 


Wir weisen darauf hin, dass zwischen dem Vermittler und dem zu vermittelnden Dritten ein familiäres oder wirtschaftliches Naheverhältnis besteht.


Der Vermittler ist als Doppelmakler tätig.

Infrastruktur / Entfernungen

Gesundheit
Arzt <1.500m
Apotheke <1.500m
Klinik <3.000m
Krankenhaus <2.000m

Kinder & Schulen
Schule <500m
Kindergarten <1.500m
Höhere Schule <2.500m
Universität <1.500m

Nahversorgung
Supermarkt <1.000m
Bäckerei <1.500m
Einkaufszentrum <1.500m

Sonstige
Bank <500m
Geldautomat <500m
Post <500m
Polizei <500m

Verkehr
Bus <500m
Autobahnanschluss <4.000m
Bahnhof <1.000m
Flughafen <500m

Angaben Entfernung Luftlinie / Quelle: OpenStreetMap

Eckdaten Objektnr. 488

Art: Wohnung
Land: Österreich
Alter: Neubau
Kaufpreis: 322.600,00
Provision: 3% des Kaufpreises zzgl. 20% USt.
Wohnfläche: 82,67 m²
Zimmer: 3
Bäder: 1
WC: 1
Terrassen: 1
Stellplätze: 1
Garten: 42,57 m²
Keller: 1,93 m²
Heizwärmebedarf:  B  26,04 kWh/m²a
fGEE:  A  0,73
Immobilie merken Exposé

Ausstattung

Estrichboden, Fußbodenheizung, Zentralheizung, Personenaufzug, Südbalkon, Kabel/Satelliten-TV, Parkplatz


Immobilie anfragen


Ihre persönliche Beratung

RINAREAL Immobilien Entwicklungs- und Vermarktungsgesellschaft mbH

Katharina Hlawaty

RINAREAL Immobilien Entwicklungs- und Vermarktungsgesellschaft mbH

T +43 664 14 24 164