Beschreibung der Immobilie
Top 2-Zimmerwohnung im 15. Bezirk bei der U3!
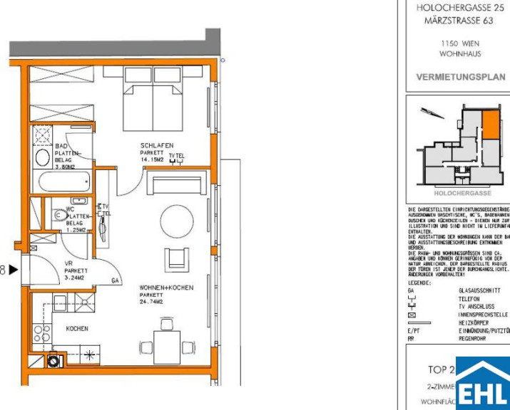
Top 2 Zimmerwohnung in zentraler Lage
Das Wohnhaus befindet sich in wunderbarer Lage. Das Objekt liegt zwischen den U-Bahnhaltestellen U3 Schweglerstraße und Johnstraße. Des weiteren sind die Straßenbahn 49 und die Autobusse 12A und N49 zu Fuß gut erreichbar. In direkter Umgebung befindet sich die Märzstraße mit sämtlichen Geschäften des täglichen Bedarfs. Natürlich sind auch Restaurants in unmittelbarer Reichweite und der Meiselmarkt lädt zum flanieren und Einkaufen frischer Produkte ein.
Diese Wohnung befindet sich im 4. Liftstock und verfügt über eine großzügige Wohnküche, ein Schlafzimmer, ein Badezimmer mit Wanne und Waschmaschinenanschluss, ein separates WC und ein Vorzimmer.
Bei den Fotos handelt es sich daher auch um Musterfotos.
Ausstattung:
- Voll ausgestattete Küche
- Badezimmer mit Wanne und Waschmaschinenanschluss
- separates WC
- In den Wohnräumen ist ein Eichenparkett verlegt und die Nassräume sind verfließt.
Des Weiteren stehen ein Lift, eine Waschküche mit Waschmaschine und Trockner im Erdgeschoss sowie ein Kinderwagen- und Fahrradabstellraum zur allgemeinen Benützung zur Verfügung. Jeder Wohnung ist ein Kellerabteil zugeordnet. Das Objekt ist nicht barrierefrei.
Öffentliche Verkehrsanbindung:
Ubahnlinie U3 "Johnstraße", "Schweglerstraße"
Straßenbahnlinie 9, 49,
Autobuslinie 10A, 12A, 63A
zzgl. Heizung EUR 47,18 + USt. EUR 9,44 = Brutto EUR 56,62
zzgl. Warmwasser EUR 30,67 + USt. EUR 3,07 = Brutto EUR 33,74
Befristung: 5 Jahre, 1 Jahr Kündigungsverzicht, 3 Monate Kündigungsfrist
Nebenkosten:
3 BMM Kaution, Vertragserrichtungsgebühr
Wir weisen darauf hin, dass zwischen dem Vermittler und dem zu vermittelnden Dritten ein familiäres oder wirtschaftliches Naheverhältnis besteht.
Der Immobilienmakler erklärt, dass er – entgegen dem in der Immobilienwirtschaft üblichen Geschäftsgebrauch des Doppelmaklers – einseitig nur für den Vermieter tätig ist.
Infrastruktur / Entfernungen
Gesundheit
Arzt <250m
Apotheke <325m
Klinik <150m
Krankenhaus <1.700m
Kinder & Schulen
Schule <100m
Kindergarten <100m
Universität <950m
Höhere Schule <1.175m
Nahversorgung
Supermarkt <175m
Bäckerei <150m
Einkaufszentrum <350m
Sonstige
Geldautomat <300m
Bank <300m
Post <300m
Polizei <325m
Verkehr
Bus <175m
U-Bahn <125m
Straßenbahn <175m
Bahnhof <200m
Autobahnanschluss <4.325m
Angaben Entfernung Luftlinie / Quelle: OpenStreetMap
Eckdaten Objektnr. 13056
| Art: | Wohnung |
| Land: | Österreich |
| Baujahr: | 2011 |
| Zustand: | Gepflegt |
| Alter: | Neubau |
| Gesamtmiete: | 899,00 € |
| Kaltmiete (netto): | 701,68 € |
| Kaltmiete: | 817,27 € |
| Provision: | Gemäß Erstauftraggeberprinzip bezahlt der Abgeber die Provision. |
| Betriebskosten: | 115,59 € |
| MwSt Gesamt: | 81,73 € |
| Wohnfläche: | 47,18 m² |
| Zimmer: | 2 |
| Bäder: | 1 |
| WC: | 1 |
| Heizwärmebedarf: | B 39,70 kWh/m²a |
| fGEE: | B 0,95 |
Ausstattung
Parkett, Fliesen, Gas, Etagenheizung, Einbauküche, Wohnküche / offene Küche, Personenaufzug, Badewanne
Ihre persönliche Beratung
Dieser Makler ist ein offizielles Mitglied des IR – ir.at Mehr Erfahren
