Reihenhäuser - Belagsfertig ab € 389.990,-- in Karnburg - Provisionsfreier Verkauf

Haus - Reihenhaus, 9020 Maria Saal


Karnburg, Steinbruchweg Ecke Karolingerstraße

Beschreibung der Immobilie

Reihenhäuser - Belagsfertig ab € 389.990,-- in Karnburg - Provisionsfreier Verkauf

Die Baufirma BM-Haus GmbH errichtet in Ziegelbauweise, Übergabe Anfang/Mitte 2027,



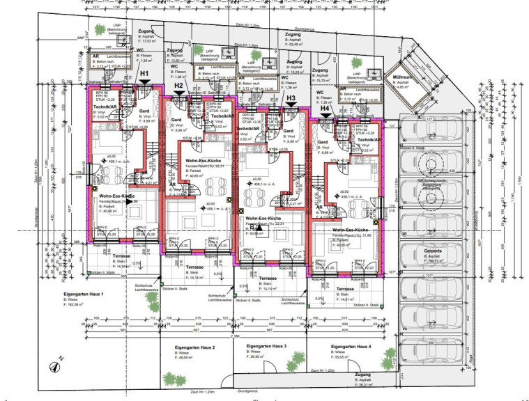
eine Reihenausanlage mit 4 Einheiten.



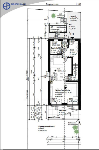
z. B. Haus 3 mit einer Wohnnutzfläche mit 116,70 m² um € 389.990,-- 



in Belagsfertiger Ausführung lt. Bau- und Leistungsbeschreibung mit:



Luftwärmepumpe für jedes Reihenhaus, Fußbodenheizung, Estrich, Treppe, Rollläden, Kunststoff/Alufenster,



außen komplett fertig, 2 x Autofreistandplätze, Außenbereich mit Zaun, Asphaltierungen, Pflasterungen, 



Vorbereitung einer Leerverrrohrung für eine Photovoltaikanlage pro Haus 



Gerne besprechen wir mit Ihnen die Bau- und Leistungsbeschreibung



Anschlussgebühren für Kanal, Wasser und Strom sind inkludiert



EG: Garderobe, WC, Technikraum, Küche mit offenem Wohn-Essbereich, AR unter Treppe



OG: Elternschlafzimmer mit großzügigem Platz für Kleiderschränke, Bad mit 9 m², WC, 2 x Kinderzimmer



Die Anlage mit insgesamt 4 Reihenhäusern wird im Wohnungseigentum errichtet.



Kaufpreise:



Eckreihenhaus Top 1    € 399.990,--  =   belagsfertig      inkl. 2 x Autofreistandplätze



Reihenhaus Top 2         € 393,000,--  =   belagsfertig      inkl. 2 x Autofreistandplätze                                                             



Reihenhaus Top 3        € 389.990,--  =   belagsfertig      inkl. 2 x Autofreistandplätze                                                                                    



Eckreihenhaus Top 4     € 396.990,--  =   belagsfertig      inkl. 2 x Autofreistandplätze                               



Mehrpreis für die Ausführung Schlüsselfertig: die Bodenbeläge, Innentüren komplett, Wand- und Bodenfliesen, Spachteln, Malen, Treppenbelag und die Sanitärobjekte mit Armaturen



inklusive  Material und Arbeit beträgt:  € 47.913,--



Sonderausstattung:



Kamin einzügig:  € 3.500,--



Doppelcarport ca. 5 x 5,5 lfm = € 12.672,--



Terrassenüberdachung ca. 15 m² = € 6.912,--



Eingangsüberdachung ca. 2 m² = € 2.450,--



Abstellraum Außen ca. 3,70 m²  = € 2.450,--





Kaufnebenkosten: 3,5 % Grunderwerbssteuer, 1,1 % Eintragungsgebühr (kann unter bestimmten Voraussetzungen entfallen), 



Provisionsfrei  



Haben Sie eine Immobilie zu verkaufen ? Ich erstelle eine Marktwertanalyse damit Sie wissen, welchen Wert Ihre Immobilie hat. 



Für ein unverbindliches Beratungsgespräch stehe ich Ihnen gerne zur Verfügung.



Hugo Ebner, Tel. Nr. 0676/6330370





Als Wohnort bietet die Marktgemeinde Maria Saal ihren Bürgerinnen und Bürgern jegliche notwendige Infrastruktur in den Bereichen Familie, Bildung & Soziales. Und ist damit ein beliebter Wohnort für Familien.



Unter Marktgemeinde Maria Saal - Geko digital (maria-saal.gv.at) finden Sie alle Informationen über diese Gemeinde

Eckdaten Objektnr. 674

Art: Haus - Reihenhaus
Land: Österreich
Baujahr: 2026
Alter: Neubau
Kaufpreis: 389.990,00
Wohnfläche: 116,70 m²
Zimmer: 4
Bäder: 1
WC: 2
Terrassen: 1
Stellplätze: 2
Heizwärmebedarf: 37,00 kWh/m²a
fGEE: 0,65
Immobilie merken Exposé

Ausstattung

Fußbodenheizung


Immobilie anfragen


Ihre persönliche Beratung

Hugo Ebner Immobilien

Hugo Ebner

Hugo Ebner Immobilien

H 0676 6330370