Geförderte Reihenhäuser/Doppelhäuser in Miete mit Kaufoption
Haus
- Reihenmittelhaus,
3370
Ybbs an der Donau
,
Theinstettner Straße 5
Die Stadtgemeinde Ybbs an der Donau ist im Mostviertel (NÖ) – ca. 50 Kilometer westlich von St. Pölten - gelegen und hat aktuell ca. 5600 Einwohner. Ybbs an der Donau ist ca. 2 Kilometer nördlich von der Autobahn A1 positioniert, welche die West-Ost-Richtung über Linz, St. Pölten nach Wien verbindet. Es gibt zahlreiche florierende Betriebe (z.B. Wasserkraftwerk, Sägewerk, Therapiezentrum, Entsorgungsunternehmen) und genügend Einkaufsmöglichkeiten sowie Nahversorger ca. 4 Autominuten vom Grundstück entfernt. Weiters gibt es eine Volksschule, eine Neue Mittelschule, eine Handelsakademie/Handelsschule sowie eine Sicherheitsakademie. Die Stadtgemeinde bietet ein ganz besonderes Ambiente und ist eine Stadt mit Lebensqualität: https://www.ybbs.gv.at/
Beschreibung der Immobilie
Geförderte Reihenhäuser/Doppelhäuser in Miete mit Kaufoption
Der Finanzierungsbetrag umfasst die Grund- und Baukosten und sind vor Anmietung zu bezahlen.
Kurz im Überblick:
- Mietvertrag ohne Befristung
- Kaufoption ab 5 Jahre nach Mietbeginn möglich
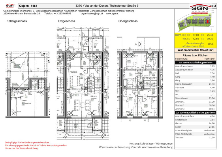
- 13 Reihenhäuser mit Eigengarten/Terrasse (zwischen 66 m² -177 m²) und Keller (ca. 30 m²)
- 2 PKW-Stellplatz zugeordnet
- Wohnfläche auf 2 Etagen mit Zwischenetagen rund 110 m² Wohnfläche
- 3 Schlafzimmer- 1 Wohnzimmer- 2 innenliegende Abstellräume (davon 1 Schrankraum)- 1 außenliegender Abstellraum- 2 WC jeweils im EG und 1.OG- Badezimmer mit Badewanne und extra Dusche
- Niedrigenergiehaus
- Ziegelmauerwerk & Stahlbeton
- Vollwärmeschutzsystem
- Hochwertige Kunststofffenster mit Isolierverglasung
- Sonnenschutz Rollläden Ausrichtung Süd-West
- Luft-Wasser-Wärmepumpe mit 220 Liter Warmwasserspeicher
- PV-Anlage
- Fußbodenheizung
- Digitale SAT-Anlage (Astra-Satellit)
- Kontrollierte Wohnraumbelüftung
***Die Häuser werden unter Einhaltung der Förderungsrichtlinien vergeben***
Für Detailauskünfte stehen wir gerne zur Verfügung.
Der Immobilienmakler erklärt, dass er – entgegen dem in der Immobilienwirtschaft üblichen Geschäftsgebrauch des Doppelmaklers – einseitig nur für den Vermieter tätig ist.
Infrastruktur / Entfernungen
Gesundheit
Arzt <600m
Apotheke <1.425m
Kinder & Schulen
Schule <1.425m
Kindergarten <1.150m
Universität <6.375m
Nahversorgung
Supermarkt <1.275m
Bäckerei <1.475m
Einkaufszentrum <1.425m
Sonstige
Bank <1.400m
Post <950m
Geldautomat <1.625m
Polizei <1.400m
Verkehr
Bus <325m
Autobahnanschluss <3.075m
Bahnhof <2.700m
Angaben Entfernung Luftlinie / Quelle: OpenStreetMap
Eckdaten Objektnr. 14641002
Art: | Haus - Reihenmittelhaus |
Land: | Österreich |
Baujahr: | 2022 |
Zustand: | Erstbezug |
Alter: | Neubau |
Gesamtmiete: | 1.038,38 € |
Kaltmiete (netto): | 734,49 € |
Kaltmiete: | 943,98 € |
Provision: | Gemäß Erstauftraggeberprinzip bezahlt der Abgeber die Provision. |
Betriebskosten: | 209,49 € |
MwSt Gesamt: | 94,40 € |
Wohnfläche: | 110,13 m² |
Zimmer: | 4 |
Bäder: | 1 |
WC: | 2 |
Terrassen: | 1 |
Stellplätze: | 2 |
Garten: | 69,00 m² |
Keller: | 29,22 m² |
Heizwärmebedarf: | B 42,80 kWh/m²a |
fGEE: | 0,64 |
Ausstattung
Fliesen, Laminatboden, Fußbodenheizung, Badewanne, Dusche, Kabel/Satelliten-TV, Parkplatz
Ihre persönliche Beratung

Fabian Männl, MA
SGN Gemeinnützige Wohnungs- u. Siedlungsgenossenschaft Neunkirchen reg.Gen.m.b.H.
T +43 2635 64756 14
H +43 664 8347376