Heizkosten inkludiert - 2-Zimmer Wohnung mit Loggia

Wohnung , 2265 Drösing


Drösing

Beschreibung der Immobilie

Heizkosten inkludiert - 2-Zimmer Wohnung mit Loggia

Charmante Wohnung in ruhiger Lage im idyllischen Dorf Drösing mit Loggia und Gemeinschaftsraum



Willkommen in Ihrem potenziellen neuen Zuhause, das sich in einer malerischen und ruhigen Umgebung im charmanten Dorf Drösing befindet. Diese Wohnung bietet nicht nur alle Annehmlichkeiten für ein komfortables Wohnen, sondern auch die Möglichkeit, die Gemeinschaft der Bewohner zu genießen. Hier sind die besonderen Merkmale dieser bezaubernden Wohnung:



1. Ruhige Lage im Dorf Drösing:



  • Diese Wohnung befindet sich in einer äußerst ruhigen und friedlichen Umgebung im Herzen des malerischen Dorfes Drösing. Genießen Sie die Ruhe und Gelassenheit der ländlichen Lebensweise.


2. Gemütliche Wohnküche und geräumiges Schlafzimmer:



  • Die Wohnung besteht aus einer einladenden Wohnküche, die nicht nur Platz zum Kochen bietet, sondern auch ein gemütliches Ambiente für gesellige Zusammenkünfte. Ein geräumiges Schlafzimmer sorgt für erholsamen Schlaf und Entspannung.


3. Funktionale Raumaufteilung:



  • Neben der Wohnküche und dem Schlafzimmer bietet die Wohnung einen Vorraum und einen praktischen Abstellraum für zusätzlichen Stauraum und Organisation.


4. Komfortables Badezimmer mit Wanne und separates WC:



  • Das Badezimmer ist mit einer entspannenden Badewanne ausgestattet, ideal für erholsame Momente nach einem langen Tag. Ein separates WC bietet zusätzliche Privatsphäre und Komfort.


5. Große Loggia für entspannte Stunden im Freien:



  • Eine großzügige Loggia lädt zum Verweilen im Freien ein und bietet einen malerischen Blick auf die umliegende Landschaft. Der perfekte Ort, um die Natur zu genießen und frische Luft zu tanken.


6. Außenabstellraum und Carport:



  • Anstelle eines herkömmlichen Kellerabteils bietet diese Wohnung einen praktischen Außenabstellraum sowie einen Carport für Ihr Fahrzeug, um zusätzlichen Stauraum und Schutz zu bieten.


7. Fahrradraum für aktive Bewohner:



  • Ein Fahrradraum steht zur Verfügung, um Ihre Fahrräder sicher aufzubewahren und die umliegende Gegend auf zwei Rädern zu erkunden.


8. Gemeinschaftsraum für gemeinsame Zeit mit anderen Mietern:



  • Im Gebäude befindet sich ein Gemeinschaftsraum, der allen Mietern zur Verfügung steht. Hier können Sie sich treffen, sich austauschen und gemeinsame Aktivitäten planen.


Diese charmante Wohnung bietet nicht nur ein komfortables und funktionales Zuhause, sondern auch die Möglichkeit, das ländliche Leben im idyllischen Dorf Drösing in vollen Zügen zu genießen. Kontaktieren Sie uns gerne für weitere Informationen oder um einen Besichtigungstermin zu vereinbaren. Wir freuen uns darauf, Ihnen diese einzigartige Gelegenheit näher zu bringen!



Angebot für Neumieter - monatliche Miete ist für 2 Jahren um 25% gesenkt. 





HINWEIS: sämtliche Vorschreibungskosten können sich aufgrund von Index, Betriebskosten und Darlehensanpassungen ändern!





Alle freie Wohnungen in Drösing finden Sie auf unserer Homepage www.sgn.at.




Der Immobilienmakler erklärt, dass er – entgegen dem in der Immobilienwirtschaft üblichen Geschäftsgebrauch des Doppelmaklers – einseitig nur für den Vermieter tätig ist.

Infrastruktur / Entfernungen

Gesundheit
Arzt <5.500m
Apotheke <8.000m

Kinder & Schulen
Schule <4.500m
Kindergarten <500m

Nahversorgung
Supermarkt <500m
Bäckerei <5.000m

Sonstige
Bank <500m
Geldautomat <500m
Polizei <8.000m
Post <8.500m

Verkehr
Bus <500m
Bahnhof <1.000m

Angaben Entfernung Luftlinie / Quelle: OpenStreetMap

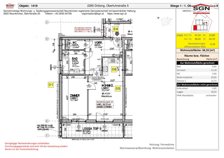
Eckdaten Objektnr. 141909

Art: Wohnung
Land: Österreich
Baujahr: 2019
Zustand: Gepflegt
Alter: Neubau
Gesamtmiete: 826,56
Kaltmiete (netto): 393,41 €
Kaltmiete: 689,96 €
Provision: Gemäß Erstauftraggeberprinzip bezahlt der Abgeber die Provision.
Betriebskosten: 296,55 €
Heizkosten: 56,33 €
MwSt Gesamt: 80,27 €
Wohnfläche: 56,33 m²
Gesamtfläche: 69,63 m²
Zimmer: 2
Bäder: 1
WC: 1
Keller: 2,83 m²
Heizwärmebedarf:  B  28,00 kWh/m²a
fGEE:  A  0,73
Immobilie merken Exposé

Ausstattung

Fliesen, Laminatboden, Fernwärme, Zentralheizung, Wohnküche / offene Küche, Badewanne, Kabel/Satelliten-TV


Immobilie anfragen


Ihre persönliche Beratung

SGN Gemeinnützige Wohnungs- u. Siedlungsgenossenschaft Neunkirchen reg.Gen.m.b.H.

Silvia Oroszova

SGN Gemeinnützige Wohnungs- u. Siedlungsgenossenschaft Neunkirchen reg.Gen.m.b.H.

T +43 664 882 856 42