Betreutes Wohnen im Herzen von Blumau-Neurißhof
Wohnung
,
2602
Blumau-Neurißhof
,
Kasernenstraße 6
Zentrum
Beschreibung der Immobilie
Betreutes Wohnen im Herzen von Blumau-Neurißhof
KEIN Pensionisten- oder Altersheim*** Sondern modernes und barrierefreies Wohnen im Herzen von Blumau-Neurißhof
Diese 1-ZimmerLOGGIAwohnung im Sinne des "betreuten Wohnen" besteht aus:
1 großen Wohn- Essbereich mit offener Küche und Schlafbereich, 1 barrierefreies Badezimmer mit ebener Dusche und WC, 1 großer Abstellraum, 1 Vorzimmer.
Weiters ist der Wohnung ein außenliegender Abstellraum zugeordnet.
Ein paar Eckdaten im Überblick:
- Lift
- Kunststofffenster
- Innenjalousien
- Pelletsheizung
- Solar-Kollektoren
- kontrollierte Wohnraumlüftung
- Wasserfilter
- Ein Heizkostenakonto ist bereits in der Miete inkludiert
Aufgrund der aktuellen Wirtschaftslage, bieten wir bis 31.12.2025 eine reduzierte Miete an.
Infrastruktur / Entfernungen
Gesundheit
Arzt <350m
Apotheke <2.975m
Krankenhaus <9.075m
Klinik <7.200m
Kinder & Schulen
Kindergarten <125m
Schule <3.100m
Nahversorgung
Supermarkt <225m
Bäckerei <350m
Einkaufszentrum <6.175m
Sonstige
Bank <2.950m
Geldautomat <2.950m
Post <3.700m
Polizei <3.850m
Verkehr
Bus <275m
Bahnhof <2.150m
Autobahnanschluss <6.375m
Straßenbahn <8.975m
Flughafen <5.575m
Angaben Entfernung Luftlinie / Quelle: OpenStreetMap
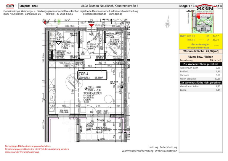
Eckdaten Objektnr. 126600004
Art: | Wohnung |
Land: | Österreich |
Baujahr: | 2012 |
Alter: | Neubau |
Gesamtmiete: | 710,51 € |
Kaltmiete (netto): | 353,62 € |
Kaltmiete: | 598,84 € |
Betriebskosten: | 245,22 € |
Heizkosten: | 43,16 € |
MwSt Gesamt: | 68,51 € |
Wohnfläche: | 56,56 m² |
Zimmer: | 1 |
Heizwärmebedarf: | 25,74 kWh/m²a |
Ausstattung
Fliesen, Laminatboden, Alternativ, Zentralheizung, Wohnküche / offene Küche, Dusche, Betreutes Wohnen, Kabel/Satelliten-TV
Ihre persönliche Beratung

Rudolf Georg Kochesser, MA
SGN Gemeinnützige Wohnungs- u. Siedlungsgenossenschaft Neunkirchen reg.Gen.m.b.H.
T +43 2635 64756 33
H +43 664 8347374