ERSTBEZUG „ein viertel grün“ in Wiener Neustadt - 4 Zimmer Familientraum

Flat , 2700 Wiener Neustadt , Stadionstraße


Property description

× These contents are currently available in german only. Please get in touch with the property's agent for more information.

ERSTBEZUG „ein viertel grün“ in Wiener Neustadt - 4 Zimmer Familientraum

Willkommen in Ihrem neuen Zuhause in Wiener Neustadt!



In unserem erstklassigen Wohnquartier bleiben keine Wünsche offen! Hier trifft modernes und zentrumnahes Wohnen auf naturnahe Umgebung - ideal für junge Familien, Paare sowie Einzelpersonen die Wert auf Lebensqualität, Gemeinschaft und Nachhaltigkeit legen.



Familien sind hier bestens versorgt. Direkt im Quartier befindet sich ein moderner Kindergarten. Hier werden Ihre Kleinen optimal betreut - und das ganz in Ihrer Nähe. Nach dem Kindergarten können sich die Kinder noch auf den diversen Spielgeräten austoben. Für die Eltern ist mit Sitzgelegenheiten gesorgt.



Ein eigener Quartierstreff auf dem Areal sorgt für regen Austausch unter Nachbarn und lässt garantiert neue Freundschaften bei Groß und Klein entstehen. 



Das gesamte Areal ist verkehrsberuhigt und umgeben von Grünflächen. Sie müssen jedoch aufgrund der hervorragenden Lage nicht auf die Annehmlichkeiten der Stadt verzichten. 



Sie genießen all die Vorzüge eines urbanen Lebensstil mitten im Grünen!



Hier die Details zu unserem Projekt im Überblick:



  • 39 geförderte Mietwohnungen
  • 2 - 4 Zimmer, ca. 51 m² - 89 m²
  • alle Wohnungen mit Eigengarten und Terrasse bzw. Balkon oder Dachterrasse
  • hochwertige Laminatböden
  • gut durchdachte Grundrisse
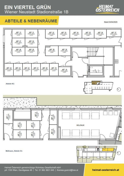
  • Tiefgaragenstellplatz, bereits in der Miete inkludiert
  • Fahrrad- und Kinderwageneinstellräume
  • Einlagerungsräume
  • Personenaufzug
  • Müllraum
  • effiziente Photovoltaikanlage am Dach
  • kontrollierte Wohnraumlüftung mit Wärmerückgewinnung und zentraler Lüftungsanlage
  • HWB Wert ca. 23,66 kWh/m²a, fGEE ca. 0,63
  • Fertigstellung voraussichtlich Frühjahr 2026




Anm.: Die winterlichen Bilder wurden mittels KI erstellt.

Willkommen in Ihrem neuen Zuhause!



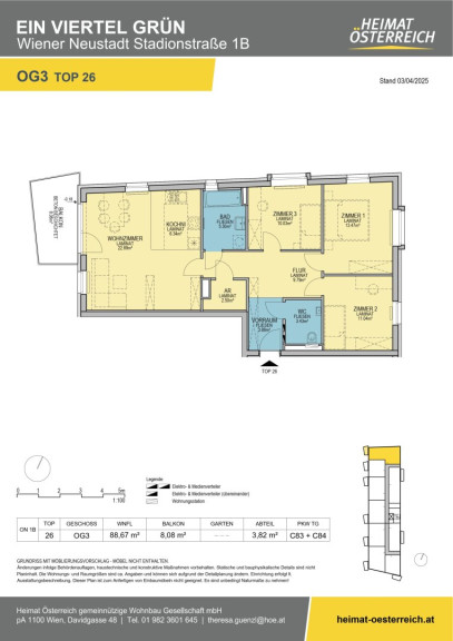
Diese moderne 4-Zimmer-Wohnung im 3. Obergeschoss bietet auf ca. 89 m² eine perfekte Kombination aus großzügigem Wohnraum und erstklassiger Lage.



Genießen Sie den Vorteil eines Erstbezugs und ziehen Sie in eine frisch gestaltete Wohnung, die modernen Wohnkomfort auf höchstem Niveau bietet.



Der durchdachte Grundriss dieser Wohnung ermöglicht eine optimale Nutzung. Ob modernes Wohnzimmer, stilvolles Schlafzimmer oder funktionale Kinderzimmer – hier findet jeder seinen persönlichen Rückzugsort. 



Das geräumige Wohnzimmer ist ein Highlight und bietet viel Platz für Ihre Einrichtungsideen. Die Kochnische fügt sich perfekt in den offenen Wohnbereich ein und schafft so eine angenehme, harmonische Atmosphäre.



Vom Wohnzimmer gelangen Sie auf den herrlichen Balkon. Hier können Sie das Sonntagsfrühstück mit der Familie genießen oder gesellige Stunden mit Freunden verbringen.



Alle Zimmer sind zentral vom Vorzimmer aus, über einen Flur begehbar.



Ein Abstellraum sorgt für zusätzlichen Stauraum, ideal für alles, was ordentlich verstaut werden muss.



Das Badezimmer ist modern verfliest und mit einer Badewanne ausgestattet. Ein Handwaschbecken und ein Waschmaschinenanschluss runden die Ausstattung ab. Besonders schön ist das Fenster, das für Tageslicht sorgt.



Das WC ist ebenfalls modern verfliest.



Mit zwei Tiefgaragenstellplätzen ist bestens für Ihre PKWs gesorgt. Diese sind bereits in der Miete inkludiert!



Befristung: unbefristet, 1 Jahr Kündigungsverzicht 3 Monate Kündigungsfrist



Bezug: voraussichtlich Frühjahr 2026



Energiekennzahlen:  Der Heizwärmebedarf  beträgt ca. 23,66 kWh/m²a Klasse B und der Gesamtenergieeffizienz-Faktor ca. 0,63 Klasse A+.



Die monatliche Miete beläuft sich auf € 1.190,31 inkl. BK und Ust. und der einmalige Finanzierungsbeitrag beträgt € 31.034,50.



Lassen Sie sich diese Gelegenheit nicht entgehen – Ihr neues Zuhause in Wiener Neustadt wartet auf Sie!



Hier geht es zu weiteren Mietwohnungen: 
Geförderte Mietwohnungen - ein viertel grün



Anm.: Die winterlichen Bilder wurden mittels KI erstellt.

Noch nichts gefunden? Wir informieren Sie über geeignete Immobilienangebote noch vor allen anderen.
Legen Sie jetzt Ihren individuellen Suchagenten unter folgendem Link an. Wir schicken Ihnen passende Immobilien exklusiv vorab zu.
Suchagent anlegen - https://heimat-oesterreich.service.immo/registrieren/de

Infrastruktur / Entfernungen

Gesundheit
Arzt <1.000m
Apotheke <250m
Klinik <2.500m
Krankenhaus <1.250m

Kinder & Schulen
Schule <250m
Kindergarten <500m
Höhere Schule <1.750m
Universität <2.000m

Nahversorgung
Supermarkt <250m
Bäckerei <750m
Einkaufszentrum <250m

Sonstige
Bank <750m
Geldautomat <750m
Post <750m
Polizei <750m

Verkehr
Bus <250m
Autobahnanschluss <3.250m
Bahnhof <1.250m
Flughafen <2.250m

Angaben Entfernung Luftlinie / Quelle: OpenStreetMap

Summary, object # 5029

Type: Flat
Country: Austria
Built: 2025
Condition: Erstbezug
Build type: Neubau
Total rent: 1,190.31
Rent excl. utility (net): €1,190.31
rent excluding heating bills: €1,190.31
Provision: Provisionsfrei
Living space: 88.67 m²
Rooms: 4
Baths: 1
Toilets: 1
Balcony: 1
car space: 2
basement: 3.82 m²
Heating consumption:  A  23.66 kWh/m²a
fGEE:  A+  0.63
Exposé

Ausstattung

Tiles, Laminate floor, Lift, Bath with window, Bathtub, Basement car park


Immobilie anfragen


Ihre persönliche Beratung

Theresa Günzl

Heimat Österreich gemeinnützige Wohnungs- und Siedlungsgesellschaft m.b.H.

T +431 9823601 645

M 0676 3717805