Moderne Büro- oder Praxisfläche in Linz – Top Lage, neuwertig & perfekt ausgestattet!

Office - Office space, 4020 Linz


Property description

× These contents are currently available in german only. Please get in touch with the property's agent for more information.

Moderne Büro- oder Praxisfläche in Linz – Top Lage, neuwertig & perfekt ausgestattet!

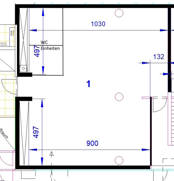
Entdecken Sie Ihre neue Büro- oder Praxiseinheit im Herzen von Linz, Oberösterreich! Diese neuwertige Bürofläche von 121,28 m² im Erdgeschoss bietet Ihnen nicht nur eine hervorragende Lage, sondern auch zahlreiche Annehmlichkeiten, die Ihren Arbeitsalltag erleichtern werden.



Mit einer monatlichen Miete von 1.506,30 € genießen Sie ein modernes Ambiente, das sowohl für Büros als auch für Praxen bestens geeignet ist. Die großzügige Fläche ist optimal aufgeteilt und ermöglicht Ihnen eine individuelle Gestaltung nach Ihren Bedürfnissen.



Die Büroeinheit ist mit einem Doppelboden ausgestattet, der nicht nur für eine angenehme Raumakustik sorgt, sondern auch eine einfache Verlegung von Elektroleitungen und Datenverkabelungen ermöglicht. Der Kunststoffboden ist pflegeleicht und bietet eine ansprechende Optik.



Ein weiteres Highlight sind die zwei WCs, die Ihnen und Ihren Mitarbeitern zusätzlichen Komfort bieten. Zudem sorgt die Fernwärme und Zentralheizung für ein angenehmes Raumklima, sodass Sie sich auf das Wesentliche konzentrieren können.



Genießen Sie den Blick auf die Stadt und die umliegende Grünlandschaft, der Ihnen eine inspirierende Arbeitsatmosphäre bietet. Der Personenaufzug erleichtert den Zugang zu Ihrer Büroeinheit, während ein professioneller Wachdienst für zusätzliche Sicherheit sorgt.



Die Verkehrsanbindung könnte besser nicht sein: Die Haltestelle für öffentliche Verkehrsmittel ist gleich um die Ecke, der Bahnhof ist schnell erreichbar und der Autobahnanschluss ermöglicht Ihnen eine unkomplizierte Anreise, egal von wo Sie kommen.



Die Umgebung ist ideal für Ihre Mitarbeiter und Kunden. In unmittelbarer Nähe finden Sie alles, was das Herz begehrt: Ärzte, Apotheken, Kindergärten, Schulen, eine Universität, Supermärkte und Bäckereien. So sind Sie bestens versorgt und können die kurzen Wege nutzen, um Ihre Pausen optimal zu gestalten.



Diese Büro- und Praxiseinheit in Linz bietet Ihnen die perfekte Kombination aus modernem Flair, zentraler Lage und hervorragender Infrastruktur. Lassen Sie sich diese Gelegenheit nicht entgehen und vereinbaren Sie noch heute einen Besichtigungstermin! Ihr neues Arbeitsumfeld wartet auf Sie!

Infrastruktur / Entfernungen

Gesundheit
Arzt <1.000m
Apotheke <500m
Klinik <1.500m
Krankenhaus <1.500m

Kinder & Schulen
Kindergarten <500m
Schule <500m
Universität <1.000m
Höhere Schule <1.500m

Nahversorgung
Supermarkt <500m
Bäckerei <500m
Einkaufszentrum <2.000m

Sonstige
Bank <500m
Geldautomat <500m
Post <2.000m
Polizei <1.000m

Verkehr
Bus <500m
Straßenbahn <1.500m
Bahnhof <500m
Autobahnanschluss <500m
Flughafen <3.000m

Angaben Entfernung Luftlinie / Quelle: OpenStreetMap

Summary, object # 2086/25028

Type: Office - Office space
Country: Austria
Condition: Neuwertig
Build type: Neubau
Rent excl. utility (net): €909.60
rent excluding heating bills: €1,255.25
Provision: 3 Bruttomonatsmieten zzgl. 20% USt.
Utility cost: €345.65
Heating costs: €163.73
MwSt Gesamt: €283.80
Total area: 121.28 m²
office area: 121.28 m²
Toilets: 2
Heating consumption:  C  80.00 kWh/m²a
fGEE:  C  1.29
Exposé

Ausstattung

Double bottom, Plastic floor, District heating, Central heating, Lift, Sentry, Data handling cable, Parking lot, Security camera, Tea kitchen


Immobilie anfragen


Ihre persönliche Beratung

IMMOS Immobilien Gerold Stadlhuber

Gerold Stadlhuber

IMMOS Immobilien Gerold Stadlhuber

T 0732/600 100

M 0664/4600100