„Ein Zuhause mit Charakter – großzügige Eigentumswohnung im Herzen der Südstadt“ | ZELLMANN IMMOBILIEN

Flat , 2344 Maria Enzersdorf


Property description

× These contents are currently available in german only. Please get in touch with the property's agent for more information.

„Ein Zuhause mit Charakter – großzügige Eigentumswohnung im Herzen der Südstadt“ | ZELLMANN IMMOBILIEN

🌿 „Maria Enzersdorf trifft Mödling – stilvolle Eigentumswohnung in begehrter Grenzlage“




💎 BESCHREIBUNG



Inmitten einer gepflegten, ruhigen Wohnanlage der Südstadt präsentiert sich diese großzügige Eigentumswohnung mit zeitloser Architektur und angenehmem Wohnkomfort. Die hellen Räume, die gelungene Grundrissaufteilung und die östlich ausgerichtete Loggia machen dieses Zuhause zu einer attraktiven Gelegenheit für Eigennutzer wie auch für Anleger.



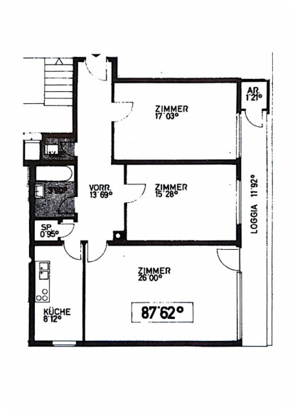
Bereits beim Betreten spürt man die Großzügigkeit: Ein einladender Vorraum eröffnet den Zugang zu allen Räumen – drei separat begehbare Zimmer, eine Küche mit Fenster, Bad, separates WC sowie ein praktischer Abstellraum. Besonders hervorzuheben ist das rund 26 m² große Wohnzimmer mit direktem Zugang zur Loggia, die einen herrlichen Blick ins Grüne bietet.



Die Wohnung befindet sich in einem sehr gepflegten Zustand. In den letzten Jahren wurden zahlreiche Sanierungendurchgeführt – unter anderem:




  • Erneuerung der Sanitärinstallationen und Verrohrungen (2024)



  • Austausch der Fenster (3-fach-Verglasung, 2015)



  • Neue Bodenbeläge und Malerarbeiten



  • Anschluss an Fernwärme mit zentraler Regelung



  • moderne Sicherheitstüre




Ein Lift ist im Haus vorhanden. Die Nutzung wurde von der Eigentümergemeinschaft vorgesehen und sorgt künftig für barrierearmen Komfort.

Hier müsste man sich, wenn gewünscht, in die "Liftgemeinschaft" einkaufen.




🛋️ RAUMAUFTEILUNG




  • Vorraum: ca. 13,7 m²



  • Küche: ca. 8,1 m²



  • Wohnzimmer: ca. 26,0 m²



  • Schlafzimmer 1: ca. 17,0 m²



  • Schlafzimmer 2: ca. 15,3 m²



  • Abstellraum: ca. 1,2 m²



  • Loggia: ca. 11,9 m²




👉 Gesamtwohnnutzfläche: ca. 93,58 m² 




🌿 LAGE UND UMGEBUNG



Die Lage in der Ottensteinstraße kombiniert ruhiges Wohnen im Grünen mit idealer Nahversorgung. Supermärkte, Cafés, Apotheken und Schulen sind in wenigen Minuten fußläufig erreichbar. Die Anbindung an den öffentlichen Verkehr ist ausgezeichnet – die Bahnhöfe Maria Enzersdorf-Südstadt und Wiener Neudorf liegen nur rund 800 m entfernt, Buslinien verkehren in direkter Nähe.



Freizeit- und Erholungsgebiete wie der Hyrtlpark oder der Liechtensteinpark befinden sich im Nahbereich. Auch die beliebte SCS ist in wenigen Fahrminuten erreichbar.

Ein perfektes Umfeld für alle, die Ruhe suchen, aber dennoch stadtnah leben möchten.




🏢 GEBÄUDE & GEMEINSCHAFT



Die Liegenschaft wurde 1971 in solider Stahlbetonbauweise errichtet und wird von der WET-Gruppe professionell verwaltet.

Aus dem Protokoll der Eigentümerversammlung 2023 ergeben sich folgende aktuelle Maßnahmen:




  • Umbau der Heizungsanlage auf autarke Fernwärmestation (EVN) - ✅



  • Geplante Erneuerung der Stiegenhausmalerei- ✅



  • Sanierung von Sockelleisten, Fliesen und Fenstern in Gemeinschaftsbereichen- ✅



  • Neugestaltung des Fahrradraums- ✅





💶 BETRIEBSKOSTEN



Betriebskosten € 177,84
Instandhaltung € 22,46
Verwaltung € 28,65
Heizung € 64,18
Gesamt inkl. USt.        € 326,62



📏 WESENTLICHE DATEN



Objektart Eigentumswohnung
Baujahr 1971
Wohnfläche                  ca. 87,6 m²
Loggia ca. 11,9 m²
Zimmer 3
Heizung Fernwärme
Zustand sehr gepflegt
Lift vorhanden
Stockwerk Hochparterre
Bezug nach Vereinbarung



📍 HIGHLIGHTS AUF EINEN BLICK




  • Ruhige, grüne Wohnlage in Maria Enzersdorf



  • Großzügiger Grundriss mit 3 getrennt begehbaren Zimmern



  • schöne Loggia mit Blick ins Grüne



  • Umfangreiche Sanierungen bereits durchgeführt



  • Lift im Haus



  • Fernwärme & niedrige Betriebskosten



  • Gepflegte Eigentümergemeinschaft





🧾 RECHTLICHER HINWEIS



Bitte kontrollieren Sie auch Ihren SPAM- bzw. WERBE-Ordner, da E-Mails manchmal dort landen können. Wir antworten in der Regel innerhalb weniger Stunden – auch am Wochenende. Teilen Sie uns gerne Ihre Telefonnummer mit, damit wir Sie zusätzlich per SMS über die Versendung des Exposés informieren können.



Dieses Objekt wird unverbindlich und freibleibend angeboten. Alle Angaben basieren auf Informationen des Eigentümers sowie dem vorliegenden Gutachten und wurden mit größter Sorgfalt zusammengestellt. Für die Richtigkeit, Vollständigkeit und Aktualität dieser Angaben wird keine Gewähr übernommen. Änderungen, Irrtümer und Zwischenverkauf bleiben ausdrücklich vorbehalten. Maßangaben sind Circa-Angaben. Das Exposé stellt kein verbindliches Angebot dar.



Bei erfolgreichem Abschlussfall fällt eine Käuferprovision in Höhe von 3 % des Kaufpreises zzgl. 20 % USt. an – gemäß Immobilienmaklerverordnung BGBI. 262 und 297/1996.

Noch nichts gefunden? Wir informieren Sie über geeignete Immobilienangebote noch vor allen anderen.
Legen Sie jetzt Ihren individuellen Suchagenten unter folgendem Link an. Wir schicken Ihnen passende Immobilien exklusiv vorab zu. 



-> Suchagent anlegen


Der Vermittler ist als Doppelmakler tätig.

ZELLMANN IMMOBILIEN GmbH
Vertrauen. Service. Qualität.

Infrastruktur / Entfernungen

Gesundheit
Arzt <500m
Apotheke <500m
Klinik <2.000m
Krankenhaus <1.000m

Kinder & Schulen
Schule <500m
Kindergarten <500m
Universität <9.500m
Höhere Schule <2.500m

Nahversorgung
Supermarkt <500m
Bäckerei <500m
Einkaufszentrum <1.000m

Sonstige
Bank <500m
Geldautomat <500m
Post <500m
Polizei <1.500m

Verkehr
Bus <500m
U-Bahn <4.500m
Straßenbahn <5.500m
Bahnhof <1.000m
Autobahnanschluss <2.000m

Angaben Entfernung Luftlinie / Quelle: OpenStreetMap

Summary, object # 24351

Type: Flat
Country: Austria
Built: 1971
Condition: Voll_saniert
Build type: Neubau
Purchase price: 320,000.00
Provision: 3% des Kaufpreises zzgl. 20% USt.
Utility cost: €177.84
Heating costs: €64.18
MwSt Gesamt: €33.48
Living space: 87.62 m²
Usable space: 93.58 m²
Rooms: 3.50
Baths: 1
Toilets: 1
Heating consumption:  B  47.13 kWh/m²a
fGEE:  C  1.14
Exposé

Ausstattung

Plank floor, Stone floor, District heating, Central heating, Fitted kitchen, Lift, East balcony, Bathtub, Cable/satellite TV


Immobilie anfragen


Ihre persönliche Beratung

ZELLMANN IMMOBILIEN GmbH | Vertrauen. Service. Qualität.

Christian Zellmann

ZELLMANN IMMOBILIEN

M +43 699 15 15 22 00