Gründerzeitcharme mit Rendite über 4%

Wohnung , 1100 Wien , Senefeldergasse 35


Beschreibung der Immobilie

Gründerzeitcharme mit Rendite über 4%

Alle verfügbaren Wohnungen finden Sie unter: www.accenta-immo.at/sen35



Das Projekt Senefeldergasse 35 vereint historischen Charme mit modernem Wohnkomfort.

Das gesamte Haus wurden umfassend renoviert, um zeitgemäße Wohnstandards zu erfüllen und gleichzeitig den ursprünglichen Charakter des Gebäudes zu bewahren. Dabei lag besonderes Augenmerk auf der Erhaltung historischer Elemente, ergänzt durch moderne Annehmlichkeiten. Insgesamt umfasst das Projekt 18 Wohnungen, von denen 13 über Außenflächen wie Balkone oder Terrassen verfügen.



Moderne Apartments für Kurzzeit- und Langzeitvermietung mit professionellem Betreiber für Kurzzeitvermietung und Vermietungs-Service.
Acht Wohnungen des Projekts verfügen über eine Beherbergungswidmung und werden mit einem Betreiber-Konzept für die Kurzzeitvermietung angeboten. Die übrigen Wohneinheiten sind für die Langzeitvermietung vorgesehen.



Sorglos-Vermietungs-Konzept | Betreiber für Kurzzeitvermietung | Mietenpool - das Konzept einfach erklärt
Ein Käufer erwirbt eine Wohnung und ist grundbücherlicher Eigentümer. Übliche Pflichten und Aufgaben von Vermietern wie Mietersuche, Kontrolle der Zahlungseingänge, Abrechnung der Betriebskosten, berechnen der Index-Anpassungen, Ansprechperson für Fragen / Reklamationen / Anliegen von Mietern, Kosten bei Leerstand, Maklerkosten bei Neuvermietung, Instandhaltungskosten und MRG-Einschränkungen, entfallen. Alle Vermieteraufgaben übernimmt ein renommierter Betreiber und Spezialist für Kurzzeitvermietung. Der Betreiber trägt sämtliche Betriebs-, Verbrauchs-, Energie- und Instandhaltungskosten.



Die Mieteinnahmen werden über einen gemeinsamen Mietenpool prozentual auf Basis eines speziell errechneten „Rendite-Nutzwertes“ unter den Eigentümern verteilt. Dieser speziell berechnete Wert sorgt für volle Transparenz und garantiert jedem Eigentümer die gleiche Rendite.



Die Kombination der Kurzzeitvermietung mit Betreiber und dem Mietenpool-System bedeutet somit:



  • Überdurchschnittlich hohe Mieteinnahmen / Renditen
  • Stark reduziertes Vermieterrisiko
  • Eigentümer überlässt Vermieteraufgaben dem Betreiber


Dieses Rundum-Sorglos-Paket steht für ein transparentes, renditestarkes und entspanntes Immobilieninvestment.



Zahlen, Daten, kalkulierte Werte | Beispielwohnung



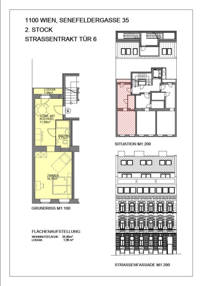
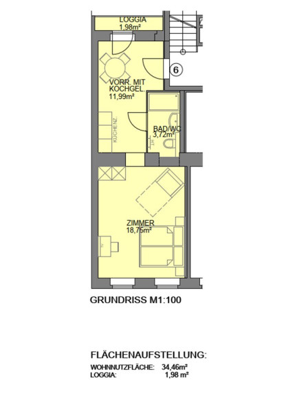
  • 34,44 m² gewichtete Wohnfläche
  • 235.611,- Netto-Kaufpreis exkl. 20% USt
  • 906,- Netto-Miete pro Monat (€ 25,06 pro m²)
  • 4,34% Mietrendite


Kaufpreise
Netto-Kaufpreis* ab  € 180.000,- (zzgl. 20 % USt.)

Möbel- und Einrichtungspaket ist NICHT im Kaufpreis enthalten. Die Preise sind beim jeweiligen Objekt angeführt.




Rechtlicher Hinweis:
Alle Angaben beruhen auf Vergangenheitswerten und Annahmen; sie stellen keine Garantie für zukünftige Entwicklungen dar. Sämtliche Bilder, Visualisierungen, Pläne und KI-generierte Darstellungen, die in den Inseraten verwendet werden, dienen ausschließlich als Referenz. Die gezeigte Einrichtung und Fotos sind beispielhaft und können von der tatsächlichen Ausstattung oder dem Layout abweichen. Alle Angaben beruhen auf Informationen des Verkäufers.

Noch nichts gefunden? Wir informieren Sie über geeignete Immobilienangebote noch vor allen anderen.
Legen Sie jetzt Ihren individuellen Suchagenten unter folgendem Link an. Wir schicken Ihnen passende Immobilien exklusiv vorab zu.

Suchagent anlegen - https://accenta-immobilien.service.immo/registrieren/de


Wir weisen darauf hin, dass zwischen dem Vermittler und dem zu vermittelnden Dritten ein familiäres oder wirtschaftliches Naheverhältnis besteht.


Der Vermittler ist als Doppelmakler tätig.

Sie wollen auch Ihre Immobilien Verkaufen oder Vermieten?

Accenta Immobilien - Ihr Partner für Immobilienvermittlung
www.accenta-immo.at
01/997 12 93

 

Infrastruktur / Entfernungen

Gesundheit
Arzt <50m
Apotheke <175m
Klinik <200m
Krankenhaus <1.825m

Kinder & Schulen
Schule <175m
Kindergarten <375m
Universität <850m
Höhere Schule <2.275m

Nahversorgung
Supermarkt <50m
Bäckerei <150m
Einkaufszentrum <900m

Sonstige
Geldautomat <100m
Bank <100m
Post <100m
Polizei <600m

Verkehr
Bus <150m
U-Bahn <200m
Straßenbahn <100m
Bahnhof <200m
Autobahnanschluss <1.275m

Angaben Entfernung Luftlinie / Quelle: OpenStreetMap

Eckdaten Objektnr. 10294

Art: Wohnung
Land: Österreich
Baujahr: 1900
Zustand: Erstbezug
Möbliert: Voll
Kaufpreis: 245.000,00
Provision: 3% des Kaufpreises zzgl. 20% USt.
Wohnfläche: 34,46 m²
Nutzfläche: 36,44 m²
Gesamtfläche: 36,44 m²
Zimmer: 1
Bäder: 1
Heizwärmebedarf:  B  31,43 kWh/m²a
fGEE:  A  0,77
Immobilie merken Exposé

Ausstattung

Fliesen, Parkett, Fernwärme, Fußbodenheizung, Einbauküche, Personenaufzug, Dusche


Immobilie anfragen


Ihre persönliche Beratung

Accenta Immobilien e.U.

Martina Schütz

Accenta Immobilien e.U.

T +43 1 9971293

H +43 699 17089345

F +43 1 997129310