Winteraktion! Provisionsfrei Wohnen im Jonas am Feld!

Wohnung , 1220 Wien


Beschreibung der Immobilie

Winteraktion! Provisionsfrei Wohnen im Jonas am Feld!

Wir feiern den Winter bis zur Schneeschmelze!



€ 273.894 – ursprünglicher Verkaufspreis



€ 256.091 – aktueller Aktionspreis





 + XXXLutz Gutschein im Wert von € 1.000,00 pro Zimmer!





In der kalten Jahreszeit lassen wir die Preise schmelzen: Beim Kauf einer Eigentumswohnung in einem unserer Objekte in der Berresgasse ersparst du dir bis 31.3.2026 die Nebenkosten* und bekommst so jede Wohnung um 6,5% günstiger.

Darüber hinaus schenken wir dir noch einen XXXLutz - Gutschein im Wert von 1.000 Euro für jedes Zimmer!





Jonas am Feld - Dein Eigentum am Badeteich Hirschstetten



Du bist auf der Suche nach einer Eigentumswohnung in Ruhelage und doch nah am Zentrum?



Dann bist du hier richtig! 



In der aufstrebenden Donaustadt erwartet dich ein modernes Wohnhaus in ruhiger Lage – sofort beziehbar! Die Liegenschaft überzeugt durch ansprechende Architektur, hochwertige Ausstattung und die perfekte Kombination aus urbanem Wohnen und naturnaher Erholung. Der Badeteich Hirschstetten ist wenige Gehminuten entfernt – mehr Natur ist kaum möglich!



Zum Angebot stehen freifinanzierte Wohnungen auf Eigengrund – keine Pacht!



Highlights der Liegenschaft:



  • Provisionsfrei!
  • Elektrische Außenbeschattung 
  • Hochwertiger Parkettboden in allen Wohnräumen
  • Betonkernaktivierung
  • Zusätzliche Elektro-Handtuchheizkörper im Badezimmer
  • Kellerabteil inkludiert
  • Glasfaserinternet für modernste Ansprüche
  • Tiefgaragenstellplatz zum Kauf verfügbar


Lage: Urban leben – grün genießen



Das Projekt Jonas am Feld liegt in einer ruhigen Wohngegend und bietet gleichzeitig eine hervorragende Infrastruktur. Öffentliche Verkehrsmittel (U2, sowie Bus- und Straßenbahnlinien) sind rasch erreichbar. Nahversorger, Schulen und Apotheken befinden sich in Gehdistanz. Für Freizeit und Erholung bieten sich der Badeteich Hirschstetten, die Alte Donau und zahlreiche Parks in unmittelbarer Umgebung an.



Hier wohnst du mit bester Lebensqualität – sofort beziehbar und zukunftssicher!



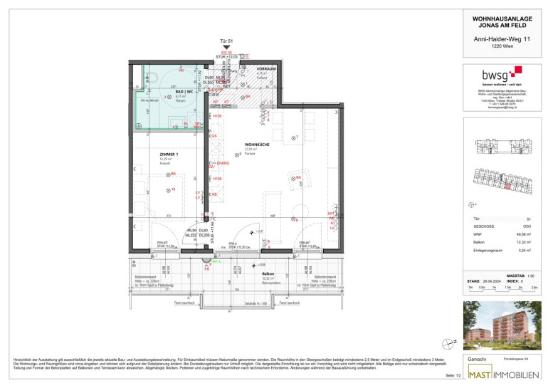
Details Wohnung Anni-Haider-Weg 11 Top 51:



Die Wohnung befindet sich im 3. OG und verfügt über 49,58 m² Wohnfläche + einem 12,32 m² großen Balkon.



Raumaufteilung: 



  • Vorraum ca. 4,11 m²
  • Wohnküche ca. 27,01 m²
  • Schlafzimmer ca. 12,29 m²
  • Badezimmer ca. 6,17 m²
  • Balkon ca. 12,32 m²
  • Kellerabteil ca. 3,24 m²




Ein Tiefgaragenstellplatz kann um 29.345,75 € erworben werden. 





Auf unserer Homepage finden Sie eine Übersicht zu dem Projekt "Jonas am Feld" sowie zu den Projekten "Gretls Garten" und "Leo am Teich", welche sich in unmittelbarer Nähe befinden. www.mast-immo.at



*Während der Aktion werden die Verkaufspreise um 6,5 % reduziert. Dies entspricht den durchschnittlichen Nebenkosten beim provisionsfreien Wohnungskauf (1,9 % Vertrags-errichtung, 3,5 % Grunderwerbsteuer, 1,1 % Eintragungsgebühr). Die auf Basis des um 6,5% reduzierten Kaufpreises berechneten Nebenkosten sind über den Treuhänder zu begleichen. Eine mögliche Gebührenbefreiung gem. § 25a iVm § 25b Gerichtsgebührengesetz kann zusätzlich in Anspruch genommen werden.



Der Einrichtungsgutschein wird bei Wohnungsübergabe übergeben und ist nicht in bar ablösbar.


Wir weisen darauf hin, dass zwischen dem Vermittler und dem zu vermittelnden Dritten ein familiäres oder wirtschaftliches Naheverhältnis besteht.


Der Vermittler ist als Doppelmakler tätig.

Infrastruktur / Entfernungen

Gesundheit
Arzt <1.000m
Apotheke <500m
Klinik <1.500m
Krankenhaus <3.500m

Kinder & Schulen
Schule <500m
Kindergarten <500m
Universität <3.000m
Höhere Schule <3.000m

Nahversorgung
Supermarkt <500m
Bäckerei <1.000m
Einkaufszentrum <2.500m

Sonstige
Bank <1.000m
Geldautomat <500m
Post <1.000m
Polizei <1.500m

Verkehr
Bus <500m
U-Bahn <1.500m
Straßenbahn <500m
Bahnhof <1.500m
Autobahnanschluss <2.000m

Angaben Entfernung Luftlinie / Quelle: OpenStreetMap

Eckdaten Objektnr. 5387/7947

Art: Wohnung
Land: Österreich
Zustand: Erstbezug
Kaufpreis: 273.894,00
Provision: Provision bezahlt der Abgeber.
Betriebskosten: 97,33 €
MwSt Gesamt: 9,73 €
Wohnfläche: 49,58 m²
Nutzfläche: 49,58 m²
Zimmer: 2
Bäder: 1
WC: 1
Balkone: 1
Heizwärmebedarf:  B  26,60 kWh/m²a
fGEE:  A  0,74
Immobilie merken Exposé

Ausstattung

Parkett, Fliesen, Wohnküche / offene Küche, Personenaufzug, Dusche, Tiefgarage


Immobilie anfragen


Ihre persönliche Beratung

MAST Immo GmbH

Dolores Markovic

MA.ST Immobilien & Design e.U.

T +43 664 527 36 79